Bildegalleri

- Velkommen til Ortustranden 27! -
Fyllingsdalen
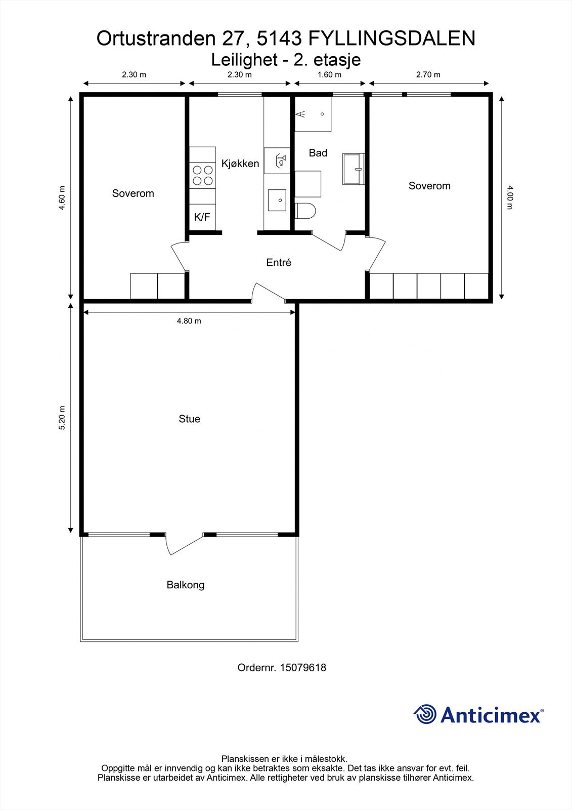
Lys og trivelig 3-roms med vestvendt altan og flott utsikt! Bad fra 2022 i regi av brl. Kort vei til Oasen og Bybanen.
Prisantydning3 190 000 kr
Nøkkelinfo
- Boligtype
- Leilighet
- Eieform
- Andel
- Soverom
- 2
- Internt bruksareal
- 71 m² (BRA-i)
- Bruksareal
- 78 m²
- Eksternt bruksareal
- 7 m² (BRA-e)
- Etasje
- 2
- Byggeår
- 1967
- Energimerking
- C - Lysegrønn
- Rom
- 3
- Tomteareal
- 39 087 m² (eiet)
Fasiliteter
Balkong/Terrasse
Barnevennlig
Bredbåndstilknytning
Kabel-TV
Offentlig vann/kloakk
Rolig
Sentralt
Utsikt
Vaktmester-/vektertjeneste
Turterreng
Visning
mandag, 09. mars
16:30 – 17:30
For å delta på visning, ber vi om at du melder deg på. Da sikrer vi at du får nødvendig informasjon og at det er satt av tilstrekkelig med tid. Kontakt megler dersom annet tidspunkt ønskes. Husk å lese salgsoppgaven før visningen, så du stiller forberedt.
Ønsker du kun å bli holdt orientert, kan du fra eiendommens hjemmeside få varsel om solgtpris, eller kontakte megler.
VisningspåmeldingOm boligen
Velkommen til en lys og trivelig leilighet med vestvendt altan og gode solforhold! Her bor du svært sentralt, med en praktisk og gjennomtenkt planløsning. Leiligheten ligger i et etablert og populært område, kun et steinkast fra Oasen Senter, hvor du finner alt fra dagligvarebutikker og legekontor til klesbutikker, restauranter, kafeer og treningssenter. Bybanen, bussforbindelser og sykkeltunnelen er også like i nærheten.
Høydepunkter:
Høydepunkter:
- Vestvendt balkong med fin utsikt og lite innsyn fra nærliggende bebyggelse
- Gode solforhold
- Bad renovert i regi av borettslaget 2022
- Attraktiv og sentral beliggenhet i Fyllingsdalen
- Sentralvarme og varmtvann inkludert i felleskostnadene
- Gangavstand til buss som tar deg til Bergen Sentrum på under 10 min, samt bybanen
NB: Knappen for å vise hele beskrivelsen har kun en visuell effekt.
NB: Knappen for å vise hele beskrivelsen har kun en visuell effekt.
Salgsoppgaven beskriver vesentlig og lovpålagt informasjon om eiendommen
Se komplett salgsoppgaveNyttige lenker
Nærområdet
Krogsveen Fyllingsdalen
Verdien av en god megler.
Annonseinformasjon
| FINN-kode | 453462766 |
|---|---|
| Sist endret | 02. mars 2026 19:57 |
| Referanse | KR70.2612 |
Annonsene kan være mangelfulle i forhold til lovpålagt opplysningsplikt. Før bindende avtale inngås oppfordres interessenter til å innhente komplett informasjon fra meglerforetaket, selger eller utleier.































