Bildegalleri

Velkommen til Trondheimsveien 35C - en hyggelig og innbydende andelsleilighet med hybeldel. Foto: Scott Kvitberg v/Fotostallen
Velkommen til Grünerløkka
Lys og delikat andelsleilighet med praktisk hybeldel som gir mulighet for leieinntekter, beliggende i et sentralt område
Prisantydning5 800 000 kr
Nøkkelinfo
- Boligtype
- Leilighet
- Eieform
- Andel
- Soverom
- 2
- Internt bruksareal
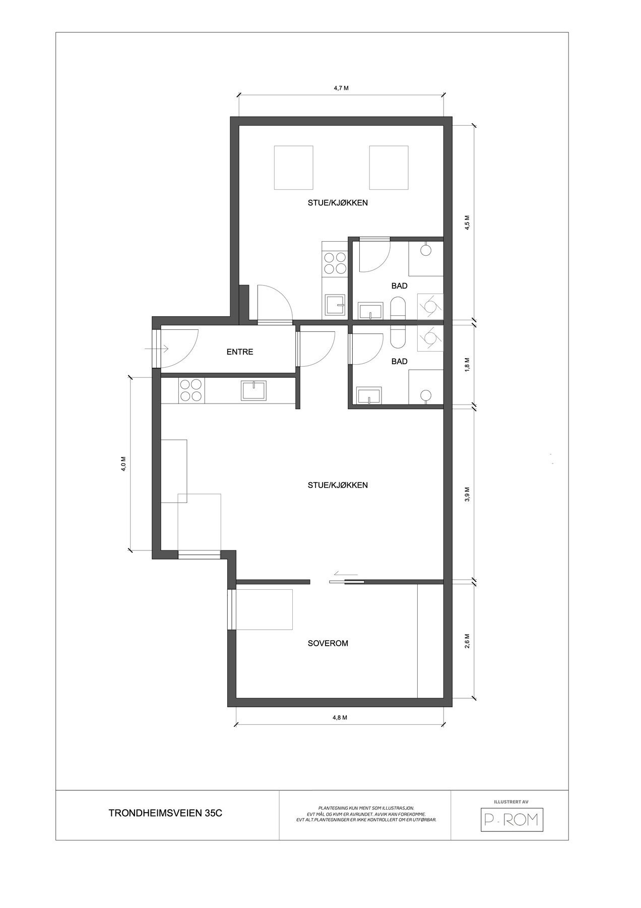
- 65 m² (BRA-i)
- Bruksareal
- 78 m²
- Eksternt bruksareal
- 13 m² (BRA-e)
- Etasje
- 5
- Byggeår
- 1886
- Energimerking
- G - Rød
- Rom
- 3
- Tomteareal
- 383 m² (eiet)
Fasiliteter
Barnevennlig
Offentlig vann/kloakk
Parkett
Sentralt
Bredbåndstilknytning
Moderne
Rolig
Visning
onsdag, 11. mars
16:30 – 17:30
Velkommen til visning!
Alle våre visninger har påmelding. På denne måten sikrer vi at megler har god oversikt og tid til å imøtekomme alle interessenter på beste måte. Dette er veldig verdifullt for boligkjøpere og for oss. Det er enkelt å melde seg på, og du kan like enkelt melde deg av. Kontakt også gjerne megler i forkant av visning dersom du har spørsmål.
Om boligen
Trondheimsveien 35C er en lys og moderne leilighet med sentral og attraktiv beliggenhet på Grünerløkka. Her bor du med byen rett utenfor døren - midt i hjertet av Grünerløkka, med alt av servicetilbud, kollektivtransport, kaféer og parker i umiddelbar nærhet.
Leiligheten har en praktisk og gjennomtenkt planløsning med entré, stue med kjøkken i åpen løsning, et romslig soverom og et flislagt baderom med opplegg for vaskemaskin. Hybeldelen består av åpen stue- og kjøkkenløsning og flislagt baderom, også med opplegg for vaskemaskin. Her bor du i et veldrevet borettslag med en flott felles bakgård hvor kveldssolen kan nytes i hyggelige omgivelser.
Høydepunkter:
- Praktisk hybeldel med mulighet for skattefri inntekt
- Veldrevet borettslag med hyggelig opparbeidet felles bakgård
- Vinduer fra 2024
- Sentral beliggenhet med umiddelbar nærhet til butikker og kollektiv transport
- To boder i kjeller på hhv. 4,9 kvm og 9 kvm
- Ingen forkjøpsrett i borettslaget
Leiligheten har en praktisk og gjennomtenkt planløsning med entré, stue med kjøkken i åpen løsning, et romslig soverom og et flislagt baderom med opplegg for vaskemaskin. Hybeldelen består av åpen stue- og kjøkkenløsning og flislagt baderom, også med opplegg for vaskemaskin. Her bor du i et veldrevet borettslag med en flott felles bakgård hvor kveldssolen kan nytes i hyggelige omgivelser.
Høydepunkter:
- Praktisk hybeldel med mulighet for skattefri inntekt
- Veldrevet borettslag med hyggelig opparbeidet felles bakgård
- Vinduer fra 2024
- Sentral beliggenhet med umiddelbar nærhet til butikker og kollektiv transport
- To boder i kjeller på hhv. 4,9 kvm og 9 kvm
- Ingen forkjøpsrett i borettslaget
NB: Knappen for å vise hele beskrivelsen har kun en visuell effekt.
NB: Knappen for å vise hele beskrivelsen har kun en visuell effekt.
Salgsoppgaven beskriver vesentlig og lovpålagt informasjon om eiendommen
Se komplett salgsoppgaveNyttige lenker
Nærområdet
Privatmegleren Premium
Kun det beste på dine vegne
Annonseinformasjon
| FINN-kode | 453458641 |
|---|---|
| Sist endret | 04. mars 2026 13:06 |
| Referanse | 321260015 |
Annonsene kan være mangelfulle i forhold til lovpålagt opplysningsplikt. Før bindende avtale inngås oppfordres interessenter til å innhente komplett informasjon fra meglerforetaket, selger eller utleier.





















