Bildegalleri

Velkommen til Ormøy
Perle med brygge, båtplass og nydelig utsikt!
Prisantydning11 900 000 kr
Nøkkelinfo
- Boligtype
- Enebolig
- Eieform
- Eier (Selveier)
- Soverom
- 4
- Internt bruksareal
- 201 m² (BRA-i)
- Bruksareal
- 259 m²
- Eksternt bruksareal
- 58 m² (BRA-e)
- Balkong/Terrasse
- 67 m² (TBA)
- Byggeår
- 1910
- Energimerking
- C - Lysegrønn
- Rom
- 8
- Tomteareal
- 667 m² (eiet)
Fasiliteter
Barnevennlig
Balkong/Terrasse
Garasje/P-plass
Fiskemulighet
Offentlig vann/kloakk
Parkett
Peis/Ildsted
Strandlinje
Turterreng
Utsikt
Sentralt
Rolig
Bademulighet
Visning
mandag, 09. mars
17:00 – 18:00
Velkommen til visning!
Vennligst merk at det kun gjennomføres visninger etter avtale innenfor angitt tidsrom. Ta kontakt for å booke deres tid.
Om boligen
Auravigå 2 er en sjelden perle! Nærmere sjøen skal man lete lenge etter. Eneboligen har fin hage med brygge og flere solrike uteplasser. Stor båtplass med god dybde (her har selger hatt en seilbåt på 35 fot).
Her våkner man til bølgeskvulp og yrende båtliv om sommeren.
Her er vårens tegn på sommer lyden av båter som nylig er sjøsatt.
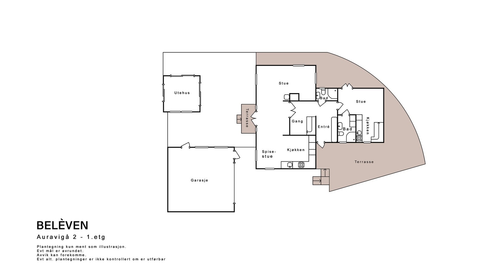
Eneboligen har nydelig utsikt fra de fleste rom. Eneboligen har praktisk planløsning med 4 soverom og 2 bad. Fra stue og kjøkken er det nydelig utsikt over hage, brygge, sjø og fjell.
Området byr på landlige og maritime omgivelser. Her er det særdeles bra oppvekstmiljø, og den intime skolen på Roaldsøy er en samlingsplass for store og små.
Dette er plassen for deg som liker sjøliv og utsikt.
Her våkner man til bølgeskvulp og yrende båtliv om sommeren.
Her er vårens tegn på sommer lyden av båter som nylig er sjøsatt.
Eneboligen har nydelig utsikt fra de fleste rom. Eneboligen har praktisk planløsning med 4 soverom og 2 bad. Fra stue og kjøkken er det nydelig utsikt over hage, brygge, sjø og fjell.
Området byr på landlige og maritime omgivelser. Her er det særdeles bra oppvekstmiljø, og den intime skolen på Roaldsøy er en samlingsplass for store og små.
Dette er plassen for deg som liker sjøliv og utsikt.
NB: Knappen for å vise hele beskrivelsen har kun en visuell effekt.
NB: Knappen for å vise hele beskrivelsen har kun en visuell effekt.
Salgsoppgaven beskriver vesentlig og lovpålagt informasjon om eiendommen
Se komplett salgsoppgaveNyttige lenker
Nærområdet
Belèven Eiendomsmegling
Annonsene kan være mangelfulle i forhold til lovpålagt opplysningsplikt. Før bindende avtale inngås oppfordres interessenter til å innhente komplett informasjon fra meglerforetaket, selger eller utleier.



















































