Bildegalleri

DNB Eiendom har gleden av å presentere Solbergliveien 118 b.
Oppsal
Stor toppleilighet med vedkamin, adskilt kjøkken (2022) og utgang til 8 kvm vestvendt balkong, ettermiddags- og kveldsso
Prisantydning4 500 000 kr
Nøkkelinfo
- Boligtype
- Leilighet
- Eieform
- Andel
- Soverom
- 2
- Internt bruksareal
- 70 m² (BRA-i)
- Bruksareal
- 78 m²
- Eksternt bruksareal
- 8 m² (BRA-e)
- Balkong/Terrasse
- 8 m² (TBA)
- Etasje
- 4
- Byggeår
- 1960
- Energimerking
- D
- Rom
- 3
- Tomteareal
- 23 797 m² (eiet)
Fasiliteter
Balkong/Terrasse
Barnevennlig
Bredbåndstilknytning
Fellesvaskeri
Kjæledyr tillatt
Kabel-TV
Offentlig vann/kloakk
Parkett
Peis/Ildsted
Visning
torsdag, 12. mars
17:00 – 18:00
Velkommen til visning! Meld deg på ved å trykke "visningspåmelding" i våre boligannonser. Ta gjerne kontakt med megler i forkant av visningen om du har spørsmål.
VisningspåmeldingOm boligen
Velkommen til Solbergliveien 118 b! Dette er en romslig toppleilighet med vestvendt balkong beliggende i et boligområde som kombinerer det beste fra to verdener - idylliske Østmarka som nærmeste nabo, samtidig som den ligger nær en rekke fasiliteter.
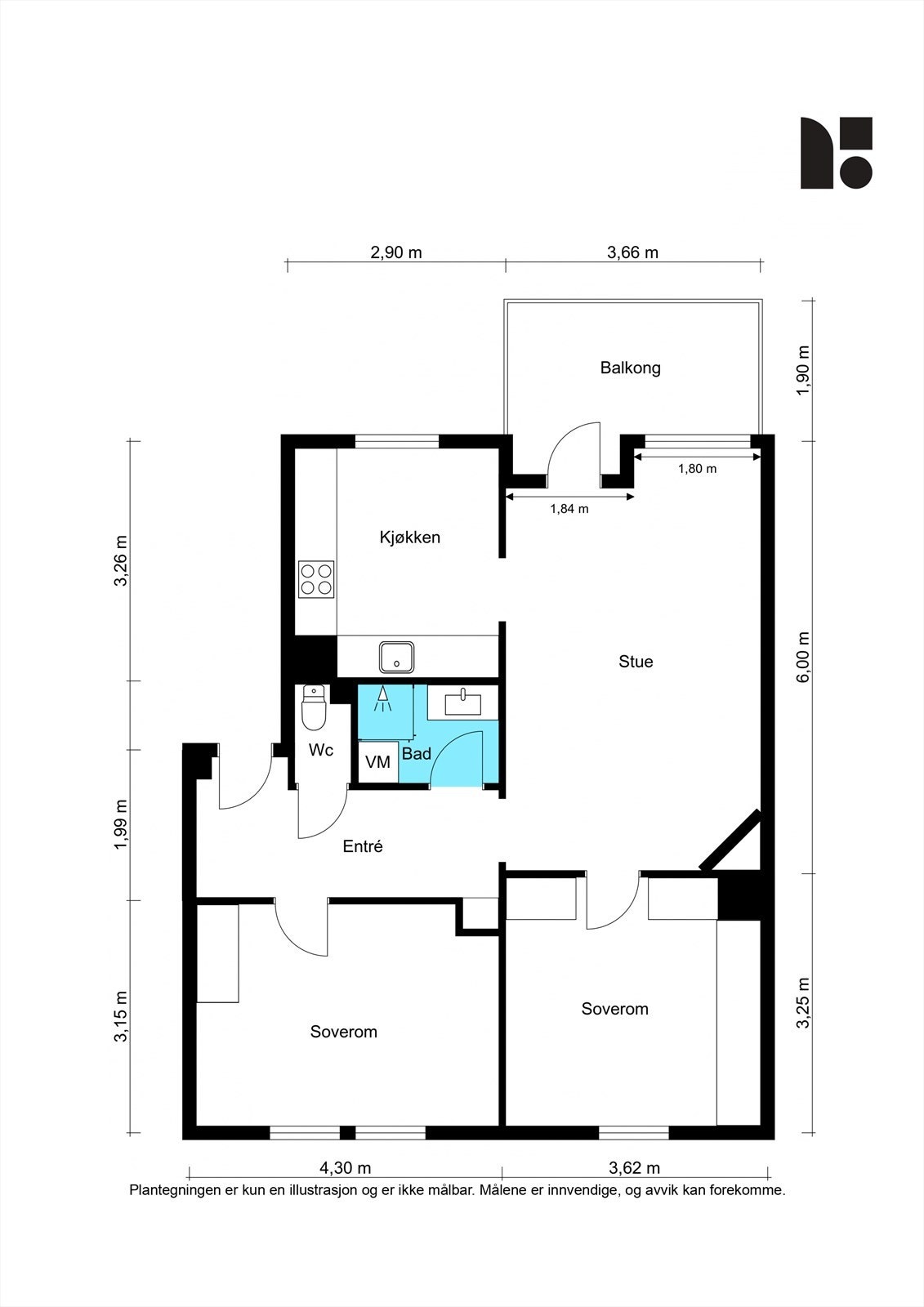
Leiligheten består av en romslig stue med store vindusflater, et adskilt kjøkken (2022), flislagt bad med opplegg for vaskemaskin, adskilt wc-rom, to gode soverom (hvor det ene opprinnelig var to mindre barnerom) og en entré som binder det hele sammen. Av lagringsplass disponerer leiligheten tre boder, totalt 8 kvm. Tilgang til gratis fellesvaskeri samt innvendig og utvendig sykkelbod.
Mulighet for en rask overtagelse om ønskelig. Velkommen til visning!
Leiligheten består av en romslig stue med store vindusflater, et adskilt kjøkken (2022), flislagt bad med opplegg for vaskemaskin, adskilt wc-rom, to gode soverom (hvor det ene opprinnelig var to mindre barnerom) og en entré som binder det hele sammen. Av lagringsplass disponerer leiligheten tre boder, totalt 8 kvm. Tilgang til gratis fellesvaskeri samt innvendig og utvendig sykkelbod.
Mulighet for en rask overtagelse om ønskelig. Velkommen til visning!
NB: Knappen for å vise hele beskrivelsen har kun en visuell effekt.
NB: Knappen for å vise hele beskrivelsen har kun en visuell effekt.
Salgsoppgaven beskriver vesentlig og lovpålagt informasjon om eiendommen
Se komplett salgsoppgaveNyttige lenker
Nærområdet
DNB Eiendom AS
Verdifulle salg
Annonseinformasjon
| FINN-kode | 453413253 |
|---|---|
| Sist endret | 03. mars 2026 19:56 |
| Referanse | 310260036 |
Annonsene kan være mangelfulle i forhold til lovpålagt opplysningsplikt. Før bindende avtale inngås oppfordres interessenter til å innhente komplett informasjon fra meglerforetaket, selger eller utleier.









































