Bildegalleri

EiendomsMegler1 v/ Morten Høvik har gleden av å presentere Juulenga 18!
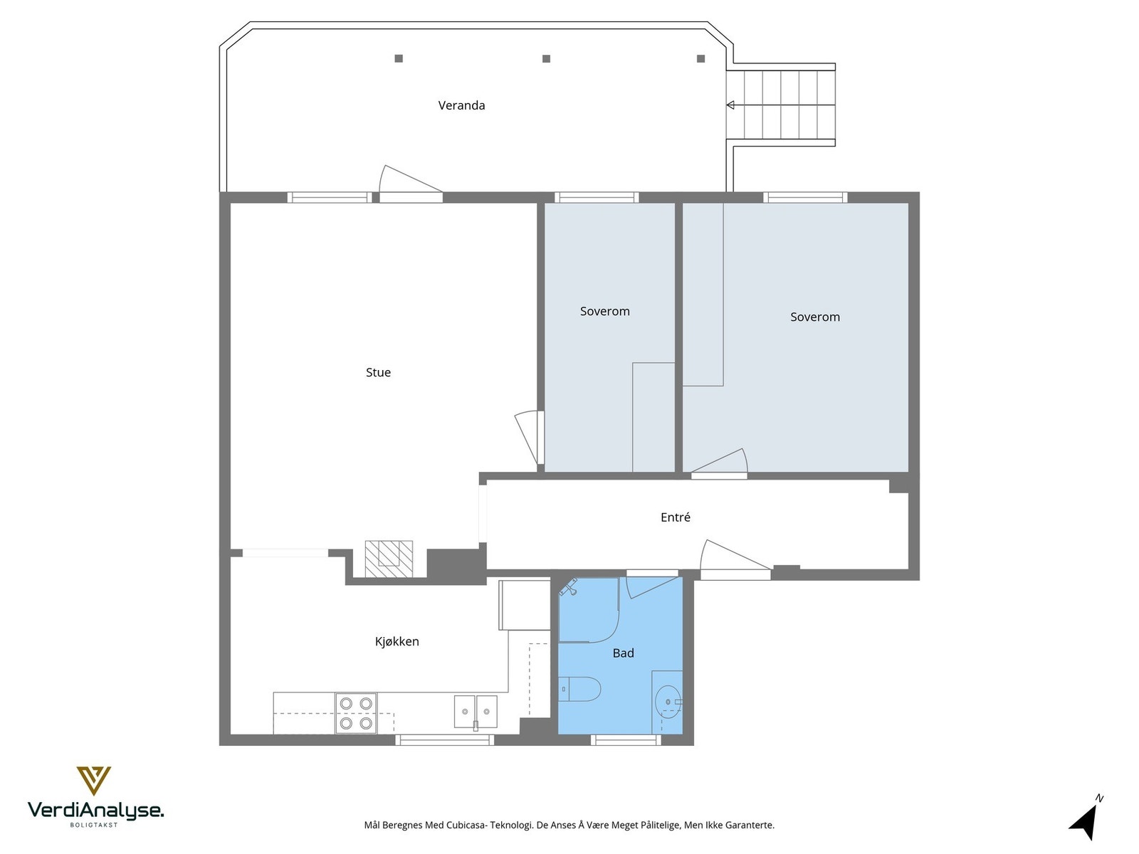
Pen horisontaldelt tomannsbolig med solrik veranda og flott utsikt! Parkering
Prisantydning1 750 000 kr
Nøkkelinfo
- Boligtype
- Tomannsbolig
- Eieform
- Eier (Selveier)
- Soverom
- 2
- Internt bruksareal
- 65 m² (BRA-i)
- Bruksareal
- 85 m²
- Eksternt bruksareal
- 20 m² (BRA-e)
- Balkong/Terrasse
- 18 m² (TBA)
- Etasje
- 1
- Byggeår
- 1953
- Energimerking
- F - Oransje
- Rom
- 3
- Tomteareal
- 361 m² (eiet)
Visning
tirsdag, 10. mars
16:30 – 17:15
Våre visninger har påmelding. Dette gjør vi for å kunne yte bedre service for våre kunder. Verdifullt for boligkjøper og for oss. Vi anbefaler at salgsoppgaven lastes ned digitalt før visning, og ring oss gjerne på forhånd for spørsmål om boligen. Passer ikke angitt tidspunkt, ta kontakt så finner vi en løsning. Skulle det mot formodning ikke være påmeldte til angitt visningstidspunkt vil ikke visning bli gjennomført.
Om boligen
EiendomsMegler 1 v/Morten Høvik har gleden av å presentere Juulenga 18!
Pen horisontaldelt tomannsbolig med solrik veranda og flott utsikt. Leiligheten ligger i høy 1. etasje og byr på bl.a stue, kjøkken, bad, 2 soverom, gang. I kjeller har man kott og bod (innredet kjellerstue som ikke er omsøkt og godkjent) tilhørende seksjonen. Fra stue er det utgang til solrik veranda med trapp ned til felles hage. Det er oppstillingsplass for bil på sameiets tomt. Leiligheten ligger i et etablert og barnevennlig boligområde sentralt på Nordlandet. Her har du fine sol- og lysforhold, samt fint utsikt ut over Bolgsvaet og mot Frei. Her bor du i gangavstand til barnehage, skole samt Løkkemyra handelssenter med alle fasiliteter.
Velkommen til visning!
Pen horisontaldelt tomannsbolig med solrik veranda og flott utsikt. Leiligheten ligger i høy 1. etasje og byr på bl.a stue, kjøkken, bad, 2 soverom, gang. I kjeller har man kott og bod (innredet kjellerstue som ikke er omsøkt og godkjent) tilhørende seksjonen. Fra stue er det utgang til solrik veranda med trapp ned til felles hage. Det er oppstillingsplass for bil på sameiets tomt. Leiligheten ligger i et etablert og barnevennlig boligområde sentralt på Nordlandet. Her har du fine sol- og lysforhold, samt fint utsikt ut over Bolgsvaet og mot Frei. Her bor du i gangavstand til barnehage, skole samt Løkkemyra handelssenter med alle fasiliteter.
Velkommen til visning!
NB: Knappen for å vise hele beskrivelsen har kun en visuell effekt.
NB: Knappen for å vise hele beskrivelsen har kun en visuell effekt.
Salgsoppgaven beskriver vesentlig og lovpålagt informasjon om eiendommen
Se komplett salgsoppgaveNyttige lenker
Nærområdet
EiendomsMegler 1 Kristiansund
Vi loser deg trygt gjennom hele boligsalget
Annonseinformasjon
| FINN-kode | 453408501 |
|---|---|
| Sist endret | 02. mars 2026 11:50 |
| Referanse | 17260036 |
Annonsene kan være mangelfulle i forhold til lovpålagt opplysningsplikt. Før bindende avtale inngås oppfordres interessenter til å innhente komplett informasjon fra meglerforetaket, selger eller utleier.



















