Bildegalleri

Inge Bock ved PrivatMegleren har gleden av å presentere Rødsildreveien 1.
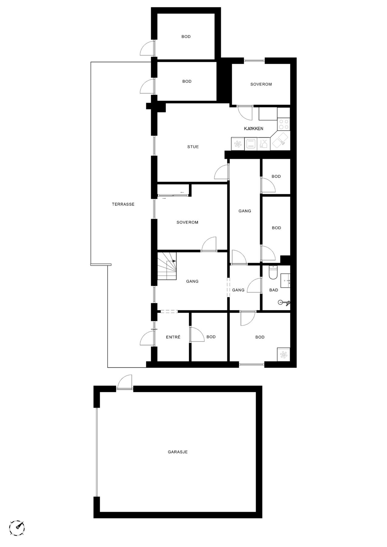
Rypefjord - Innholdsrik enebolig med hybel og garasje | 4 soverom | Flere uteområder | Flott utsikt
Prisantydning4 250 000 kr
Nøkkelinfo
- Boligtype
- Enebolig
- Eieform
- Eier (Selveier)
- Soverom
- 4
- Internt bruksareal
- 164 m² (BRA-i)
- Bruksareal
- 218 m²
- Eksternt bruksareal
- 54 m² (BRA-e)
- Balkong/Terrasse
- 33 m² (TBA)
- Byggeår
- 1983
- Energimerking
- E - Oransje
- Rom
- 6
- Tomteareal
- 1 254 m² (festet)
- Festeavgift
- 1 141 kr
Fasiliteter
Barnevennlig
Balkong/Terrasse
Garasje/P-plass
Offentlig vann/kloakk
Peis/Ildsted
Turterreng
Utsikt
Bredbåndstilknytning
Rolig
Visning
tirsdag, 10. mars
17:00 – 18:00
Velkommen til visning!
Alle våre visninger har påmelding. På denne måten sikrer vi at megler har god oversikt og tid til å imøtekomme alle interessenter på beste måte. Dette er veldig verdifullt for boligkjøpere og for oss. Det er enkelt å melde seg på, og du kan like enkelt melde deg av. Kontakt også gjerne megler i forkant av visning dersom du har spørsmål.
Om boligen
Inge Bock ved PrivatMegleren har gleden av å presentere Rødsildreveien 1, en innholdsrik enebolig i Rypefjord.
Her får du en romslig bolig med en flott utsikt og barnevennlig beliggenhet. Boligen strekker seg over 2 plan og inneholder egen hybeldel og frittstående garasje, og her får du totalt 4 soverom, 2 stuer, 2 kjøkken, 2 bad, vaskerom og rikelig med bodplass inne og ute. Boligen har også flere uteområder med terrasse i bakkant og på siden av boligen, samt en balkong i front. Nærområdet har skole, barnehager, flotte turområder og busstopp.
Kort fortalt:
- 4 soverom.
- Hybeldel i underetasje.
- Garasje.
- Rikelig med bodplass inne og ute.
- Flere uteområder.
- Flott utsikt.
- Nærhet til barnehager, skole, busstopp, flotte turområder, m.m.
Velkommen til en hyggelig visning.
Her får du en romslig bolig med en flott utsikt og barnevennlig beliggenhet. Boligen strekker seg over 2 plan og inneholder egen hybeldel og frittstående garasje, og her får du totalt 4 soverom, 2 stuer, 2 kjøkken, 2 bad, vaskerom og rikelig med bodplass inne og ute. Boligen har også flere uteområder med terrasse i bakkant og på siden av boligen, samt en balkong i front. Nærområdet har skole, barnehager, flotte turområder og busstopp.
Kort fortalt:
- 4 soverom.
- Hybeldel i underetasje.
- Garasje.
- Rikelig med bodplass inne og ute.
- Flere uteområder.
- Flott utsikt.
- Nærhet til barnehager, skole, busstopp, flotte turområder, m.m.
Velkommen til en hyggelig visning.
NB: Knappen for å vise hele beskrivelsen har kun en visuell effekt.
NB: Knappen for å vise hele beskrivelsen har kun en visuell effekt.
Salgsoppgaven beskriver vesentlig og lovpålagt informasjon om eiendommen
Se komplett salgsoppgaveNyttige lenker
Nærområdet

PrivatMegleren Hammerfest
Kun det beste på dine vegne
Annonseinformasjon
| FINN-kode | 453401566 |
|---|---|
| Sist endret | 02. mars 2026 09:47 |
| Referanse | 124260009 |
Annonsene kan være mangelfulle i forhold til lovpålagt opplysningsplikt. Før bindende avtale inngås oppfordres interessenter til å innhente komplett informasjon fra meglerforetaket, selger eller utleier.




























