Bildegalleri

Velkommen til Nedre Skøyen vei 14, presentert av Susanna Hjelset ved Nordvik Bygdøy Allè. Foto: Bente Elvebredd
Lys og tiltalende 2-roms hjørneleilighet fra 2008 med stor balkong - Heis - Lave felleskostn. - Sentral beliggenhet
Prisantydning5 390 000 kr
Nøkkelinfo
- Boligtype
- Leilighet
- Eieform
- Eier (Selveier)
- Soverom
- 1
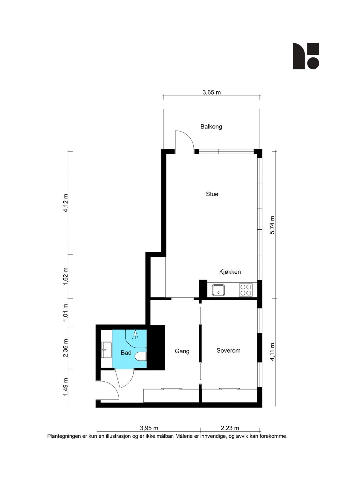
- Internt bruksareal
- 48 m² (BRA-i)
- Bruksareal
- 53 m²
- Eksternt bruksareal
- 5 m² (BRA-e)
- Balkong/Terrasse
- 10 m² (TBA)
- Etasje
- 3
- Byggeår
- 2008
- Energimerking
- D
- Rom
- 2
- Tomteareal
- 13 949 m² (eiet)
Fasiliteter
Balkong/Terrasse
Bredbåndstilknytning
Heis
Kjæledyr tillatt
Parkett
Sentralt
Vaktmester-/vektertjeneste
Turterreng
Om boligen
Velkommen til Nedre Skøyen vei 14 - En lys og tiltalende 2-roms hjørneleilighet med stor balkong og heisadkomst. Leiligheten har en meget sentral beliggenhet på Skøyen med kort vei til det meste Oslo har å tilby. Området er meget ettertraktet og populært og har kort gangavstand til Skøyenparken, Frognerparken, gode kollektivmuligheter og hyggelige handlegater.
Balkong på 10 kvm med sol fra ca. kl. 15.30 19.00 på sommeren
Attraktivt område på Skøyen med gangavstand til Sjølyst
Gode lagringsmuligheter i medfølgende bod på 5 kvm
Gode oppbevaringsmuligheter i skyvedørsgarderober
Pent flislagt baderom med opplegg for vaskemaskin
Hjørneleilighet med gode lysforhold fra flere vinduer
Romslig 2-roms med store rom og gode løsninger
Balkong på 10 kvm med sol fra ca. kl. 15.30 19.00 på sommeren
Attraktivt område på Skøyen med gangavstand til Sjølyst
Gode lagringsmuligheter i medfølgende bod på 5 kvm
Gode oppbevaringsmuligheter i skyvedørsgarderober
Pent flislagt baderom med opplegg for vaskemaskin
Hjørneleilighet med gode lysforhold fra flere vinduer
Romslig 2-roms med store rom og gode løsninger
NB: Knappen for å vise hele beskrivelsen har kun en visuell effekt.
NB: Knappen for å vise hele beskrivelsen har kun en visuell effekt.
Salgsoppgaven beskriver vesentlig og lovpålagt informasjon om eiendommen
Se komplett salgsoppgaveNyttige lenker
Nærområdet
Nordvik Bygdøy Allé
Annonseinformasjon
| FINN-kode | 453397961 |
|---|---|
| Sist endret | 02. mars 2026 16:00 |
| Referanse | 13-0022/26 |
Annonsene kan være mangelfulle i forhold til lovpålagt opplysningsplikt. Før bindende avtale inngås oppfordres interessenter til å innhente komplett informasjon fra meglerforetaket, selger eller utleier.






















