Bildegalleri

Velkommen til Langbråten 51, presentert av Schala & Partners ved Henrik Jensen, tlf. 996 92 427.
Jessheimhagens flotteste enderekkehus? | Solrik takterrasse med jacuzzi | To garasjeplasser med lader | Barnevennlig!
Nøkkelinfo
- Boligtype
- Rekkehus
- Eieform
- Eier (Selveier)
- Soverom
- 4
- Internt bruksareal
- 162 m² (BRA-i)
- Bruksareal
- 162 m²
- Eksternt bruksareal
- 5 m² (BRA-e)
- Balkong/Terrasse
- 77 m² (TBA)
- Byggeår
- 2017
- Energimerking
- B - Oransje
- Rom
- 6
- Tomteareal
- 173 m² (eiet)
Fasiliteter
Om boligen
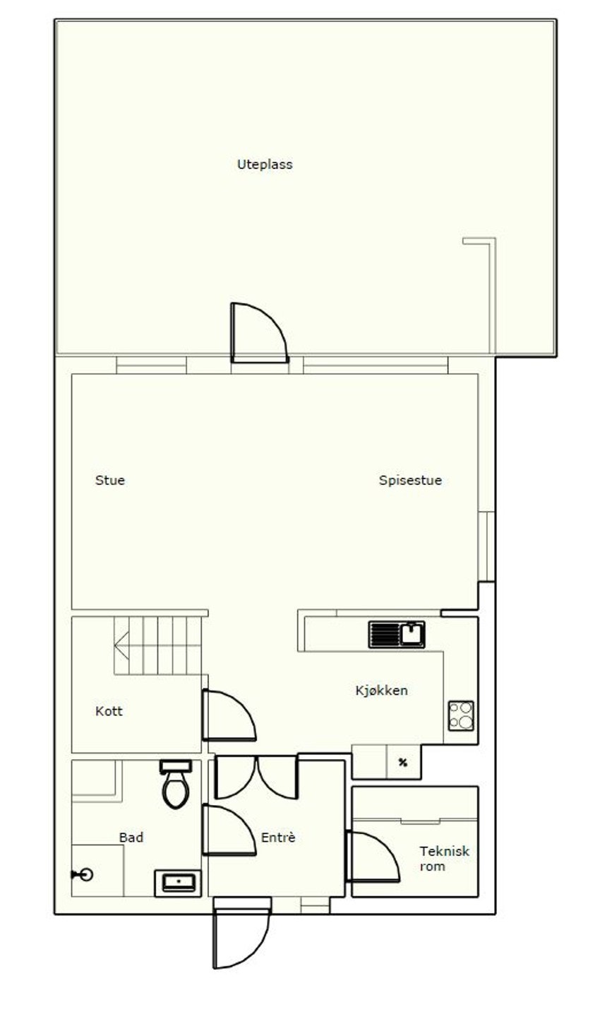
Velkommen til et moderne og stilfullt enderekkehus som strekker seg over tre plan! I boligen, som ble oppført i 2017, er det lagt vekt på god bokvalitet og smarte løsninger som gjør hverdagen litt bedre - med blant annet vannbåren gulvvarme i alle rom, og lekkert kjøkken fra HTH. Boligen er inndelt i flere sosiale soner, med blant annet to stuer. Den har også to herlige og pent opparbeidede uteplasser, som tilsammen utgjør 77 kvm - Perfekt på varme sommerdager!
Her vil du bo i et barnevennlig nabolag med kort vei til alt sentrum har å by på!
- Påkostet og innholdsrik familiebolig
- Vannbåren gulvvarme i alle rom
- Solrik takterrasse med jacuzzi
- Hagebelysning og automatisk vanningssystem
- To garasjeplasser m/el-bil lader
- Balansert ventilasjonsanlegg
- Store vindusflater
- Enderekkehus
Salgsoppgaven beskriver vesentlig og lovpålagt informasjon om eiendommen
Se komplett salgsoppgaveNyttige lenker
Nærområdet
&Partners Sagene
Annonseinformasjon
| FINN-kode | 453360554 |
|---|---|
| Sist endret | 11. mars 2026 13:20 |
| Referanse | 19250502 |
Annonsene kan være mangelfulle i forhold til lovpålagt opplysningsplikt. Før bindende avtale inngås oppfordres interessenter til å innhente komplett informasjon fra meglerforetaket, selger eller utleier.




























































