Bildegalleri

Hjertelig velkommen til Tokerudberget 15 på Stovner, presentert av Jøran Sørheim v/Aktiv Eiendomsmegling. Foto: Kim David Eriksen
Stovner
Særegen 2-roms | Selveier på 81m² | Solrik balkong m/utsikt | V.vann inkl. i felleskost. | Garasjeplass | Like v/T-bane
Prisantydning3 400 000 kr
Nøkkelinfo
- Boligtype
- Leilighet
- Eieform
- Eier (Selveier)
- Soverom
- 1
- Internt bruksareal
- 81 m² (BRA-i)
- Bruksareal
- 83 m²
- Eksternt bruksareal
- 2 m² (BRA-e)
- Balkong/Terrasse
- 14 m² (TBA)
- Etasje
- -2
- Byggeår
- 1972
- Energimerking
- D
- Rom
- 2
- Tomteareal
- 21 485 m² (festet)
- Festeavgift
- 305 736 kr
Fasiliteter
Balkong/Terrasse
Barnevennlig
Bredbåndstilknytning
Garasje/P-plass
Ingen gjenboere
Offentlig vann/kloakk
Parkett
Sentralt
Utsikt
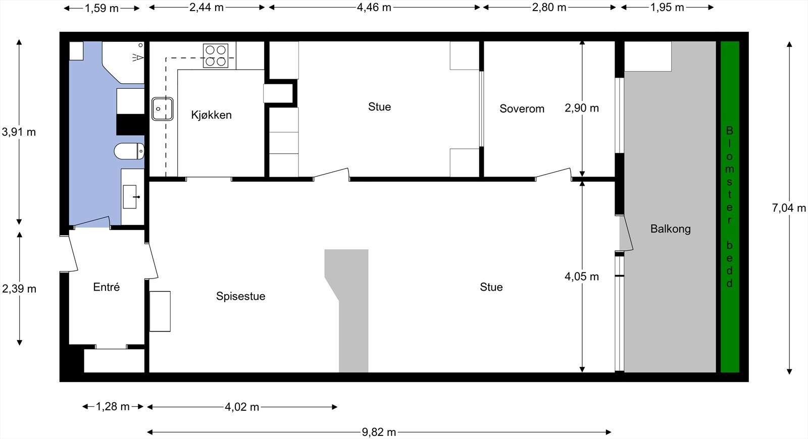
Om boligen
Velkommen til Tokerudberget 15!
Stor og særegen 2-roms leilighet med attraktiv beliggenhet. Leiligheten byr på entré med praktisk garderobeløsning, en stor og luftig stue i engelsk stil, samt kjøkken med rikelig skap- og benkeplass. Videre finner du en TV-stue med god oppbevaring, et soverom med plass til dobbeltseng, samt bad med opplegg for vaskemaskin. Fra stuen er det utgang til en luftig balkong med fantastisk utsikt.
Leiligheten disponerer parkeringsplass i felles garasje samt bod i kjeller.
Verdt å merke:
Stor og særegen 2-roms leilighet med attraktiv beliggenhet. Leiligheten byr på entré med praktisk garderobeløsning, en stor og luftig stue i engelsk stil, samt kjøkken med rikelig skap- og benkeplass. Videre finner du en TV-stue med god oppbevaring, et soverom med plass til dobbeltseng, samt bad med opplegg for vaskemaskin. Fra stuen er det utgang til en luftig balkong med fantastisk utsikt.
Leiligheten disponerer parkeringsplass i felles garasje samt bod i kjeller.
Verdt å merke:
- Stor 2-roms med særpreg.
- Stue i engelsk stil m/ gode innredningsmuligheter
- Solrik balkong på ca. 14 m² med flott utsikt
- Varmtvann inkludert i felleskostnader
- Bad med oppgraderingsbehov
- Parkering i felles garasje
NB: Knappen for å vise hele beskrivelsen har kun en visuell effekt.
NB: Knappen for å vise hele beskrivelsen har kun en visuell effekt.
Salgsoppgaven beskriver vesentlig og lovpålagt informasjon om eiendommen
Se komplett salgsoppgaveNærområdet
Aktiv Carl Berner
Annonseinformasjon
| FINN-kode | 453173489 |
|---|---|
| Sist endret | 02. mars 2026 17:13 |
| Referanse | 1006260023 |
Annonsene kan være mangelfulle i forhold til lovpålagt opplysningsplikt. Før bindende avtale inngås oppfordres interessenter til å innhente komplett informasjon fra meglerforetaket, selger eller utleier.

































