Bildegalleri

EiendomsMegler 1 v/Sondre Grønning har gleden av å presentere Søndre Berg 5D!
Moholt
Romslig 3-roms selveierleilighet fordelt over 2 plan| Parkering| Gode bussforbindelser| Nærhet til NTNU| Solrik balkong
Prisantydning3 450 000 kr
Nøkkelinfo
- Boligtype
- Leilighet
- Eieform
- Eier (Selveier)
- Soverom
- 2
- Internt bruksareal
- 61 m² (BRA-i)
- Bruksareal
- 64 m²
- Eksternt bruksareal
- 3 m² (BRA-e)
- Balkong/Terrasse
- 5 m² (TBA)
- Etasje
- 2
- Byggeår
- 2003
- Energimerking
- C - Lysegrønn
- Rom
- 3
- Tomteareal
- 19 598 m² (eiet)
Fasiliteter
Barnevennlig
Balkong/Terrasse
Garasje/P-plass
Kabel-TV
Offentlig vann/kloakk
Turterreng
Vaktmester-/vektertjeneste
Sentralt
Bredbåndstilknytning
Rolig
Visning
mandag, 09. mars
16:00 – 17:00
Våre visninger har påmelding. Dette gjør vi for å kunne yte bedre service for våre kunder. Verdifullt for boligkjøper og for oss. Vi anbefaler at salgsoppgaven lastes ned digitalt før visning, og ring oss gjerne på forhånd for spørsmål om boligen. Passer ikke angitt tidspunkt, ta kontakt så finner vi en løsning. Skulle det mot formodning ikke være påmeldte til angitt visningstidspunkt vil ikke visning bli gjennomført.
Om boligen
EiendomsMegler 1 v/Sondre Grønning har gleden av å presentere Søndre Berg 5D!
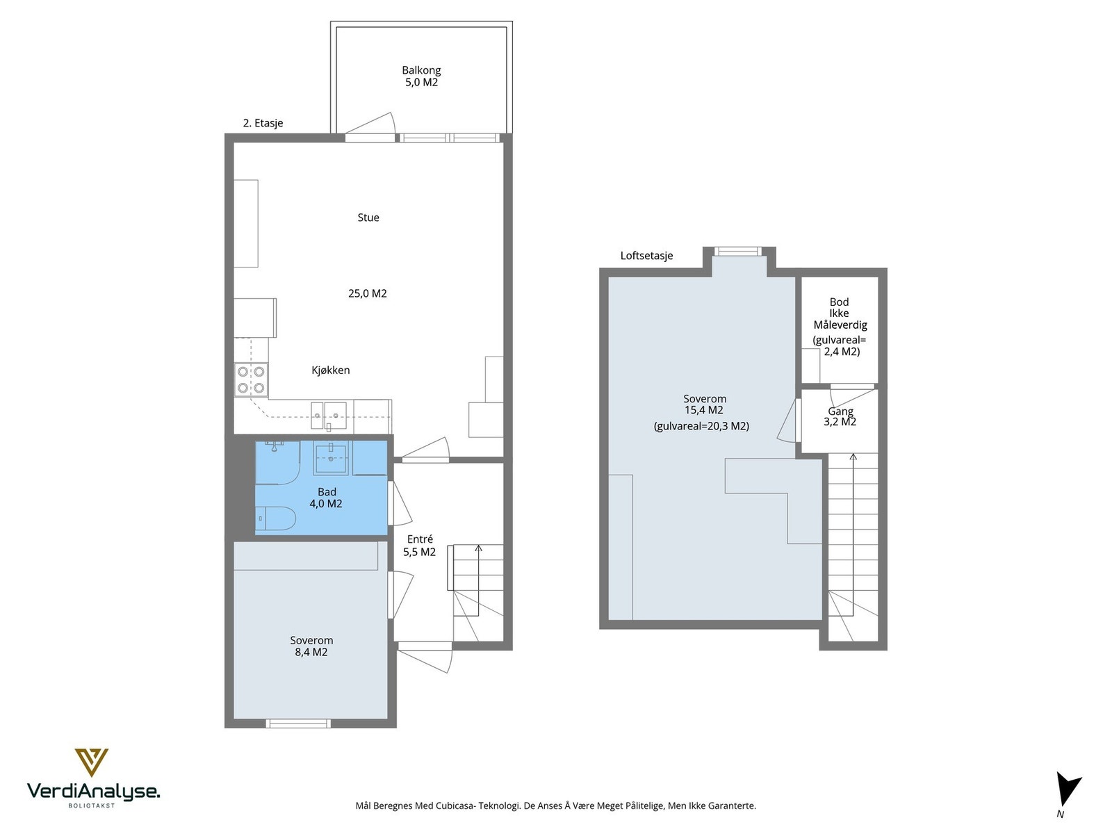
Leiligheten går over 2 plan og har en praktisk planløsning med gjennomtenkte løsninger. Sørvendt balkong med gode solforhold. Gjennomgående standard fra byggeår med bl. a. tilstandsgrad 1 på kjøkken. Med sentral beliggenhet på Moholt er man nært flere studiesteder, flere butikker, turmuligheter og metrobuss med hyppige avganger til sentrum.
Av flere kvaliteter kan vi nevne:
Velkommen til en hyggelig visning!
Leiligheten går over 2 plan og har en praktisk planløsning med gjennomtenkte løsninger. Sørvendt balkong med gode solforhold. Gjennomgående standard fra byggeår med bl. a. tilstandsgrad 1 på kjøkken. Med sentral beliggenhet på Moholt er man nært flere studiesteder, flere butikker, turmuligheter og metrobuss med hyppige avganger til sentrum.
Av flere kvaliteter kan vi nevne:
- Åpen stue/-kjøkkenløsning på 25m²
- Tilstandsgrad 1 på kjøkken
- Velholdt bad fra byggeår
- Parkering
- 2 praktiske soverom på hhv. 15,4 m² og 8,4m²
- Balkong med gode solforhold
- God komfort med balansert ventilasjon
- Nært "alt" av nødvendige fasiliteter
- Gang og sykkelavstand til NTNU på Gløshaugen og Dragvoll, St. Olavs m.m.
- Tursti i umiddelbar nærhet, samt kort vei til Estenstadmarka med helårs turløyper
Velkommen til en hyggelig visning!
NB: Knappen for å vise hele beskrivelsen har kun en visuell effekt.
NB: Knappen for å vise hele beskrivelsen har kun en visuell effekt.
Salgsoppgaven beskriver vesentlig og lovpålagt informasjon om eiendommen
Se komplett salgsoppgaveNyttige lenker
Nærområdet
EiendomsMegler 1 Valentinlyst
Vi loser deg trygt gjennom hele boligsalget
Annonseinformasjon
| FINN-kode | 453091291 |
|---|---|
| Sist endret | 28. feb. 2026 13:07 |
| Referanse | 34260047 |
Annonsene kan være mangelfulle i forhold til lovpålagt opplysningsplikt. Før bindende avtale inngås oppfordres interessenter til å innhente komplett informasjon fra meglerforetaket, selger eller utleier.

























