Bildegalleri

NYHET! Velkommen til Bonesvegen 4!
Strindalia
NYHET! MODERNE 3-ROMS SELVEIER FRA 2021|GOD SOL-OG UTSIKTSFORHOLD| BALKONG, HEIS OG PARKERING I P-KJELLER
Prisantydning4 100 000 kr
Nøkkelinfo
- Boligtype
- Leilighet
- Eieform
- Eier (Selveier)
- Soverom
- 2
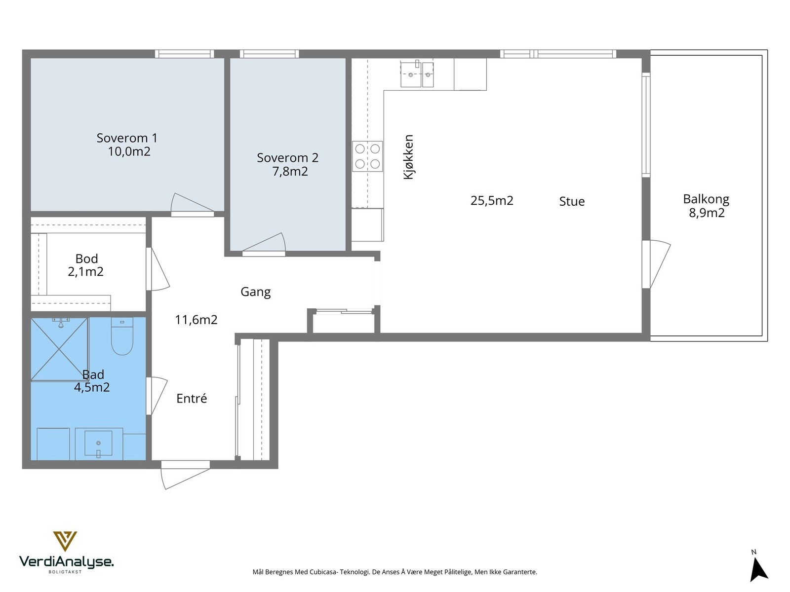
- Internt bruksareal
- 66 m² (BRA-i)
- Bruksareal
- 71 m²
- Eksternt bruksareal
- 5 m² (BRA-e)
- Balkong/Terrasse
- 9 m² (TBA)
- Etasje
- 3
- Byggeår
- 2021
- Energimerking
- A - Mørkegrønn
- Rom
- 3
- Tomteareal
- 1 827 m² (eiet)
Fasiliteter
Barnevennlig
Balkong/Terrasse
Garasje/P-plass
Heis
Offentlig vann/kloakk
Parkett
Turterreng
Utsikt
Sentralt
Bredbåndstilknytning
Moderne
Rolig
Bademulighet
Balansert ventilasjon
Visning
mandag, 23. mars
18:00 – 19:00
Våre visninger har påmelding. Dette gjør vi for å kunne yte bedre service for våre kunder. Verdifullt for boligkjøper og for oss. Vi anbefaler at salgsoppgaven lastes ned digitalt før visning, og ring oss gjerne på forhånd for spørsmål om boligen. Passer ikke angitt tidspunkt, ta kontakt så finner vi en løsning. Skulle det mot formodning ikke være påmeldte til angitt visningstidspunkt vil ikke visning bli gjennomført.
Om boligen
Velkommen til Bonesvegen 4!
En moderne og delikat 3-roms selveierleilighet. Strindalia er et nyetablert boområde med flotte fellesareal og godt bomiljø. Boligblokken sto ferdig i 2021 og er Svanemerket! Leiligheten har en flott beliggenhet i feltet med fantastisk utsiktsforhold.
Leiligheten kan by på bl.a. følgende kvaliteter:
- Stue oppleves svært luftig og romslig, takket vært godt med gjennomlys
- Romslig balkong hvor man kan nyte varme sommerdager med flott utsikt
- Lave og forutsigbare felleskostnader. Fjernvarme og varmtvann inkl.
- Parkering i parkeringskjeller med elbil-lader
- En ekstern bod i underetasje. Felles parsellhage, sykkelbod, vaskerom og sportsbod
- Kort vei til både barnehager, skoler, dagligvarebutikker og kollektivtransport
- Rolig boområde med kort vei til turområder og Estenstadsmarka
Velkommen til en hyggelig visning!
En moderne og delikat 3-roms selveierleilighet. Strindalia er et nyetablert boområde med flotte fellesareal og godt bomiljø. Boligblokken sto ferdig i 2021 og er Svanemerket! Leiligheten har en flott beliggenhet i feltet med fantastisk utsiktsforhold.
Leiligheten kan by på bl.a. følgende kvaliteter:
- Stue oppleves svært luftig og romslig, takket vært godt med gjennomlys
- Romslig balkong hvor man kan nyte varme sommerdager med flott utsikt
- Lave og forutsigbare felleskostnader. Fjernvarme og varmtvann inkl.
- Parkering i parkeringskjeller med elbil-lader
- En ekstern bod i underetasje. Felles parsellhage, sykkelbod, vaskerom og sportsbod
- Kort vei til både barnehager, skoler, dagligvarebutikker og kollektivtransport
- Rolig boområde med kort vei til turområder og Estenstadsmarka
Velkommen til en hyggelig visning!
NB: Knappen for å vise hele beskrivelsen har kun en visuell effekt.
NB: Knappen for å vise hele beskrivelsen har kun en visuell effekt.
Salgsoppgaven beskriver vesentlig og lovpålagt informasjon om eiendommen
Se komplett salgsoppgaveNyttige lenker
Nærområdet
EiendomsMegler 1 Valentinlyst
Vi loser deg trygt gjennom hele boligsalget
Annonseinformasjon
| FINN-kode | 453037292 |
|---|---|
| Sist endret | 17. mars 2026 07:56 |
| Referanse | 34260035 |
Annonsene kan være mangelfulle i forhold til lovpålagt opplysningsplikt. Før bindende avtale inngås oppfordres interessenter til å innhente komplett informasjon fra meglerforetaket, selger eller utleier.






















