Bildegalleri

Velkommen til Hellandsgata 25 - Presentert av EiendomsMegler1 Svolvær. Foto: EFKT
Henningsvær
Spennende og arealeffektiv fritidsbolig midt i populære Henningsvær - Flere friluftsmuligheter i området.
Prisantydning1 990 000 kr
- Omkostninger
- 50 840 kr
- Totalpris
- 2 040 840 kr
- Kommunale avg.
- 2 536 kr per år
- Formuesverdi
- 365 711 kr
Nøkkelinfo
- Boligtype
- Hytte
- Eieform
- Eier (Selveier)
- Internt bruksareal
- 26 m² (BRA-i)
- Bruksareal
- 26 m²
- Tomteareal
- 95 m² (festet)
- Festeavgift
- 182 kr
- Byggeår
- 1955
- Soverom
- 1
- Rom
- 2
Fasiliteter
Balkong/Terrasse
Turterreng
Bilvei frem
Innlagt strøm
Innlagt vann
Visning
torsdag, 12. mars
16:30 – 17:30
Alle våre visninger har påmelding. Dette for at vi kan planlegge visningene best mulig, og ha god tid til de som kommer. Det er enkelt å melde seg på, og du kan like enkelt melde deg av. Visninger uten påmeldte deltakere kan bli avlyst.
Husk å lese komplett salgsoppgave før visning. Bestill komplett, utskriftsvennlig salgsoppgave.
VisningspåmeldingOm boligen
Velkommen til Hellandsgata 25 - Presentert av EiendomsMegler 1 Lofoten:
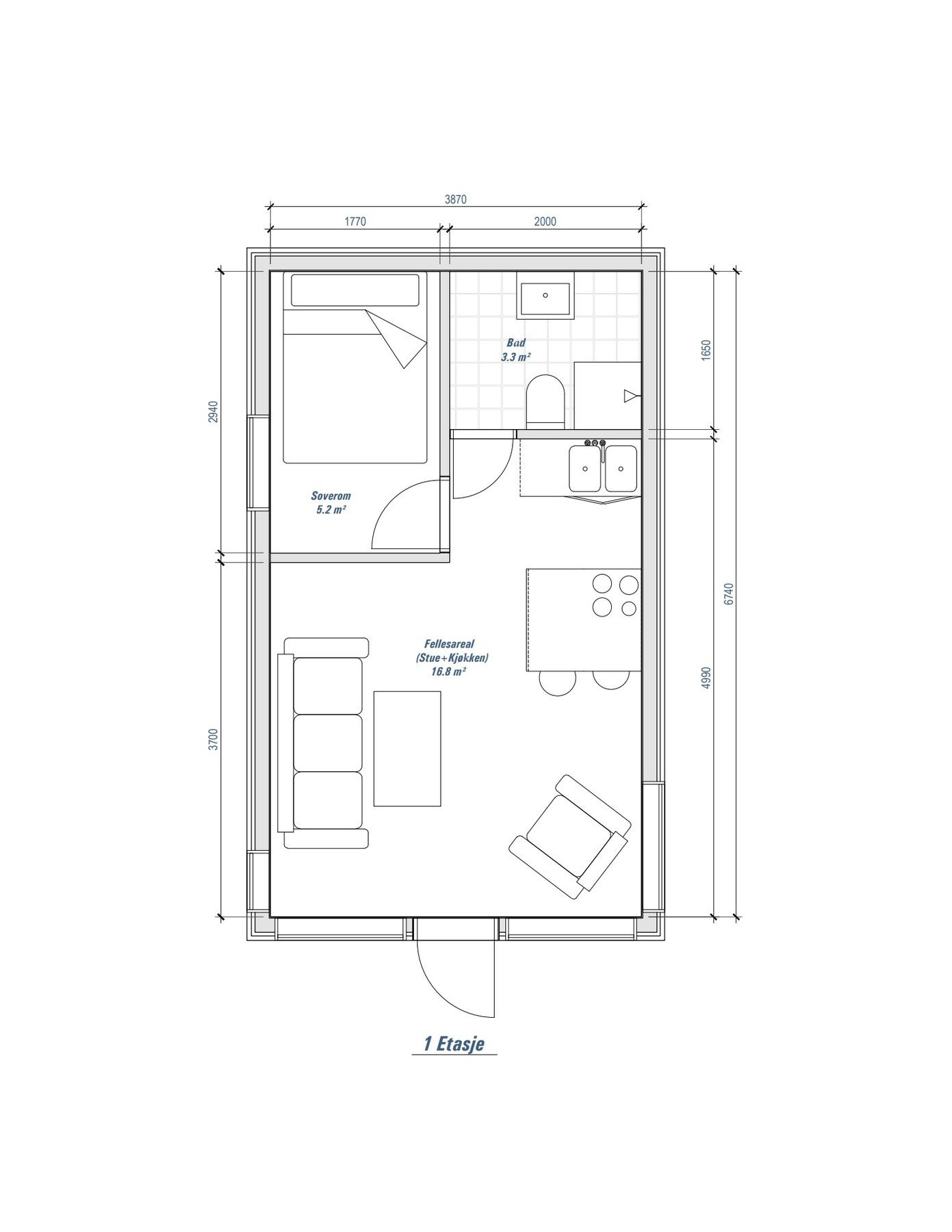
Eiendommen ble opprinnelig benyttet som kiosk, men ble i senere tid omgjort til fritidsbolig. Boligen har god og arealeffektiv planløsning med åpen stue-/kjøkkenløsning, soverom og bad. Stuen har gode vindusflater som gir godt med dagslys inn, og kjøkkenet er praktisk utformet med halvøy. Utenfor er det laget en romslig terrasse.
Beliggenhet med gåavstand til alt Henningsvær har å by på av hyggelige kafeer, restauranter, gallerier, dagligvare og flotte turmuligheter. Lofoten er et eldorado for friluftsinteresserte med turer i forskjellig terreng og vanskelighetsgrader. Muligheter for sykling, klatring, skigåing, kajakkturer, fiske, surfe, spille golf og mange flere aktiviteter.
Det foreligger vedtak som godkjenner bruksendring fra fritidsbolig til kafé/galleri for de som ønsker denne muligheten.
Last ned salgsoppgaven for utfyllende informasjon om eiendommen.
Velkommen til hyggelig visning!
Eiendommen ble opprinnelig benyttet som kiosk, men ble i senere tid omgjort til fritidsbolig. Boligen har god og arealeffektiv planløsning med åpen stue-/kjøkkenløsning, soverom og bad. Stuen har gode vindusflater som gir godt med dagslys inn, og kjøkkenet er praktisk utformet med halvøy. Utenfor er det laget en romslig terrasse.
Beliggenhet med gåavstand til alt Henningsvær har å by på av hyggelige kafeer, restauranter, gallerier, dagligvare og flotte turmuligheter. Lofoten er et eldorado for friluftsinteresserte med turer i forskjellig terreng og vanskelighetsgrader. Muligheter for sykling, klatring, skigåing, kajakkturer, fiske, surfe, spille golf og mange flere aktiviteter.
Det foreligger vedtak som godkjenner bruksendring fra fritidsbolig til kafé/galleri for de som ønsker denne muligheten.
Last ned salgsoppgaven for utfyllende informasjon om eiendommen.
Velkommen til hyggelig visning!
NB: Knappen for å vise hele beskrivelsen har kun en visuell effekt.
NB: Knappen for å vise hele beskrivelsen har kun en visuell effekt.
Salgsoppgaven beskriver vesentlig og lovpålagt informasjon om eiendommen
Se komplett salgsoppgaveNyttige lenker
Nærområdet
EiendomsMegler 1 Lofoten
Vi loser deg trygt gjennom hele boligsalget
Annonseinformasjon
| FINN-kode | 452986245 |
|---|---|
| Sist endret | 02. mars 2026 14:12 |
| Referanse | 16260009 |
Annonsene kan være mangelfulle i forhold til lovpålagt opplysningsplikt. Før bindende avtale inngås oppfordres interessenter til å innhente komplett informasjon fra meglerforetaket, selger eller utleier.





















