Bildegalleri

Velkommen til Amtmann Meinichs gate 20C! Romslig stue med plass til sofagruppe og spisebord. Fyring inkludert i husleien. Foto: Trond Walsø / Walso Work
Sandaker
Oppgradert 2-roms i høy 1. etg. | Kvik-kjøkken 2024 | Parkett og god takhøyde | Fyring og varmtvann inkl. | Sentralt
Prisantydning4 500 000 kr
Nøkkelinfo
- Boligtype
- Leilighet
- Eieform
- Aksje
- Soverom
- 1
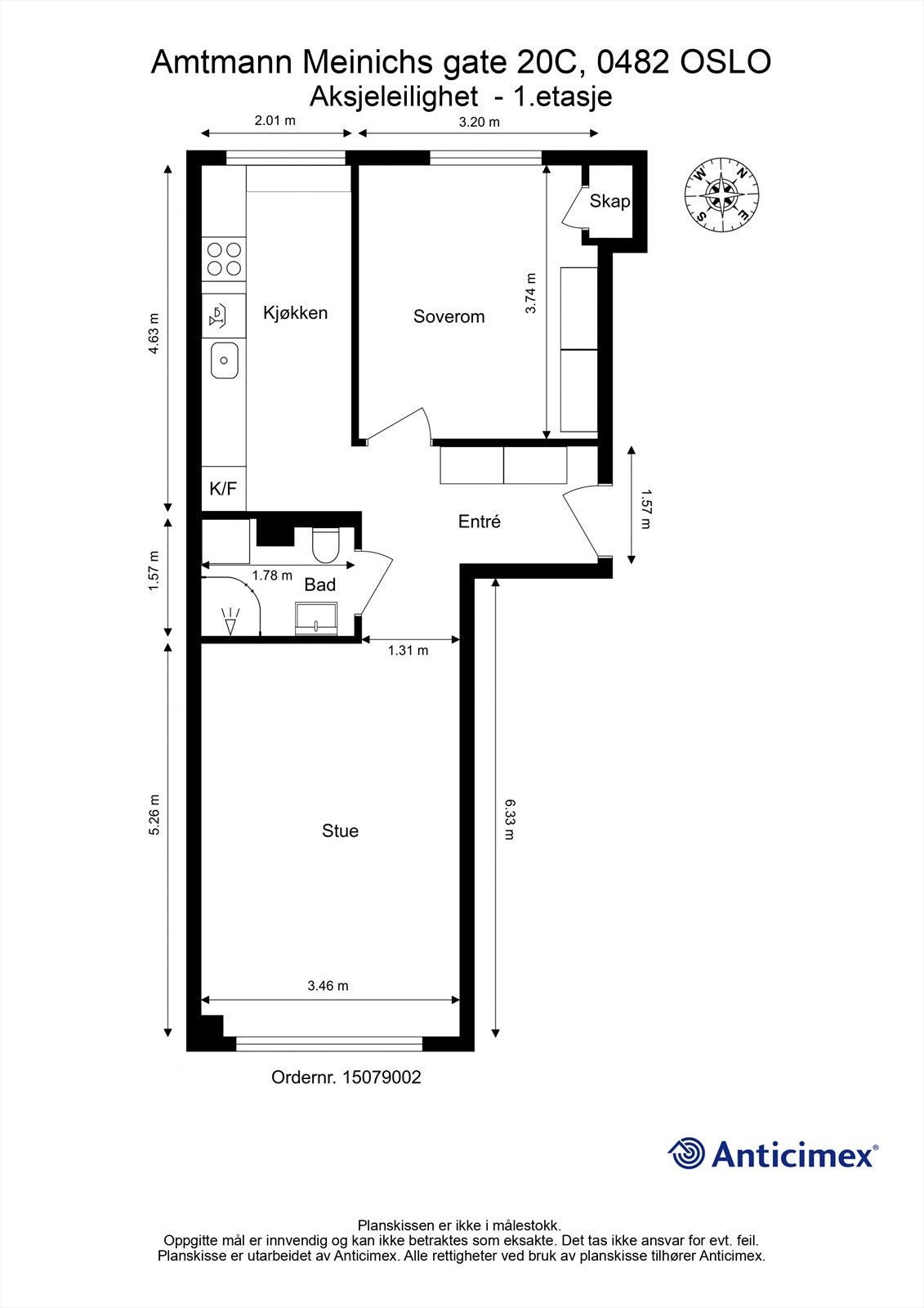
- Internt bruksareal
- 51 m² (BRA-i)
- Bruksareal
- 56 m²
- Eksternt bruksareal
- 5 m² (BRA-e)
- Etasje
- 1
- Byggeår
- 1939
- Energimerking
- E - Oransje
- Rom
- 2
- Tomteareal
- 1 338 m² (eiet)
Fasiliteter
Kjæledyr tillatt
Parkett
Sentralt
Visning
søndag, 08. mars
14:00 – 15:00
mandag, 09. mars
17:00 – 18:00
For å delta på visning, ber vi om at du melder deg på. Da sikrer vi at du får nødvendig informasjon og at det er satt av tilstrekkelig med tid. Kontakt megler dersom annet tidspunkt ønskes. Husk å lese salgsoppgaven før visningen, så du stiller forberedt.
Ønsker du kun å bli holdt orientert, kan du fra eiendommens hjemmeside få varsel om solgtpris, eller kontakte megler.
VisningspåmeldingOm boligen
Velkommen til Amtmann Meinichs gate 20C! En gjennomgående og nylig oppgradert 2-roms leilighet med høy standard og sentral beliggenhet.
Her bor du i en høy 1. etasje, tilbaketrukket i en rolig gate, med umiddelbar nærhet til alt Sandaker og Nydalen har å by på. Med T-bane, trikk og buss rett i nærheten er du raskt i sentrum eller marka. Hverdagen blir enkel med kort vei til Storo Storsenter, butikker, kafeer og treningssentre.
Høydepunkter:
- Vesentlig oppgradert i 2024 med bl.a. nytt elektrisk anlegg
- Parkett, downlights og god takhøyde på opptil 2,65 m
- Lys og romslig stue
- Lekkert Kvik-kjøkken fra 2024 med integrerte hvitevarer
- Soverom mot rolig bakgård
- Flislagt bad fra 2007, oppgradert i 2024
- Fyring og varmtvann inkludert
- To disponible boder for ekstra lagringsplass
Her bor du i en høy 1. etasje, tilbaketrukket i en rolig gate, med umiddelbar nærhet til alt Sandaker og Nydalen har å by på. Med T-bane, trikk og buss rett i nærheten er du raskt i sentrum eller marka. Hverdagen blir enkel med kort vei til Storo Storsenter, butikker, kafeer og treningssentre.
Høydepunkter:
- Vesentlig oppgradert i 2024 med bl.a. nytt elektrisk anlegg
- Parkett, downlights og god takhøyde på opptil 2,65 m
- Lys og romslig stue
- Lekkert Kvik-kjøkken fra 2024 med integrerte hvitevarer
- Soverom mot rolig bakgård
- Flislagt bad fra 2007, oppgradert i 2024
- Fyring og varmtvann inkludert
- To disponible boder for ekstra lagringsplass
NB: Knappen for å vise hele beskrivelsen har kun en visuell effekt.
NB: Knappen for å vise hele beskrivelsen har kun en visuell effekt.
Salgsoppgaven beskriver vesentlig og lovpålagt informasjon om eiendommen
Se komplett salgsoppgaveNyttige lenker
Nærområdet
Krogsveen Røa
Verdien av en god megler.
Annonseinformasjon
| FINN-kode | 452983654 |
|---|---|
| Sist endret | 03. mars 2026 07:37 |
| Referanse | KR48.264 |
Annonsene kan være mangelfulle i forhold til lovpålagt opplysningsplikt. Før bindende avtale inngås oppfordres interessenter til å innhente komplett informasjon fra meglerforetaket, selger eller utleier.




































