Bildegalleri

Velkommen til Kiprå 11. Foto: Stian Dirdal
Stangeland / Lunden - Enebolig med flott tomt (totalt 833 kvm) i enden av blindvei
Prisantydning5 990 000 kr
Nøkkelinfo
- Boligtype
- Enebolig
- Eieform
- Selveier
- Soverom
- 3
- Internt bruksareal
- 227 m² (BRA-i)
- Bruksareal
- 287 m²
- Eksternt bruksareal
- 60 m² (BRA-e)
- Balkong/Terrasse
- 38 m² (TBA)
- Byggeår
- 1978
- Energimerking
- Tomteareal
- 833 m² (eiet)
Fasiliteter
Barnevennlig
Balkong/Terrasse
Garasje/P-plass
Offentlig vann/kloakk
Parkett
Peis/Ildsted
Turterreng
Sentralt
Rolig
Om boligen
Vi i Eie Eiendomsmegling presenterer Kiprå 11 for salg.
Eiendommen har en fin beliggenhet like utenfor sentrumskjernen av Sandnes med gåavstand til det meste man trenger i hverdagen.
Endetomt med gode solforhold og hyggelig nabolag.
I boligen har tiden stått stille i mange år, foruten noen oppgraderinger.
Boligen går over to plan og inneholder:
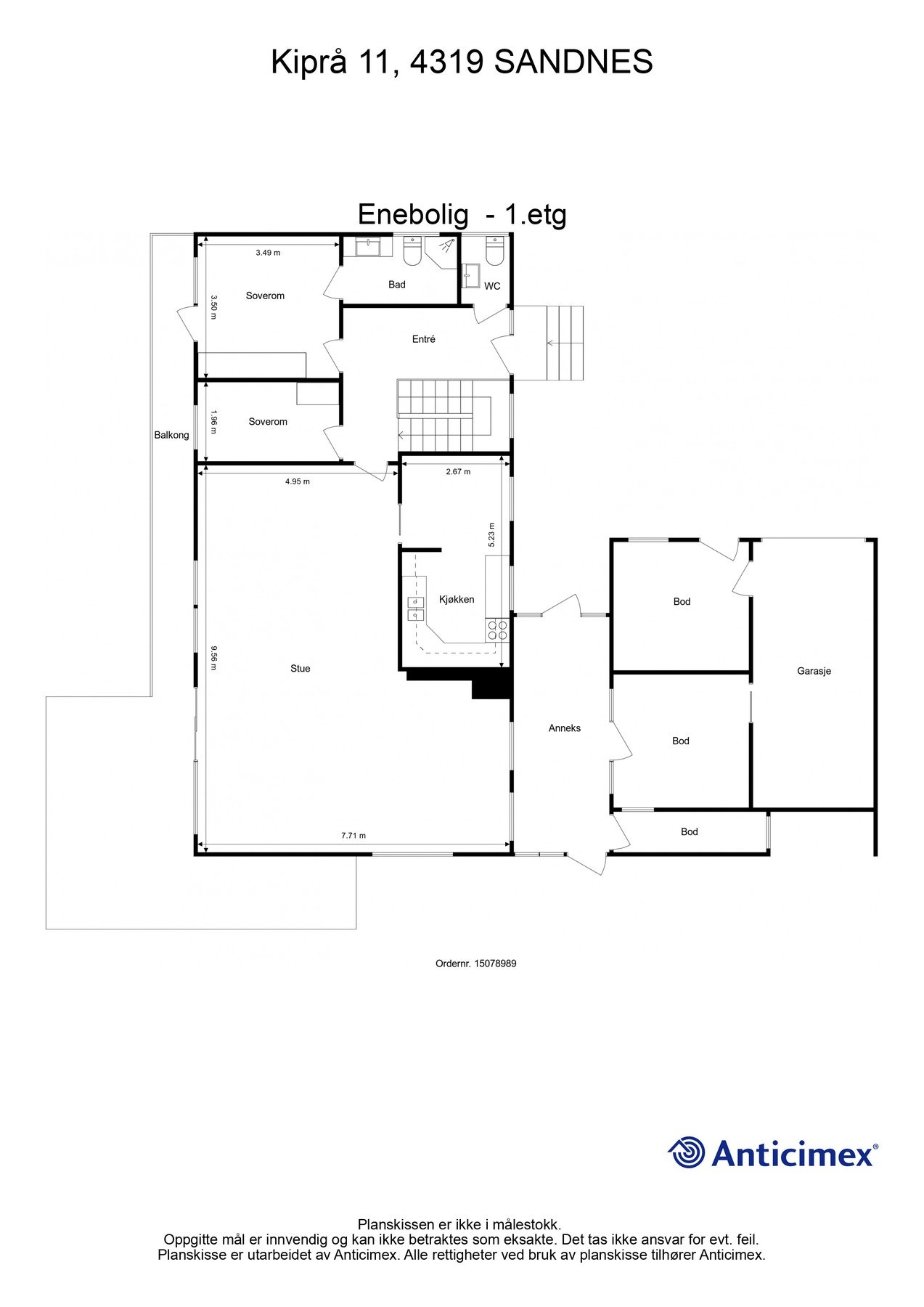
1.etg: Gang, gjeste-wc, soverom med utgang, bad, soverom, stue med utgang og kjøkken.
Kjeller: Inngang/gang, vaskerom, trappegang, boder, bad, matbod, strykerom, gjesterom, soverom og stue.
Garasje og stor utvendig bod.
Uteområdet er pent opparbeidet med stort hageareal og romslig gårdsrom.
Eiendommen består av 2 bruksnummer.
Velkommen til en hyggelig visning
Eiendommen har en fin beliggenhet like utenfor sentrumskjernen av Sandnes med gåavstand til det meste man trenger i hverdagen.
Endetomt med gode solforhold og hyggelig nabolag.
I boligen har tiden stått stille i mange år, foruten noen oppgraderinger.
Boligen går over to plan og inneholder:
1.etg: Gang, gjeste-wc, soverom med utgang, bad, soverom, stue med utgang og kjøkken.
Kjeller: Inngang/gang, vaskerom, trappegang, boder, bad, matbod, strykerom, gjesterom, soverom og stue.
Garasje og stor utvendig bod.
Uteområdet er pent opparbeidet med stort hageareal og romslig gårdsrom.
Eiendommen består av 2 bruksnummer.
Velkommen til en hyggelig visning
NB: Knappen for å vise hele beskrivelsen har kun en visuell effekt.
NB: Knappen for å vise hele beskrivelsen har kun en visuell effekt.
Salgsoppgaven beskriver vesentlig og lovpålagt informasjon om eiendommen
Se komplett salgsoppgaveNyttige lenker
Nærområdet
EIE eiendomsmegling Sandnes
Annonseinformasjon
| FINN-kode | 452979789 |
|---|---|
| Sist endret | 28. mars 2026 15:39 |
| Referanse | 62260008 |
Annonsene kan være mangelfulle i forhold til lovpålagt opplysningsplikt. Før bindende avtale inngås oppfordres interessenter til å innhente komplett informasjon fra meglerforetaket, selger eller utleier.
































