Bildegalleri

DNB Eiendom v/Joachim Vågen tlf. 91712768 ønsker deg velkommen til Måsåbekkvegen 11B!
Hamar Vest
Innholdsrikt rekkehus med barnevennlig beliggenhet på Storhamar |Hage og terrasse |Hybel | Gåavstand til skole/barnehage
Prisantydning3 950 000 kr
Nøkkelinfo
- Boligtype
- Rekkehus
- Eieform
- Eier (Selveier)
- Soverom
- 4
- Internt bruksareal
- 136 m² (BRA-i)
- Bruksareal
- 136 m²
- Balkong/Terrasse
- 37 m² (TBA)
- Etasje
- 2
- Byggeår
- 1966
- Energimerking
- E - Lysegrønn
- Tomteareal
- 173 m² (eiet)
Fasiliteter
Balkong/Terrasse
Barnevennlig
Garasje/P-plass
Hage
Offentlig vann/kloakk
Peis/Ildsted
Rolig
Sentralt
Turterreng
Visning
mandag, 09. mars
16:30 – 17:30
Våre visninger har påmelding. Dette gjør vi for å kunne yte bedre service for våre kunder. Verdifullt for boligkjøper og for oss. Vi anbefaler at salgsoppgaven leses før visning, og ring oss gjerne på forhånd for spørsmål om boligen. Passer ikke angitt tidspunkt, ta kontakt så finner vi en løsning. Skulle det mot formodning ikke være påmeldte 4 timer før angitt visningstidspunkt vil ikke visning bli gjennomført.
VisningspåmeldingOm boligen
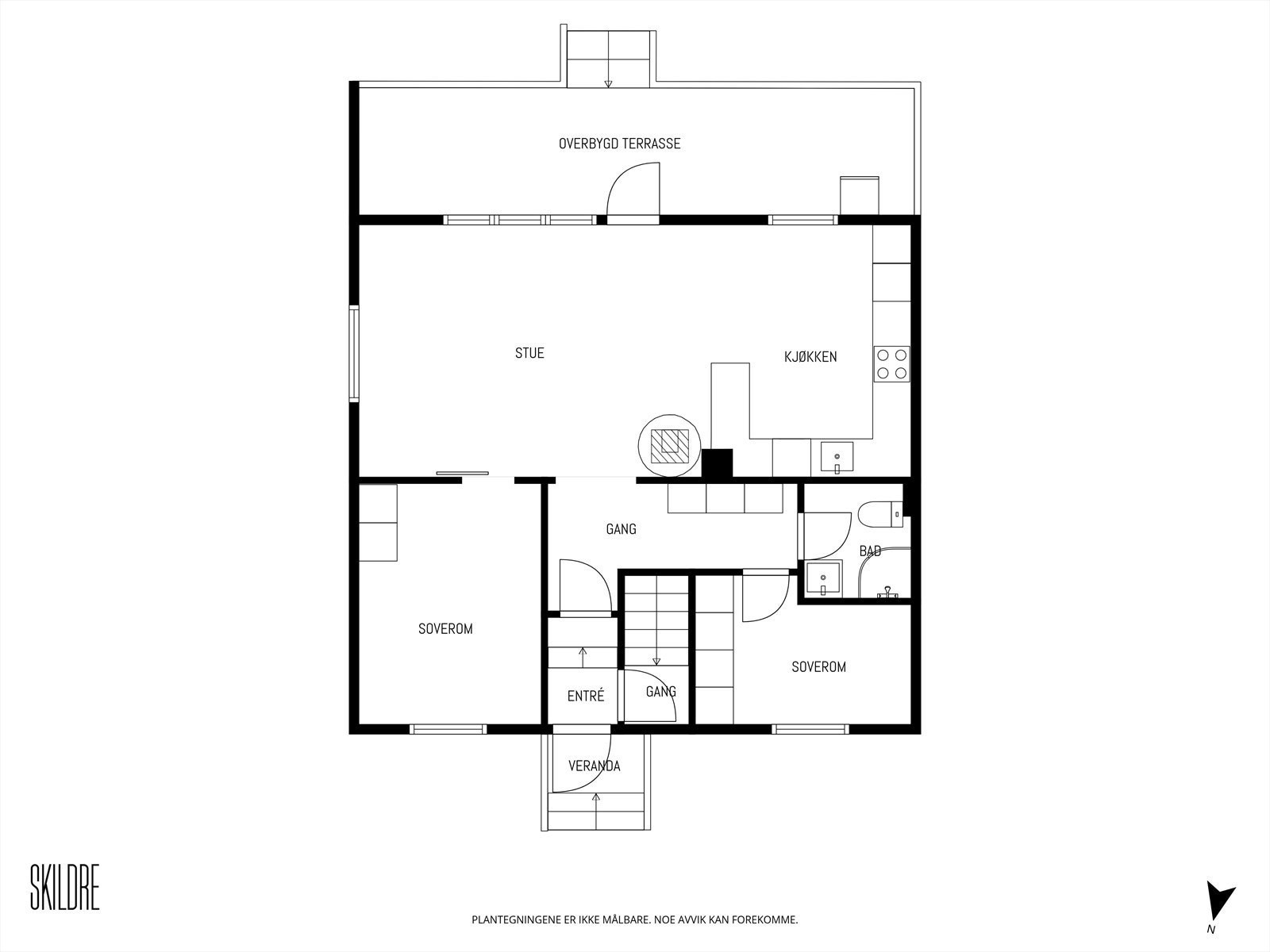
Velkommen til Måsåbekkvegen 11B - Innholdsrikt rekkehus beliggende i et etablert og attraktivt område på Hamar vest. Her bor du i et barnevennlig nabolag med gangavstand til barnehager og skoler, samtidig som du har enkel tilgang til det meste du trenger i hverdagen. Boligen inneholder bl.a. 2 lyse stuer, 2 kjøkken, 2 bad og 4 soverom. En flott familiebolig med sydvendt hage og overbygget terrasse.
Eiendommen har en rekke gode kvaliteter og vi ønsker å trekke frem:
Eiendommen har en rekke gode kvaliteter og vi ønsker å trekke frem:
- Sydvendt hage og overbygget terrasse
- Moderne kjøkken i hovedetasjen
- Biloppstillingsplass utenfor
- Hybel i kjelleretasjen
- Peisovn og varmepumpe
- 2 bad, ett pusset opp i 2020
- Kort gåavstand til barnehage, skoler og dagligvare
NB: Knappen for å vise hele beskrivelsen har kun en visuell effekt.
NB: Knappen for å vise hele beskrivelsen har kun en visuell effekt.
Salgsoppgaven beskriver vesentlig og lovpålagt informasjon om eiendommen
Se komplett salgsoppgaveNyttige lenker
Nærområdet
DNB Eiendom AS
Verdifulle salg
Annonseinformasjon
| FINN-kode | 452977278 |
|---|---|
| Sist endret | 02. mars 2026 08:48 |
| Referanse | 517250182 |
Annonsene kan være mangelfulle i forhold til lovpålagt opplysningsplikt. Før bindende avtale inngås oppfordres interessenter til å innhente komplett informasjon fra meglerforetaket, selger eller utleier.

















































