Bildegalleri

Velkommen til Sloratoppen 17A!
Langhus
Tomannsbolig med dobbelgarasje - Fire soverom - Nyoppusset bad i 2022 - Usjenerte og solrike uteområder - Barnevennlig!
Prisantydning6 990 000 kr
Nøkkelinfo
- Boligtype
- Tomannsbolig
- Eieform
- Selveier
- Soverom
- 4
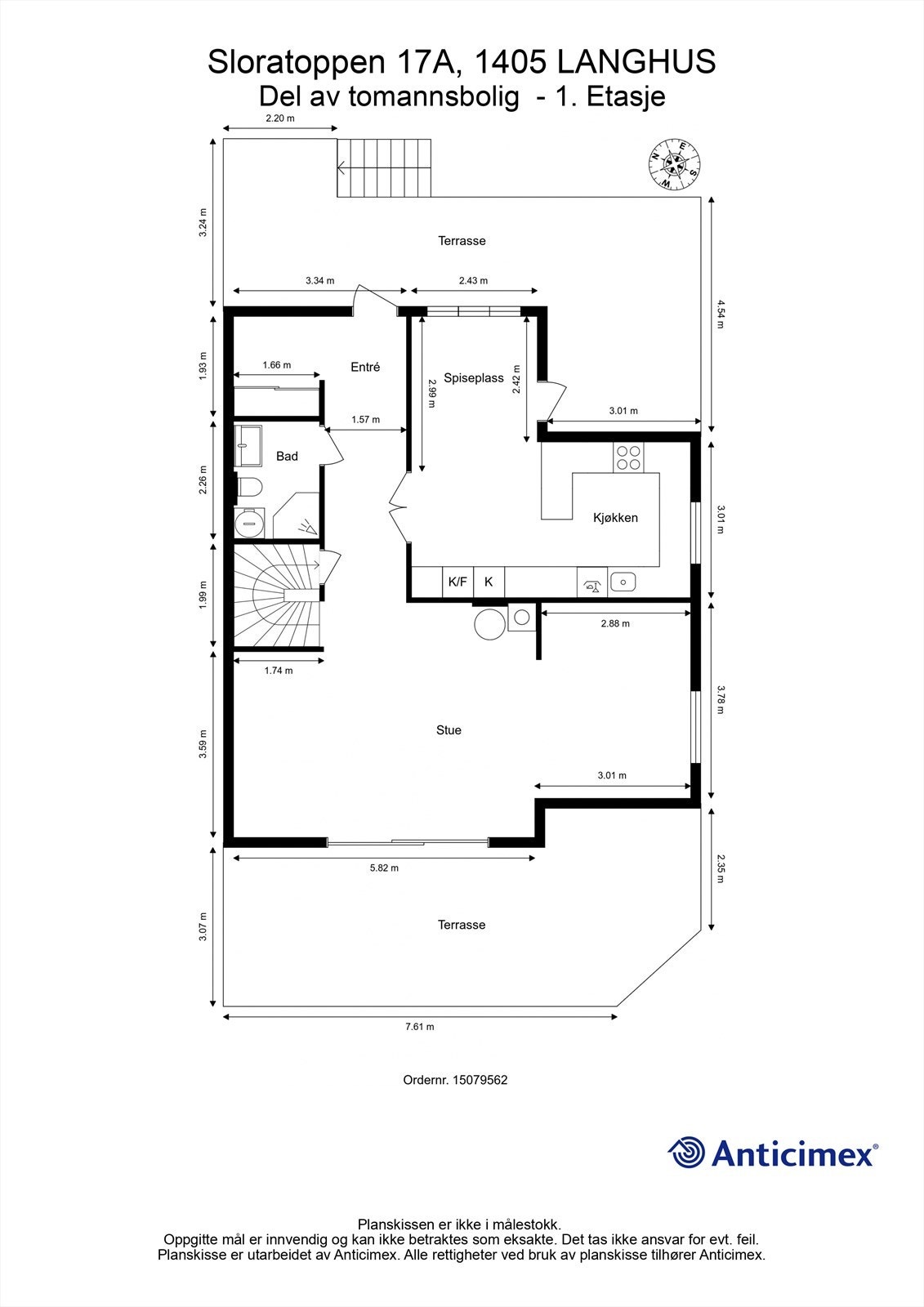
- Internt bruksareal
- 152 m² (BRA-i)
- Bruksareal
- 182 m²
- Eksternt bruksareal
- 30 m² (BRA-e)
- Balkong/Terrasse
- 64 m² (TBA)
- Byggeår
- 2007
- Energimerking
- Tomteareal
- 2 064 m² (eiet)
Fasiliteter
Balkong/Terrasse
Barnevennlig
Bredbåndstilknytning
Garasje/P-plass
Golfbane
Hage
Kjæledyr tillatt
Offentlig vann/kloakk
Parkett
Peis/Ildsted
Rolig
Bademulighet
Turterreng
Visning
søndag, 12. april
12:00 – 13:00
For å delta på visning, ber vi om at du melder deg på. Da sikrer vi at du får nødvendig informasjon og at det er satt av tilstrekkelig med tid. Kontakt megler dersom annet tidspunkt ønskes. Husk å lese salgsoppgaven før visningen, så du stiller forberedt.
Ønsker du kun å bli holdt orientert, kan du fra eiendommens hjemmeside få varsel om solgtpris, eller kontakte megler.
VisningspåmeldingOm boligen
Velkommen til Sloratoppen 17A! Innholdsrik familiebolig med god planløsning og store uteplasser med gode solforhold
Her bor du i et trygt og familievennlig nabolag. Boligen har en flott planløsning med en egen sone for barna/ungdommen i 2. etasje, med fire soverom og TV-stue. Fra stuen og kjøkkenet er det utgang til to store terrasser, som skaper en fin overgang til hagen. Dette er et hjem skapt for et godt familieliv, med kort vei til skoler, barnehager og servicetilbud.
Høydepunkter:
Her bor du i et trygt og familievennlig nabolag. Boligen har en flott planløsning med en egen sone for barna/ungdommen i 2. etasje, med fire soverom og TV-stue. Fra stuen og kjøkkenet er det utgang til to store terrasser, som skaper en fin overgang til hagen. Dette er et hjem skapt for et godt familieliv, med kort vei til skoler, barnehager og servicetilbud.
Høydepunkter:
- Lekkert bad i 2. etasje, oppgradert i 2022 med dobbel servant
- Fire soverom og TV-stue i 2. etasje
- To store markterrasser og en veranda
- Peisovn og to varmepumper fra 2022
- Dobbelgarasje med elbillader
- Gulvvarme i hele 1. etasje og på bad i 2. etasje
Velkommen til visning!
NB: Knappen for å vise hele beskrivelsen har kun en visuell effekt.
NB: Knappen for å vise hele beskrivelsen har kun en visuell effekt.
Salgsoppgaven beskriver vesentlig og lovpålagt informasjon om eiendommen
Se komplett salgsoppgaveNyttige lenker
Nærområdet
Krogsveen Ski
Verdien av en god megler.
Annonseinformasjon
| FINN-kode | 452975071 |
|---|---|
| Sist endret | 27. mars 2026 12:04 |
| Referanse | KR46.2630 |
Annonsene kan være mangelfulle i forhold til lovpålagt opplysningsplikt. Før bindende avtale inngås oppfordres interessenter til å innhente komplett informasjon fra meglerforetaket, selger eller utleier.



























































