Bildegalleri

Velkommen til Ringshaugveien 7. Foto: Zovenfra
Solgt
BEKKESTUA SENTRUM/ BEKKESTUA HAVE
Nesten ny 3-roms endeleilighet med høy standard | Parkering med elbil-lader | Stor Balkong | Heis | Nærhet til alt!
Prisantydning9 500 000 kr
Nøkkelinfo
- Boligtype
- Leilighet
- Eieform
- Eier (Selveier)
- Soverom
- 2
- Internt bruksareal
- 71 m² (BRA-i)
- Bruksareal
- 76 m²
- Eksternt bruksareal
- 5 m² (BRA-e)
- Balkong/Terrasse
- 19 m² (TBA)
- Etasje
- 4
- Byggeår
- 2024
- Energimerking
- C - Lysegrønn
- Rom
- 3
- Tomteareal
- 15 835 m² (eiet)
Fasiliteter
Balkong/Terrasse
Barnevennlig
Bredbåndstilknytning
Garasje/P-plass
Heis
Kjæledyr tillatt
Offentlig vann/kloakk
Peis/Ildsted
Sentralt
Utsikt
Lademulighet
Balansert ventilasjon
Om boligen
Velkommen til Ringshaugveien 7 og en lekker, nyere (2024) 3-roms endeleilighet i attraktive Bekkestua Have, sentralt på Bekkestua. Her kan du nyte en rekke av fasiliteter, inkludert butikker, restauranter, kaféer, offentlig kommunikasjon og mye mer, alt innen gangavstand fra din egen dør. Med denne leiligheten har du alt du trenger for å leve et komfortabelt og praktisk liv.
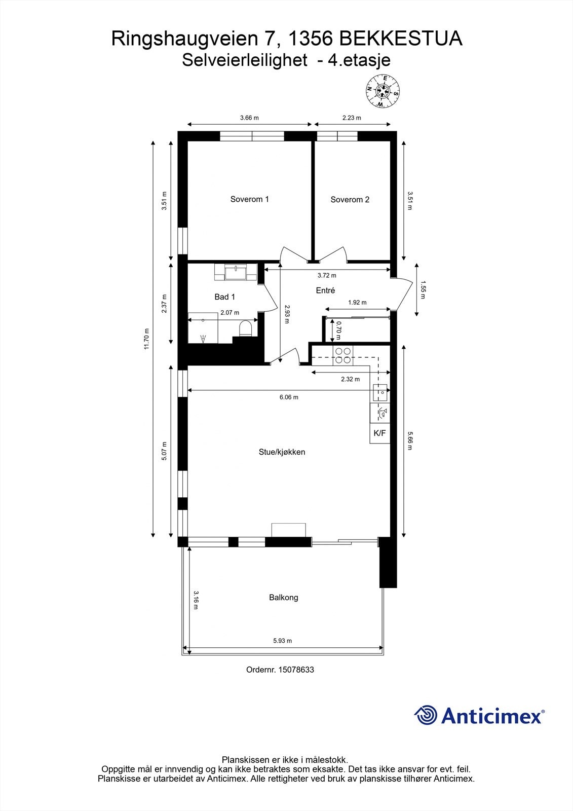
Leiligheten ligger i byggets 4. etasje og holder en høy, moderne standard. Boligen har en flott planløsning bestående av entré, stue med åpen kjøkkenløsning, to gode soverom og et lekkert baderom. Ved stuen er det en nydelig vestvendt, solrik balkong på hele 19 kvm med flott utsikt. Utsikten kan også nytes innendørs, blant annet ned til Oslofjorden fra soverommene. Videre er det heis i bygget og garasjeplass med lader
Leiligheten ligger i byggets 4. etasje og holder en høy, moderne standard. Boligen har en flott planløsning bestående av entré, stue med åpen kjøkkenløsning, to gode soverom og et lekkert baderom. Ved stuen er det en nydelig vestvendt, solrik balkong på hele 19 kvm med flott utsikt. Utsikten kan også nytes innendørs, blant annet ned til Oslofjorden fra soverommene. Videre er det heis i bygget og garasjeplass med lader
NB: Knappen for å vise hele beskrivelsen har kun en visuell effekt.
NB: Knappen for å vise hele beskrivelsen har kun en visuell effekt.
Salgsoppgaven beskriver vesentlig og lovpålagt informasjon om eiendommen
Se komplett salgsoppgaveNyttige lenker
Nærområdet
Krogsveen Bærum
Verdien av en god megler.
Annonseinformasjon
| FINN-kode | 452972822 |
|---|---|
| Sist endret | 17. mars 2026 19:23 |
| Referanse | KR10.25363 |
Annonsene kan være mangelfulle i forhold til lovpålagt opplysningsplikt. Før bindende avtale inngås oppfordres interessenter til å innhente komplett informasjon fra meglerforetaket, selger eller utleier.


































