Bildegalleri

Pen rekkehusleilighet oppgradert i 2018-Usjenerte og solrike uteplasser-Garasjeplass.
Prisantydning2 300 000 kr
Nøkkelinfo
- Boligtype
- Rekkehus
- Eieform
- Andel
- Soverom
- 1
- Internt bruksareal
- 60 m² (BRA-i)
- Bruksareal
- 66 m²
- Eksternt bruksareal
- 6 m² (BRA-e)
- Balkong/Terrasse
- 34 m² (TBA)
- Etasje
- 1
- Byggeår
- 1979
- Energimerking
- Rom
- 2
- Tomteareal
- 103 246 m² (eiet)
Fasiliteter
Balkong/Terrasse
Barnevennlig
Garasje/P-plass
Hage
Kjæledyr tillatt
Ingen gjenboere
Turterreng
Lademulighet
Om boligen
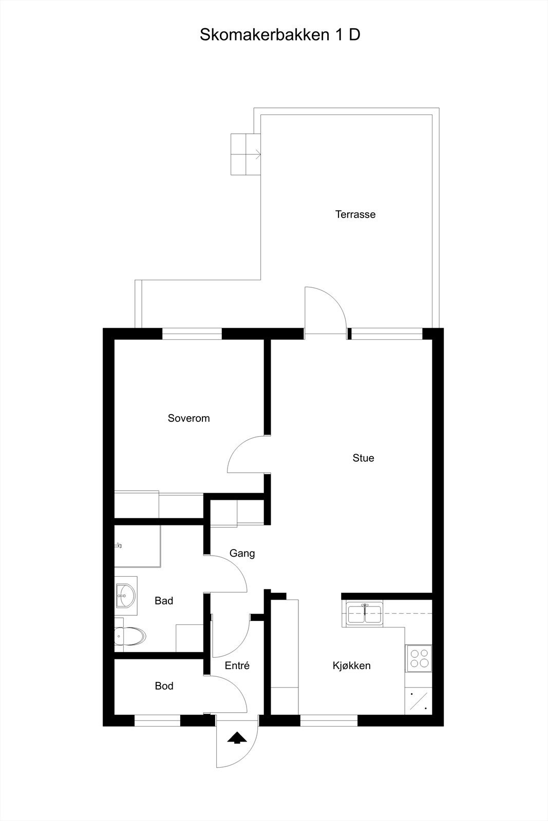
Velkommen til Skomakerbakken 1 D - en praktisk og lettstelt rekkehusleilighet på ett plan med gjennomgående god standard og smart planløsning.
Boligen består av vindfang, stue, kjøkken, bad, soverom og bod, samt utvendig sportsbod. Store deler av boligen ble oppgradert i 2018, også bad og kjøkken.
Det er tarrassearealer på til sammen 34 kvm. på østsiden og vestsiden av bygget - perfekt for å nyte solen gjennom hele dagen.
Attraktiv og barnevennlig beliggenhet på Skredderåsen, ca. 4 km fra Moss sentrum, med kort vei til skoler, barnehager, Kambo senter, kollektivtransport og flotte tur- og friluftsområder.
Boligen består av vindfang, stue, kjøkken, bad, soverom og bod, samt utvendig sportsbod. Store deler av boligen ble oppgradert i 2018, også bad og kjøkken.
Det er tarrassearealer på til sammen 34 kvm. på østsiden og vestsiden av bygget - perfekt for å nyte solen gjennom hele dagen.
Attraktiv og barnevennlig beliggenhet på Skredderåsen, ca. 4 km fra Moss sentrum, med kort vei til skoler, barnehager, Kambo senter, kollektivtransport og flotte tur- og friluftsområder.
NB: Knappen for å vise hele beskrivelsen har kun en visuell effekt.
NB: Knappen for å vise hele beskrivelsen har kun en visuell effekt.
Salgsoppgaven beskriver vesentlig og lovpålagt informasjon om eiendommen
Se komplett salgsoppgaveNyttige lenker
Nærområdet
GARANTI Eiendomsmegling Moss
Annonseinformasjon
| FINN-kode | 452971672 |
|---|---|
| Sist endret | 27. feb. 2026 13:38 |
| Referanse | GAR69.266 |
Annonsene kan være mangelfulle i forhold til lovpålagt opplysningsplikt. Før bindende avtale inngås oppfordres interessenter til å innhente komplett informasjon fra meglerforetaket, selger eller utleier.
































