Bildegalleri

Moderne og romslig 3-roms hjørneleilighet med stor og usjenert terrasse.
Ensjø
Lys og moderne 3-roms hjørneleilighet med solrik terrasse på 15 kvm - Vender inn mot bakgård - Garasje* - Sentralt
Prisantydning6 600 000 kr
Nøkkelinfo
- Boligtype
- Leilighet
- Eieform
- Eier (Selveier)
- Soverom
- 2
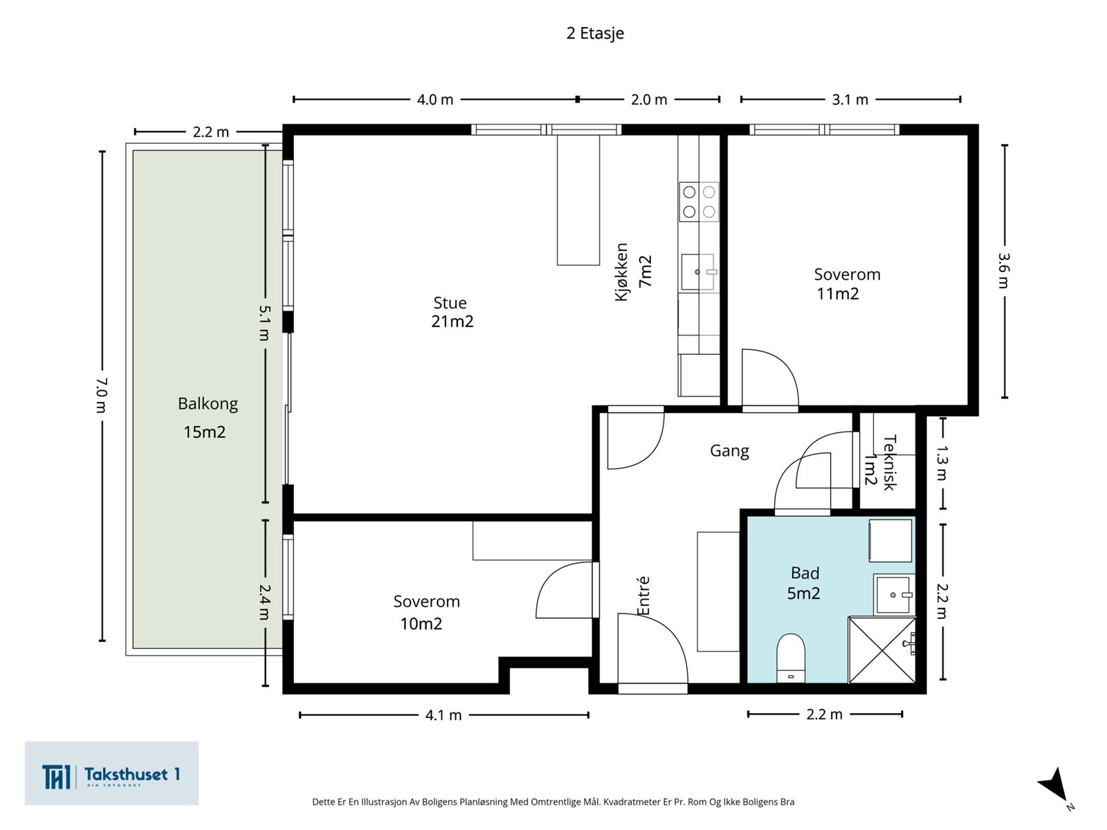
- Internt bruksareal
- 63 m² (BRA-i)
- Bruksareal
- 68 m²
- Eksternt bruksareal
- 5 m² (BRA-e)
- Balkong/Terrasse
- 15 m² (TBA)
- Etasje
- 2
- Byggeår
- 2022
- Energimerking
- B - Mørkegrønn
- Rom
- 3
- Tomteareal
- 4 135 m² (eiet)
Fasiliteter
Barnevennlig
Balkong/Terrasse
Garasje/P-plass
Kabel-TV
Heis
Parkett
Sentralt
Bredbåndstilknytning
Moderne
Lademulighet
Balansert ventilasjon
Visning
søndag, 08. mars
13:00 – 14:00
Velkommen til visning!
Alle våre visninger har påmelding. På denne måten sikrer vi at megler har god oversikt og tid til å imøtekomme alle interessenter på beste måte. Dette er veldig verdifullt for boligkjøpere og for oss. Det er enkelt å melde seg på, og du kan like enkelt melde deg av. Kontakt også gjerne megler i forkant av visning dersom du har spørsmål.
mandag, 09. mars
17:00 – 18:00
Velkommen til visning!
Alle våre visninger har påmelding. På denne måten sikrer vi at megler har god oversikt og tid til å imøtekomme alle interessenter på beste måte. Dette er veldig verdifullt for boligkjøpere og for oss. Det er enkelt å melde seg på, og du kan like enkelt melde deg av. Kontakt også gjerne megler i forkant av visning dersom du har spørsmål.
Om boligen
Lys og svært tiltalende 3-roms hjørneleilighet med hyggelig terrasse som vender inn mot rolig bakgård. Leiligheten har en smart og arealeffektiv planløsning med god størrelse på alle rommene. Her bor du sentralt og tilbaketrukket i en moderne boligblokk fra 2022.
- Nybygg-garanti til 2027
- Sydøstvendt terrasse på 15 kvm
- Lys og luftig stue med lysinnslipp fra to sider
- Store vindusflater
- HTH-kjøkken med integrerte hvitevarer og kjøkkenøy
- Stort og delikat baderom
- Innvendig bod
- Romslig kjellerbod på 5 kvm
- Heis
- Mulighet for kjøp av garasjeplass med elbillader for kr 600 000,-
- Sykkelbod og verksted
- Røykvarslingssystem og sprinkleranlegg
- Tilbaketrukken og rolig beliggenhet
- Flere matbutikker og spisesteder rett utenfor døren
- Fra garasjeanlegget kan man ta seg direkte til Kiwi, noe som er praktisk og enkelt i en hektisk hverdag
- Kun 2 minutter til Ensjø Torg med tilgang til T-bane (linje 1-4)
- Nybygg-garanti til 2027
- Sydøstvendt terrasse på 15 kvm
- Lys og luftig stue med lysinnslipp fra to sider
- Store vindusflater
- HTH-kjøkken med integrerte hvitevarer og kjøkkenøy
- Stort og delikat baderom
- Innvendig bod
- Romslig kjellerbod på 5 kvm
- Heis
- Mulighet for kjøp av garasjeplass med elbillader for kr 600 000,-
- Sykkelbod og verksted
- Røykvarslingssystem og sprinkleranlegg
- Tilbaketrukken og rolig beliggenhet
- Flere matbutikker og spisesteder rett utenfor døren
- Fra garasjeanlegget kan man ta seg direkte til Kiwi, noe som er praktisk og enkelt i en hektisk hverdag
- Kun 2 minutter til Ensjø Torg med tilgang til T-bane (linje 1-4)
NB: Knappen for å vise hele beskrivelsen har kun en visuell effekt.
NB: Knappen for å vise hele beskrivelsen har kun en visuell effekt.
Salgsoppgaven beskriver vesentlig og lovpålagt informasjon om eiendommen
Se komplett salgsoppgaveNyttige lenker
Nærområdet
Privatmegleren Kvartal
Kun det beste på dine vegne
Annonseinformasjon
| FINN-kode | 452966967 |
|---|---|
| Sist endret | 05. mars 2026 14:46 |
| Referanse | 316260017 |
Annonsene kan være mangelfulle i forhold til lovpålagt opplysningsplikt. Før bindende avtale inngås oppfordres interessenter til å innhente komplett informasjon fra meglerforetaket, selger eller utleier.






































