Bildegalleri

Eiendomsmegler Krogsveen v/ Vegard Gran-Andersen ønsker velkommen til Stubben 6!
Skedsmokorset
Enebolig i barnevennlig område på Skedsmokorset | Sentralt | Sørvendt terrasse og hage | Oppussingsobjekt
Prisantydning4 700 000 kr
Nøkkelinfo
- Boligtype
- Enebolig
- Eieform
- Eier (Selveier)
- Soverom
- 3
- Internt bruksareal
- 202 m² (BRA-i)
- Bruksareal
- 208 m²
- Eksternt bruksareal
- 6 m² (BRA-e)
- Balkong/Terrasse
- 15 m² (TBA)
- Etasje
- 2
- Byggeår
- 1975
- Energimerking
- G - Rød
- Rom
- 4
- Tomteareal
- 630 m² (eiet)
Fasiliteter
Balkong/Terrasse
Barnevennlig
Garasje/P-plass
Parkett
Peis/Ildsted
Rolig
Sentralt
Om boligen
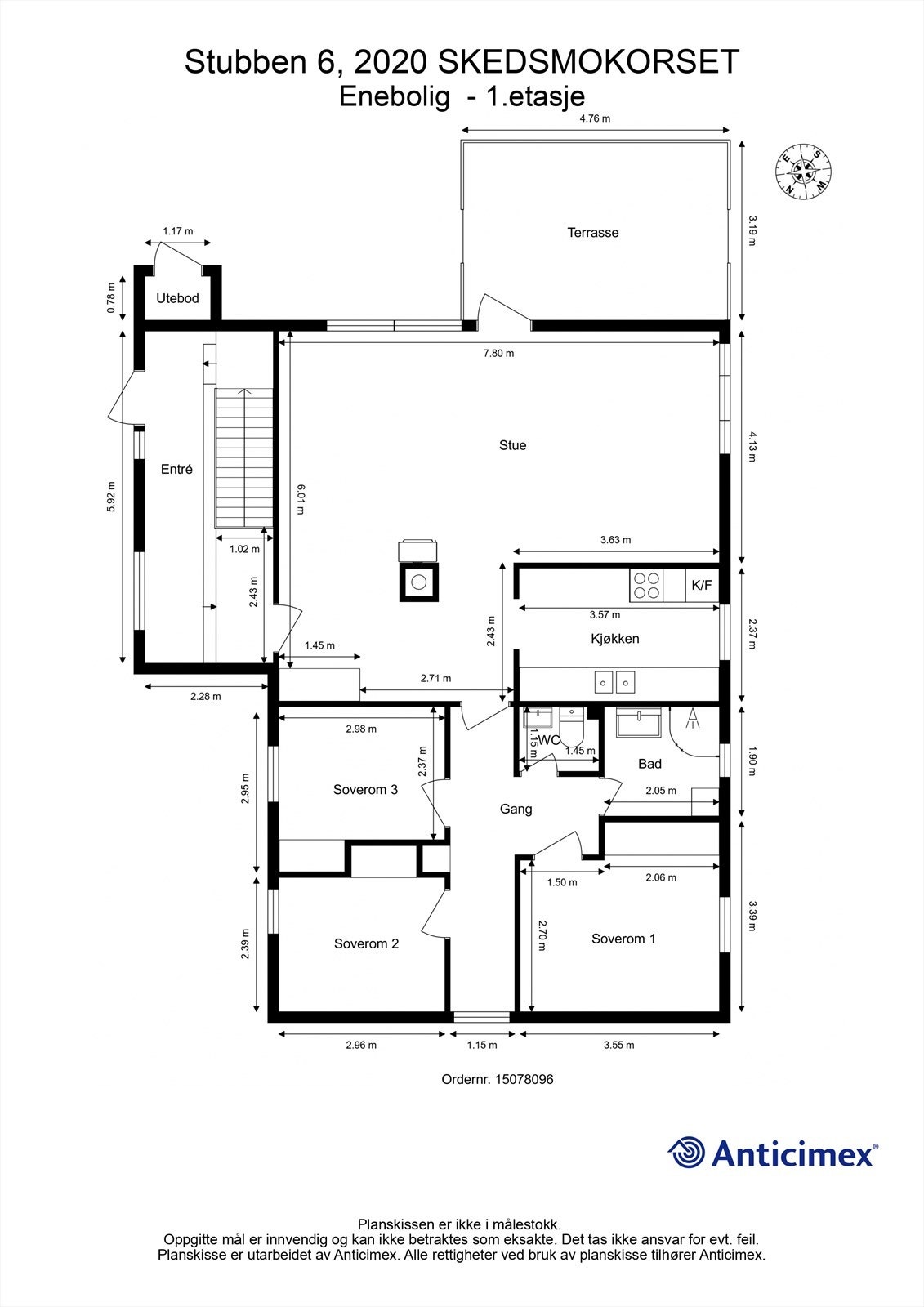
Velkommen til Stubben 6! Enebolig med sentral beliggenhet på Skedsmokorset. Oppussingsobjekt
Her bor du i et etablert og barnevennlig nabolag med gangavstand til Skedsmo senter, skoler og barnehager. Området byr også på flotte turmuligheter i Tæruddalen, med lysløyper og badevann, som gir rikelig med rekreasjon året rundt. Den sørvendte terrassen byr på gode solforhold, perfekt for å nyte gode dager utendørs.
Her bor du i et etablert og barnevennlig nabolag med gangavstand til Skedsmo senter, skoler og barnehager. Området byr også på flotte turmuligheter i Tæruddalen, med lysløyper og badevann, som gir rikelig med rekreasjon året rundt. Den sørvendte terrassen byr på gode solforhold, perfekt for å nyte gode dager utendørs.
- Enebolig over to plan med tre soverom i hovedetasjen
- Sørvendt terrasse på 15 m² med utgang fra stuen
- Kjeller med bad/vaskerom og kjellerstue
- Gode lagringsmuligheter med boder i kjeller
- Kort vei til buss og servicetilbud
Kontakt megler og bli med på en hyggelig visning!
NB: Knappen for å vise hele beskrivelsen har kun en visuell effekt.
NB: Knappen for å vise hele beskrivelsen har kun en visuell effekt.
Salgsoppgaven beskriver vesentlig og lovpålagt informasjon om eiendommen
Se komplett salgsoppgaveNyttige lenker
Nærområdet
Krogsveen Lillestrøm
Verdien av en god megler.
Annonseinformasjon
| FINN-kode | 452962103 |
|---|---|
| Sist endret | 28. feb. 2026 17:57 |
| Referanse | KR60.25404 |
Annonsene kan være mangelfulle i forhold til lovpålagt opplysningsplikt. Før bindende avtale inngås oppfordres interessenter til å innhente komplett informasjon fra meglerforetaket, selger eller utleier.

































