Bildegalleri

Aldeles nydelig enebolig fra 2009. Stor, veldig innholdsrik bolig i veldig barnevennlig område.
Austevoll/Torangsvåg
Stor, meget pen enebolig fra 2009 på usjenert, solrik tomt. 5 sov, 2 bad. God planløsning. Garasje. Terrasse og hage.
Prisantydning7 990 000 kr
Nøkkelinfo
- Boligtype
- Enebolig
- Eieform
- Eier (Selveier)
- Soverom
- 5
- Internt bruksareal
- 303 m² (BRA-i)
- Bruksareal
- 364 m²
- Eksternt bruksareal
- 61 m² (BRA-e)
- Balkong/Terrasse
- 221 m² (TBA)
- Byggeår
- 2009
- Rom
- 7
- Tomteareal
- 1 989 m² (eiet)
Fasiliteter
Balkong/Terrasse
Barnevennlig
Bredbåndstilknytning
Garasje/P-plass
Hage
Parkett
Peis/Ildsted
Rolig
Sentralt
Utsikt
Turterreng
Balansert ventilasjon
Visning
søndag, 22. mars
13:15 – 14:15
Ønsker du å delta på visningen ber vi deg melde deg på slik at vi vet at du kommer. Da kan vi bistå alle best mulig og gi deg tiden du trenger på visningen. Kontakt gjerne megler før visning hvis du har spørsmål. Visningen avholdes bare dersom det er påmeldte. Hvis det ikke er oppsatt visningstidspunkt eller tidspunkt ikke passer, kontakt megler.
VisningspåmeldingOm boligen
Kort om bolig:
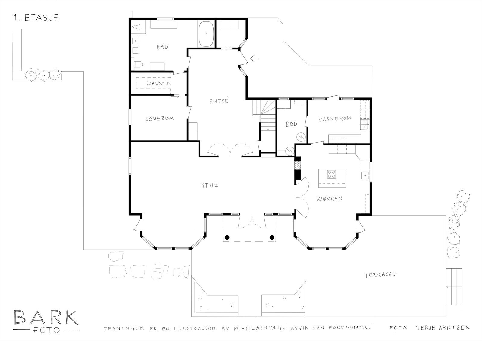
- Enebolig over to plan (278 m², 303 m² gulvareal)
- Bygget i 2009. God standard og gjennomtenkte valg på innredning
- Herlig planløsning med bl.a. luftige oppholdsrom, fine sosiale soner, bad i hver etg., stort vaskerom m/egen inngang
- Balansert ventilasjon
- Vannbåren varme
- 5 gode soverom, hvorav hovedsoverom har eget walk-in closet og bad
- Stor garasje (62 m² inkl. boder) med loft (24 m²)
- Stor terrasseplatting, balkong v/loftstue og flat plen rundt huset
Kort om beliggenhet:
- Solrik tomt, usjenert for innsyn fra naboer
- 9 min kjøring til fergekai
- Gangavstand til barnehage
- 5 min kjøring til flere barnehager og barneskole
- Hhv. 7 og 11 min kjøring til Austevoll ungdoms- og videregående skole
- 4 min kjøring til Coop Prix og 5 til Storebø senter
- Enebolig over to plan (278 m², 303 m² gulvareal)
- Bygget i 2009. God standard og gjennomtenkte valg på innredning
- Herlig planløsning med bl.a. luftige oppholdsrom, fine sosiale soner, bad i hver etg., stort vaskerom m/egen inngang
- Balansert ventilasjon
- Vannbåren varme
- 5 gode soverom, hvorav hovedsoverom har eget walk-in closet og bad
- Stor garasje (62 m² inkl. boder) med loft (24 m²)
- Stor terrasseplatting, balkong v/loftstue og flat plen rundt huset
Kort om beliggenhet:
- Solrik tomt, usjenert for innsyn fra naboer
- 9 min kjøring til fergekai
- Gangavstand til barnehage
- 5 min kjøring til flere barnehager og barneskole
- Hhv. 7 og 11 min kjøring til Austevoll ungdoms- og videregående skole
- 4 min kjøring til Coop Prix og 5 til Storebø senter
NB: Knappen for å vise hele beskrivelsen har kun en visuell effekt.
NB: Knappen for å vise hele beskrivelsen har kun en visuell effekt.
Salgsoppgaven beskriver vesentlig og lovpålagt informasjon om eiendommen
Se komplett salgsoppgaveNyttige lenker
Nærområdet
EiendomsMegler 1 Bergen
En del av Sparebank 1 Sør-Norge
Annonseinformasjon
| FINN-kode | 452840694 |
|---|---|
| Sist endret | 13. mars 2026 13:48 |
| Referanse | 2702250283 |
Annonsene kan være mangelfulle i forhold til lovpålagt opplysningsplikt. Før bindende avtale inngås oppfordres interessenter til å innhente komplett informasjon fra meglerforetaket, selger eller utleier.


















































