Bildegalleri

Velkommen til Parkveien 76B! Foto: Pontus Gustav Holmenäs.
Nydelig loftsleilighet med en herlig takterrasse på 6 kvm - Separat kjøkken - 71 GUA! - Attraktiv beliggenhet - Sentralt
Prisantydning5 990 000 kr
Nøkkelinfo
- Boligtype
- Leilighet
- Eieform
- Andel
- Soverom
- 2
- Internt bruksareal
- 54 m² (BRA-i)
- Bruksareal
- 57 m²
- Eksternt bruksareal
- 3 m² (BRA-e)
- Balkong/Terrasse
- 6 m² (TBA)
- Etasje
- 5
- Byggeår
- 1896
- Energimerking
- G
- Rom
- 3
- Tomteareal
- 439 m² (eiet)
Fasiliteter
Balkong/Terrasse
Offentlig vann/kloakk
Rolig
Sentralt
Turterreng
Om boligen
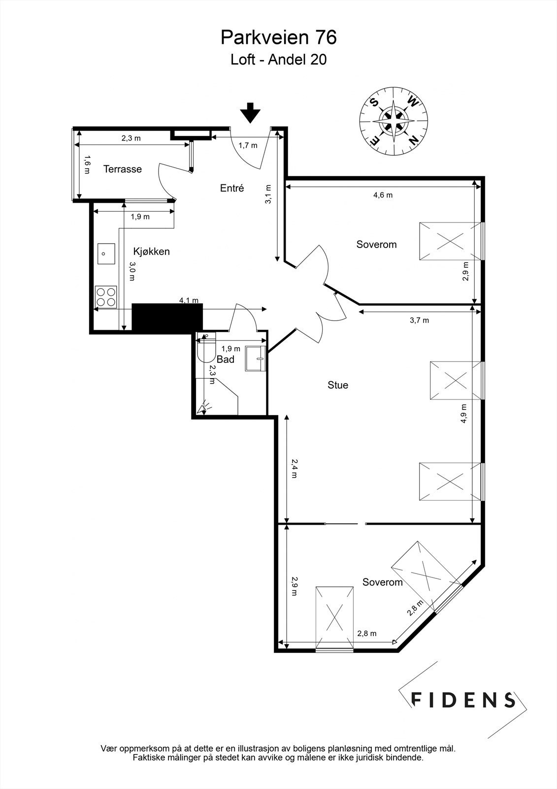
Velkommen til Parkveien 76 - en lys og innholdsrik leilighet i et attraktivt område på Vika.
Leiligheten har en gjennomtenkt planløsning med stue med hems, separat kjøkken, nydelig balkong med hyggelig utsyn, to soverom og ett bad.
Leiligheten ligger i et attraktivt og sentralt område i Vika med kort avstand til Aker Brygge, Tjuvholmen, Sentrum, Solli Plass og Frogner. Området er perfekt for deg som ønsker en kombinasjon av en sentral beliggenhet, og et sjarmerende og attraktivt bomiljø!
Kvaliteter:
- Store vindusflater som slipper rikelig inn med lys
- Hele 71 kvm i gulvareal!
- Meget god lagringsplass i boligen (stor hems)
- Solrik takterrasse på 6 kvm
- I nærhet til "alt" du trenger i hverdagen
- Kort vei til offentlig kommunikasjon
- Kjellerbod på 3 kvm
Leiligheten har en gjennomtenkt planløsning med stue med hems, separat kjøkken, nydelig balkong med hyggelig utsyn, to soverom og ett bad.
Leiligheten ligger i et attraktivt og sentralt område i Vika med kort avstand til Aker Brygge, Tjuvholmen, Sentrum, Solli Plass og Frogner. Området er perfekt for deg som ønsker en kombinasjon av en sentral beliggenhet, og et sjarmerende og attraktivt bomiljø!
Kvaliteter:
- Store vindusflater som slipper rikelig inn med lys
- Hele 71 kvm i gulvareal!
- Meget god lagringsplass i boligen (stor hems)
- Solrik takterrasse på 6 kvm
- I nærhet til "alt" du trenger i hverdagen
- Kort vei til offentlig kommunikasjon
- Kjellerbod på 3 kvm
NB: Knappen for å vise hele beskrivelsen har kun en visuell effekt.
NB: Knappen for å vise hele beskrivelsen har kun en visuell effekt.
Salgsoppgaven beskriver vesentlig og lovpålagt informasjon om eiendommen
Se komplett salgsoppgaveNyttige lenker
Nærområdet
Nordvik St.Hanshaugen
Annonseinformasjon
| FINN-kode | 452832550 |
|---|---|
| Sist endret | 02. mars 2026 19:09 |
| Referanse | 5-0456/25 |
Annonsene kan være mangelfulle i forhold til lovpålagt opplysningsplikt. Før bindende avtale inngås oppfordres interessenter til å innhente komplett informasjon fra meglerforetaket, selger eller utleier.





































