Bildegalleri

EIE Jessheim v/ Kristin Kjeksli (45445872) har gleden av å presentere Bjørkestubben 8B! (Foto: Bjørn Sørheim) Dette bildet er AI-redigert.
Påkostet familiebolig med fantastiske uteområder|Innerst i blindveg |Dbl garasje m/ loft|Barnevennlig område på Nordby!
Prisantydning7 890 000 kr
Nøkkelinfo
- Boligtype
- Enebolig
- Eieform
- Eier (Selveier)
- Soverom
- 4
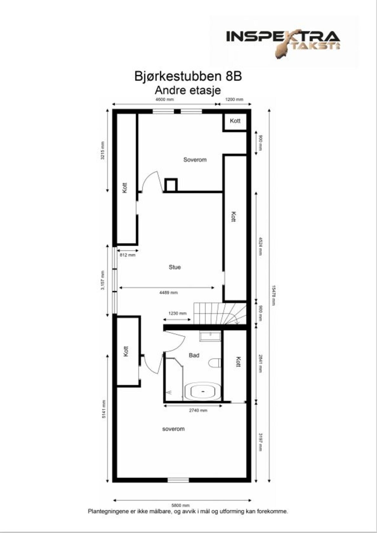
- Internt bruksareal
- 168 m² (BRA-i)
- Bruksareal
- 207 m²
- Eksternt bruksareal
- 39 m² (BRA-e)
- Balkong/Terrasse
- 60 m² (TBA)
- Byggeår
- 2009
- Energimerking
- C - Lysegrønn
- Tomteareal
- 886 m² (eiet)
Fasiliteter
Barnevennlig
Balkong/Terrasse
Garasje/P-plass
Offentlig vann/kloakk
Parkett
Peis/Ildsted
Turterreng
Sentralt
Rolig
Lademulighet
Om boligen
EIE Jessheim v/ Kristin Kjeksli (454 45 872) har gleden av å presentere Bjørkestubben 8B! Bjørkestubben 8B er en påkostet familiebolig over to etasjer med en fantastisk beliggenhet på Nordby innerst i blindvei. Boligen byr blant annet på vannbåren gulvvarme i 1. etasje, kombinert med vannbåren oppvarming i resten av boligen, påkostet kjøkken fra 2022, moderne baderom fra 2020, praktisk vaskerom med egen inngang og dobbel garasje med loft. Her er det god plass til hele familien - både inne og ute.
Tomten er flat og romslig på 886 kvm, med rikelig boltreplass - til og med zipline!
Boligen ligger i et svært attraktivt og familievennlig område på Jessheim i Ullensaker kommune. Det er kort vei til skoler, barnehager, kollektivtransport og et bredt utvalg av servicetilbud. Det er kun 10min gange til Nordby stasjon med hyppige avganger til Oslo S. Nordbytjernet, et av de flotteste friluftsområdene i Ullensaker, ligger med gangavstand. Kun ca. 350 meter til Sørholtet barnehage.
Tomten er flat og romslig på 886 kvm, med rikelig boltreplass - til og med zipline!
Boligen ligger i et svært attraktivt og familievennlig område på Jessheim i Ullensaker kommune. Det er kort vei til skoler, barnehager, kollektivtransport og et bredt utvalg av servicetilbud. Det er kun 10min gange til Nordby stasjon med hyppige avganger til Oslo S. Nordbytjernet, et av de flotteste friluftsområdene i Ullensaker, ligger med gangavstand. Kun ca. 350 meter til Sørholtet barnehage.
NB: Knappen for å vise hele beskrivelsen har kun en visuell effekt.
NB: Knappen for å vise hele beskrivelsen har kun en visuell effekt.
Salgsoppgaven beskriver vesentlig og lovpålagt informasjon om eiendommen
Se komplett salgsoppgaveNyttige lenker
Nærområdet
EIE eiendomsmegling Jessheim
Annonseinformasjon
| FINN-kode | 452793754 |
|---|---|
| Sist endret | 13. mars 2026 12:53 |
| Referanse | 20251437 |
Annonsene kan være mangelfulle i forhold til lovpålagt opplysningsplikt. Før bindende avtale inngås oppfordres interessenter til å innhente komplett informasjon fra meglerforetaket, selger eller utleier.






















































