Bildegalleri

Velkommen til Brannfjellveien 12B! Boligen presenteres av Hanne Eika Klempe og Kristoffer Johannessen ved Nordvik Nordstrand. Foto: Studio Oslo
Ekebergskrenten
Halvpart tomannsbolig med fantastisk utsikt over Oslo! | Hage, veranda og hagestue | Garasje m/ lader
Prisantydning13 500 000 kr
Nøkkelinfo
- Boligtype
- Tomannsbolig
- Eieform
- Eier (Selveier)
- Soverom
- 3
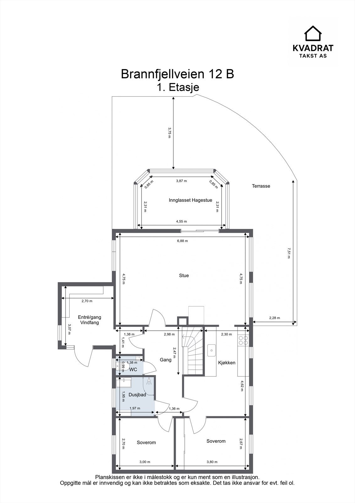
- Internt bruksareal
- 163 m² (BRA-i)
- Bruksareal
- 208 m²
- Eksternt bruksareal
- 31 m² (BRA-e)
- Innglasset balkong
- 14 m² (BRA-b)
- Balkong/Terrasse
- 41 m² (TBA)
- Byggeår
- 1979
- Energimerking
- F
- Tomteareal
- 637 m² (eiet)
Fasiliteter
Balkong/Terrasse
Bredbåndstilknytning
Garasje/P-plass
Hage
Kjæledyr tillatt
Kabel-TV
Offentlig vann/kloakk
Parkett
Peis/Ildsted
Sentralt
Utsikt
Turterreng
Lademulighet
Om boligen
Velkommen til en unik bolig med utsikt over sentrum og store deler av Oslo. Vertikaldelt halvpart tomannsbolig som går over to plan med egen inngang til 1. etasje og underetasje. Adkomsten fra garasje og ned bakken til boligen er brosteinsbelagt med varmekabel.
- Boligen skiller seg ut ved at den har fantastisk byutsikt fra nesten alle oppholdsrom
- Usjenert og solrik beliggenhet
- Stille og rolig
- Innglasset hagestue på 14 kvm
- Flere flotte uteplasser
- Hage med terrasse og veranda
- Varmepumpe
- To bad, vaskerom og gjestetoalett
- Garasje elbillader
Nærhet til Ekeberg med flotte grøntområder, skoler og barnehager. Eiendommen sogner til populære Ekeberg skole. Gangavstand til sentrum. Bussholdeplass noen få meter fra eiendommen som tar deg til sentrum på 15 minutter
- Boligen skiller seg ut ved at den har fantastisk byutsikt fra nesten alle oppholdsrom
- Usjenert og solrik beliggenhet
- Stille og rolig
- Innglasset hagestue på 14 kvm
- Flere flotte uteplasser
- Hage med terrasse og veranda
- Varmepumpe
- To bad, vaskerom og gjestetoalett
- Garasje elbillader
Nærhet til Ekeberg med flotte grøntområder, skoler og barnehager. Eiendommen sogner til populære Ekeberg skole. Gangavstand til sentrum. Bussholdeplass noen få meter fra eiendommen som tar deg til sentrum på 15 minutter
NB: Knappen for å vise hele beskrivelsen har kun en visuell effekt.
NB: Knappen for å vise hele beskrivelsen har kun en visuell effekt.
Salgsoppgaven beskriver vesentlig og lovpålagt informasjon om eiendommen
Se komplett salgsoppgaveNyttige lenker
Nærområdet
Nordvik Nordstrand
Vi vet hva det er verdt
Annonseinformasjon
| FINN-kode | 452784889 |
|---|---|
| Sist endret | 02. mars 2026 09:50 |
| Referanse | 44-0125/25 |
Annonsene kan være mangelfulle i forhold til lovpålagt opplysningsplikt. Før bindende avtale inngås oppfordres interessenter til å innhente komplett informasjon fra meglerforetaket, selger eller utleier.






















































