Bildegalleri

- Nordvik Bolig v/Vang Thi Dang har gleden av å presentere Røtingavegen 465! Foto: Ole-André Strand -
Os
Nydelig familiebolig over tre plan med sjøutsikt, dobbelgarasje og "carport"! Vinterhage, terrasser (140 m²) og hage.
Prisantydning7 290 000 kr
Nøkkelinfo
- Boligtype
- Enebolig
- Eieform
- Selveier
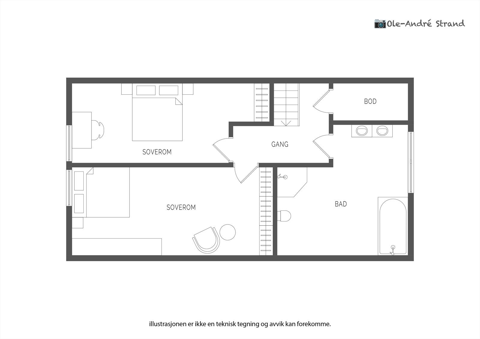
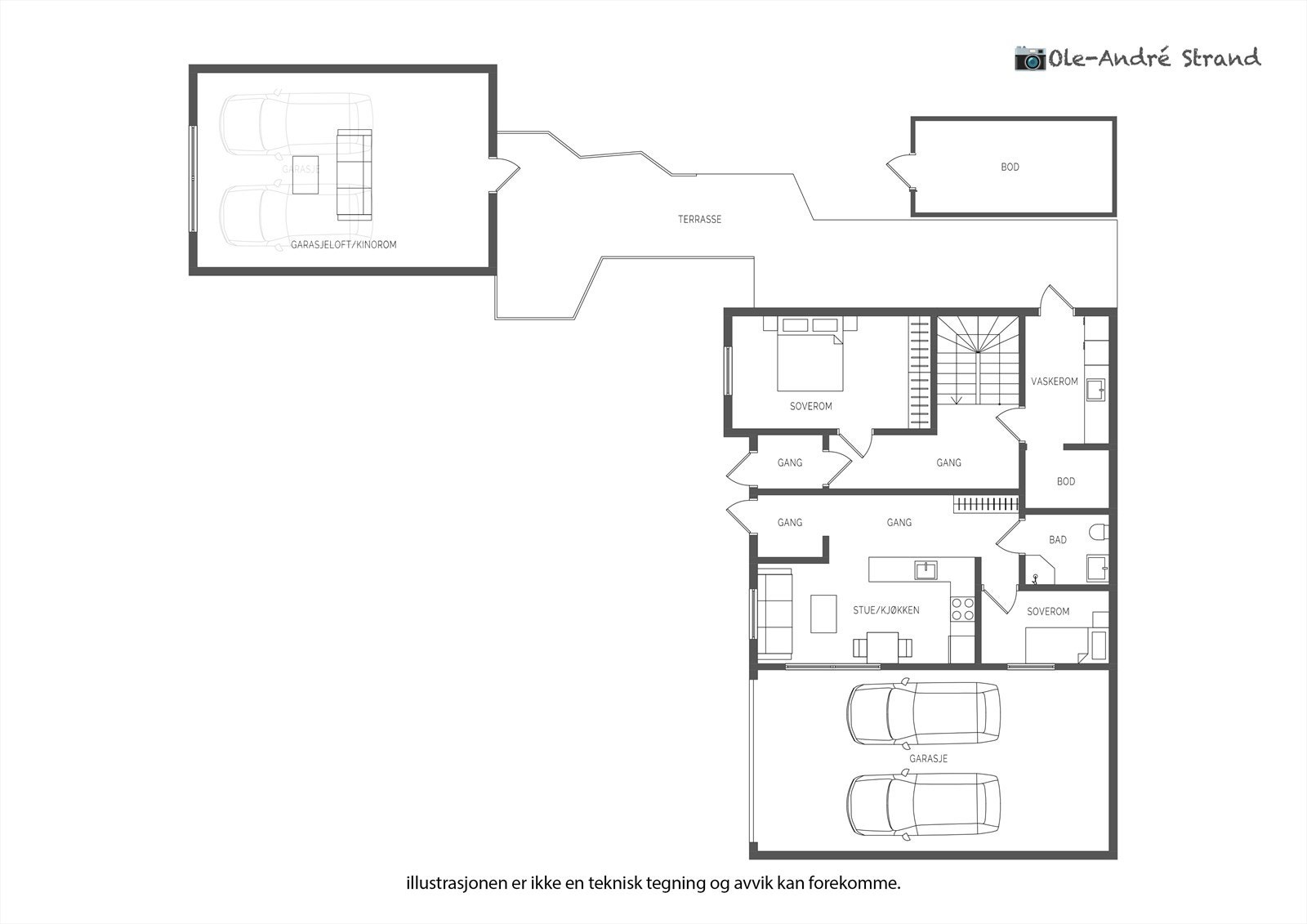
- Soverom
- 5
- Internt bruksareal
- 219 m² (BRA-i)
- Bruksareal
- 325 m²
- Eksternt bruksareal
- 76 m² (BRA-e)
- Innglasset balkong
- 30 m² (BRA-b)
- Balkong/Terrasse
- 140 m² (TBA)
- Etasje
- 3
- Byggeår
- 1990
- Energimerking
- Rom
- 6
- Tomteareal
- 1 011 m² (eiet)
Fasiliteter
Aircondition
Balkong/Terrasse
Barnevennlig
Garasje/P-plass
Hage
Kjæledyr tillatt
Rolig
Utsikt
Lademulighet
Om boligen
Velkommen til Røtingavegen 465! En innholdsrik enebolig med fantastiske uteområder beliggende i et rolig og familievennlig boligområde på Lepsøy. Boligen har blitt modernisert de siste årene, og innehar dermed flotte kvaliteter og en innflytningsklar standard.
Høydepunkter:
Høydepunkter:
- Vinterhage + terrasser på totalt 140 m² med svært gode solforhold midtsommers
- Utleiedel (ikke godkjent for varig opphold eller som en egen enhet)
- Nytt, lekkert Epoq-kjøkken i 2025
- Peis + varmepumpe
- Gode parkeringsmuligheter i dobbelgarasje og carport
- Praktisk og familievennlig løsning med bl.a. romslige oppholdsrom og vaskerom
Området: - Trivelig nabolag
- 300 meter til busstopp
- Kort kjørevei til flere skoler og barnehager
- Sjø og bademuligheter i umiddelbar nærhet
NB: Knappen for å vise hele beskrivelsen har kun en visuell effekt.
NB: Knappen for å vise hele beskrivelsen har kun en visuell effekt.
Salgsoppgaven beskriver vesentlig og lovpålagt informasjon om eiendommen
Se komplett salgsoppgaveNyttige lenker
Nærområdet
Nordvik Bergen
Annonseinformasjon
| FINN-kode | 452763017 |
|---|---|
| Sist endret | 01. apr. 2026 05:02 |
| Referanse | 19-0046/26 |
Annonsene kan være mangelfulle i forhold til lovpålagt opplysningsplikt. Før bindende avtale inngås oppfordres interessenter til å innhente komplett informasjon fra meglerforetaket, selger eller utleier.



























































