Bildegalleri

Eiendomsmegler 1 v/ Christel Svanevik Eide har gleden av å presentere Strimmelen 40! Fotograf: Terje Arntsen.
Delikat 3-roms m/ fantastisk utsikt og gode solforhold. Stor altan. Nytt kjøkken (2022). Sentrumsnært. Ikke dok.avgift!
Prisantydning4 290 000 kr
Nøkkelinfo
- Boligtype
- Leilighet
- Eieform
- Andel
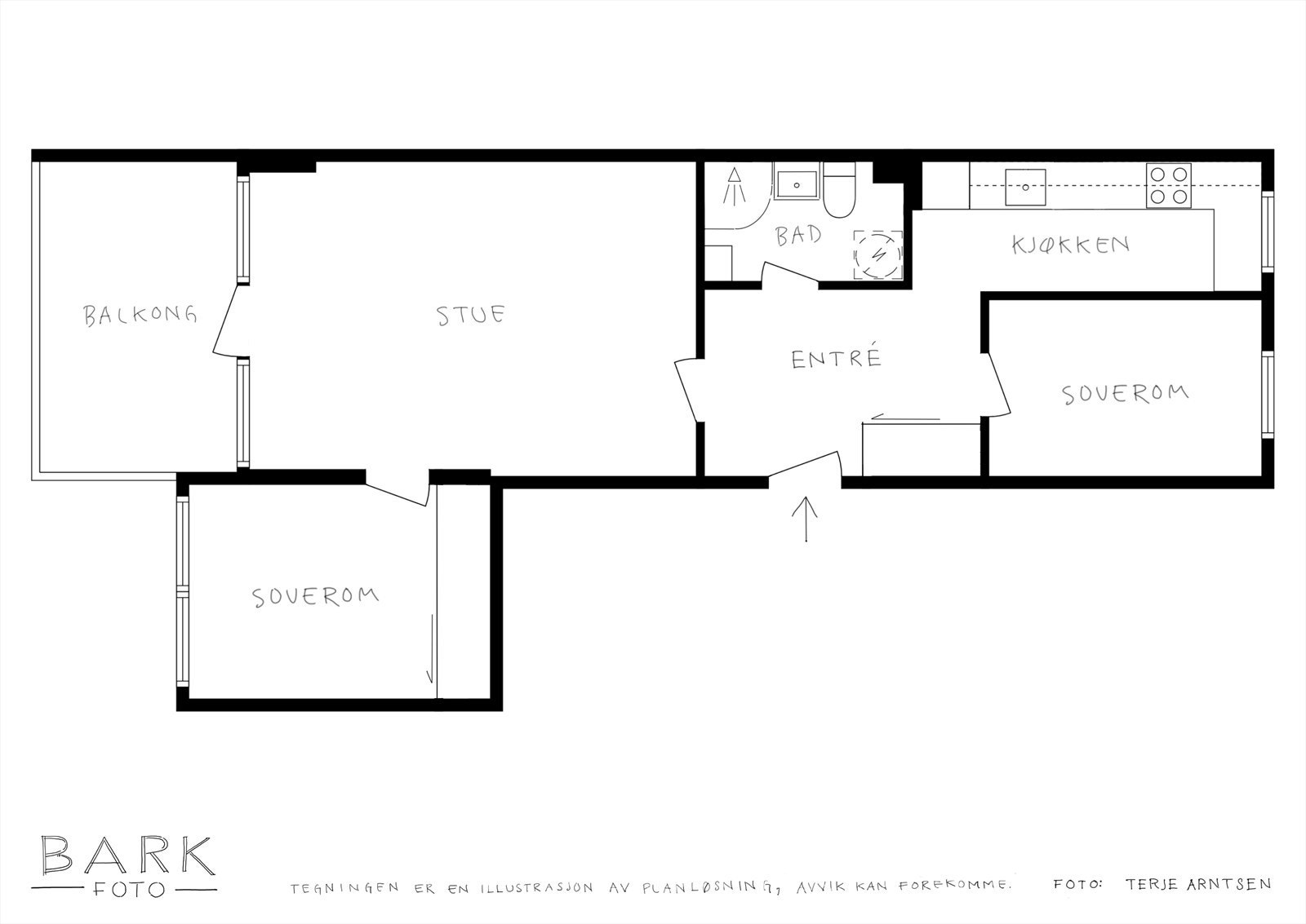
- Soverom
- 2
- Internt bruksareal
- 62 m² (BRA-i)
- Bruksareal
- 65 m²
- Eksternt bruksareal
- 3 m² (BRA-e)
- Balkong/Terrasse
- 9 m² (TBA)
- Etasje
- 1
- Byggeår
- 1957
- Energimerking
- F - Mørkegrønn
- Rom
- 3
- Tomteareal
- 41 563 m²
Fasiliteter
Balkong/Terrasse
Barnevennlig
Bredbåndstilknytning
Fellesvaskeri
Kabel-TV
Offentlig vann/kloakk
Rolig
Sentralt
Utsikt
Vaktmester-/vektertjeneste
Turterreng
Om boligen
Eiendomsmegler 1 v/ Christel Svanevik Eide har gleden av å presentere Strimmelen 40!
Kort om boligen:
- Mye inkl. i felleskostnader! Inkl. varme fra sentralvarmeanlegg.
- Nytt fiskeben gulv i 2025/2026.
- Ny baderomsinnredning med servant er montert i 2026.
- Nytt kjøkken i 2022 m/hvitevarer.
- Oppgraderte overflater m/ lekre detaljer i 2025/2026.
- Altanen ble belagt med terrasseheller i 2026.
- Vestvendt altan med fantastisk, vidstrakt utsikt over Bergensdalen og innseilingen til Bergen.
- Gode solforhold og fantastisk solnedgang om sommeren. Nordlyset er også tidligere observert fra Strimmelen.
- Andelen disponerer to boder.
- Ikke dok.avgift!
- Beliggende i en blindvei.
- Garasje og parkeringsplasser tildeles etter venteliste.
- Ca. 10 min gåavstand til bybanen & Sletten senter.
Kort om boligen:
- Mye inkl. i felleskostnader! Inkl. varme fra sentralvarmeanlegg.
- Nytt fiskeben gulv i 2025/2026.
- Ny baderomsinnredning med servant er montert i 2026.
- Nytt kjøkken i 2022 m/hvitevarer.
- Oppgraderte overflater m/ lekre detaljer i 2025/2026.
- Altanen ble belagt med terrasseheller i 2026.
- Vestvendt altan med fantastisk, vidstrakt utsikt over Bergensdalen og innseilingen til Bergen.
- Gode solforhold og fantastisk solnedgang om sommeren. Nordlyset er også tidligere observert fra Strimmelen.
- Andelen disponerer to boder.
- Ikke dok.avgift!
- Beliggende i en blindvei.
- Garasje og parkeringsplasser tildeles etter venteliste.
- Ca. 10 min gåavstand til bybanen & Sletten senter.
NB: Knappen for å vise hele beskrivelsen har kun en visuell effekt.
NB: Knappen for å vise hele beskrivelsen har kun en visuell effekt.
Salgsoppgaven beskriver vesentlig og lovpålagt informasjon om eiendommen
Se komplett salgsoppgaveNyttige lenker
Nærområdet
EiendomsMegler 1 Marken
En del av Sparebank 1 Sør-Norge
Annonseinformasjon
| FINN-kode | 452678343 |
|---|---|
| Sist endret | 02. mars 2026 10:52 |
| Referanse | 2711260068 |
Annonsene kan være mangelfulle i forhold til lovpålagt opplysningsplikt. Før bindende avtale inngås oppfordres interessenter til å innhente komplett informasjon fra meglerforetaket, selger eller utleier.











































