Bildegalleri

Velkommen til Trondheimsveien 2G! En lekker og moderne 3-roms topp- og hjørneleilighet i byggets 7. etasje med god intern beliggenhet.
Nydelig 3-roms topp/hjørneleilighet m/lekkert designkjøkken | Solrik balkong på 9 kvm | Heis | Indre gård | Takterrasse
Prisantydning8 750 000 kr
Nøkkelinfo
- Boligtype
- Leilighet
- Eieform
- Eier (Selveier)
- Soverom
- 2
- Internt bruksareal
- 78 m² (BRA-i)
- Bruksareal
- 86 m²
- Eksternt bruksareal
- 8 m² (BRA-e)
- Balkong/Terrasse
- 9 m² (TBA)
- Etasje
- 7
- Byggeår
- 2009
- Energimerking
- C
- Rom
- 3
- Tomteareal
- 2 958 m² (eiet)
Fasiliteter
Takterrasse
Balkong/Terrasse
Barnevennlig
Bredbåndstilknytning
Garasje/P-plass
Heis
Kjæledyr tillatt
Offentlig vann/kloakk
Parkett
Rolig
Sentralt
Utsikt
Vaktmester-/vektertjeneste
Turterreng
Om boligen
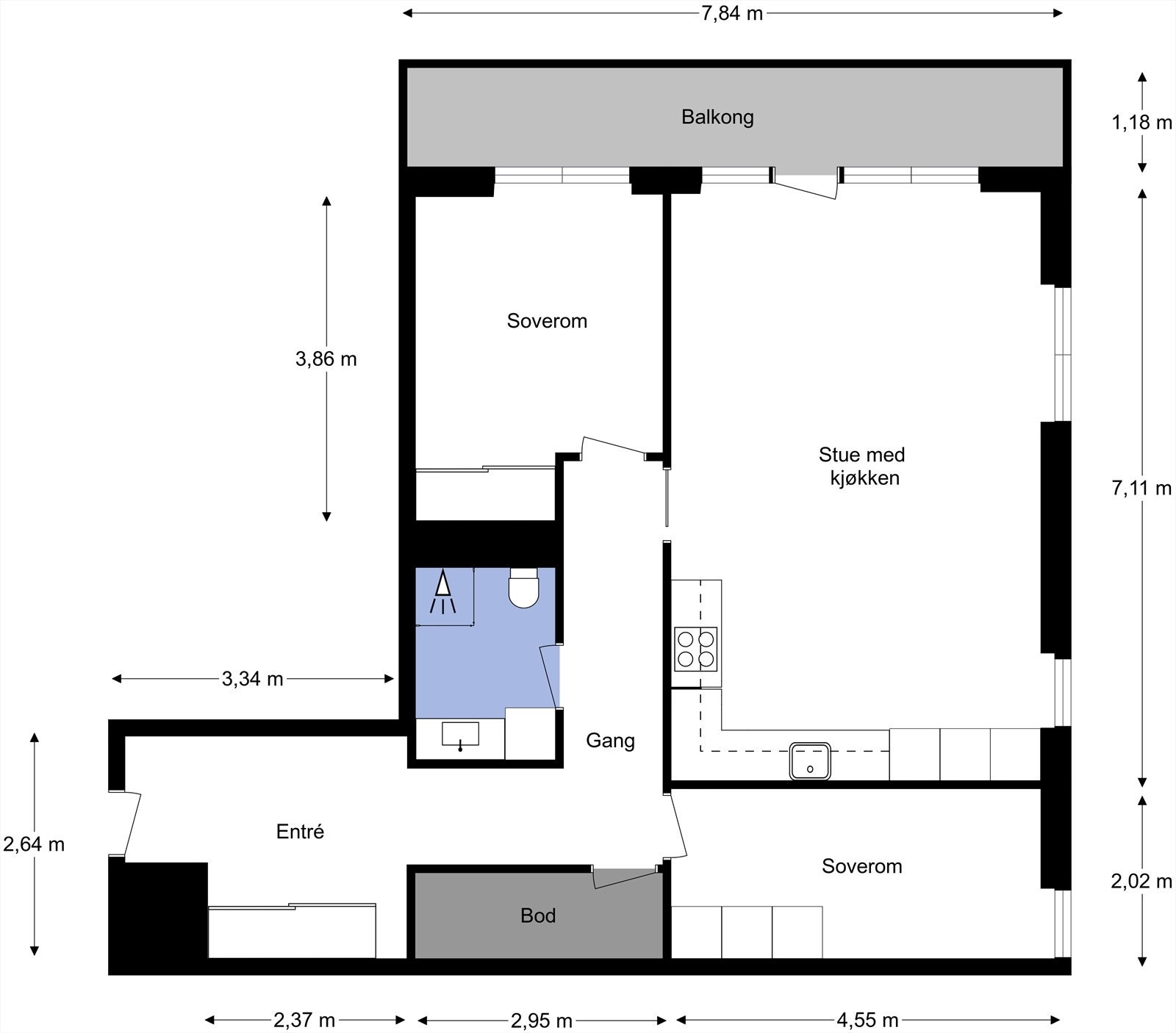
Velkommen til Trondheimsveien 2G! En lekker og moderne 3-roms topp- og hjørneleilighet i byggets 7. etasje med god intern beliggenhet. Leiligheten er lys, arealeffektiv og holder gjennomgående god standard. Her får du entré, walk-in/bod, bad, to soverom og romslig stue med åpen kjøkkenløsning. Fra stuen er det utgang til en solrik balkong på ca. 9 kvm med nydelig utsikt. Boligen disponerer også to boder, en av bodene er rett utenfor døren.
Merk deg dette:
-Designkjøkken fra Schüller med hvitevarer av høy kvalitet: Gaggenau, Siemens, Bora og Nordcool
-Balkong med herlig utsikt og gode solforhold
-Beliggende i toppetg. (7 etg.) med heis
-Felleskostnader inkluderer bl.a. vv/fyring og fiber
-Felles takterrasse (8.etg)
-Mulighet for å leie garasjeplass ved ledighet
Merk deg dette:
-Designkjøkken fra Schüller med hvitevarer av høy kvalitet: Gaggenau, Siemens, Bora og Nordcool
-Balkong med herlig utsikt og gode solforhold
-Beliggende i toppetg. (7 etg.) med heis
-Felleskostnader inkluderer bl.a. vv/fyring og fiber
-Felles takterrasse (8.etg)
-Mulighet for å leie garasjeplass ved ledighet
NB: Knappen for å vise hele beskrivelsen har kun en visuell effekt.
NB: Knappen for å vise hele beskrivelsen har kun en visuell effekt.
Salgsoppgaven beskriver vesentlig og lovpålagt informasjon om eiendommen
Se komplett salgsoppgaveNærområdet
Aktiv Grünerløkka
Annonseinformasjon
| FINN-kode | 452676986 |
|---|---|
| Sist endret | 01. mars 2026 17:50 |
| Referanse | 1008260036 |
Annonsene kan være mangelfulle i forhold til lovpålagt opplysningsplikt. Før bindende avtale inngås oppfordres interessenter til å innhente komplett informasjon fra meglerforetaket, selger eller utleier.

















































