Bildegalleri

Velkommen til Bergekleiva 52 på Forsand i nydelige Lysefjorden! Foto levert av Robin Malm.
Forsand - Lettstelt og flott enebolig med alt på ett plan, dobbel garasje og panoramautsikt utover Lysefjorden!
Prisantydning4 990 000 kr
Nøkkelinfo
- Boligtype
- Enebolig
- Eieform
- Eier (Selveier)
- Soverom
- 4
- Internt bruksareal
- 205 m² (BRA-i)
- Bruksareal
- 270 m²
- Eksternt bruksareal
- 65 m² (BRA-e)
- Balkong/Terrasse
- 140 m² (TBA)
- Etasje
- 1
- Byggeår
- 2006
- Energimerking
- D
- Rom
- 6
- Tomteareal
- 1 383 m² (eiet)
Fasiliteter
Balkong/Terrasse
Garasje/P-plass
Offentlig vann/kloakk
Parkett
Peis/Ildsted
Rolig
Utsikt
Bademulighet
Fiskemulighet
Turterreng
Om boligen
Vi i Aktiv Eindomsmegling Ryfylke v/Helene Byberg, kan nå presentere for dere denne flotte eiendommen ved Lysefjorden, med nydelig utsikt, gode solforhold og en lettstelt tomt på nesten 1,4 mål. Eiendommen grenser til LNF-område.
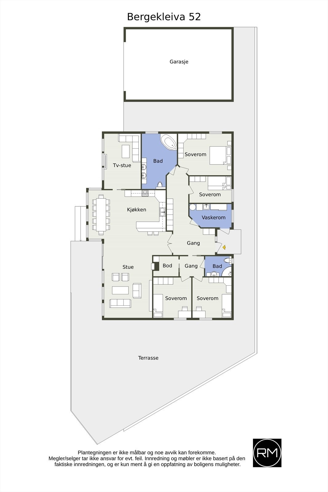
Eneboligen er fra 2006 og har et bruksareal på 205 m². Boligen fremstår i god stand ihht. byggeår, men noe oppgradering må påregnes. Boligen er innholdsrik med med fire soverom, to bad, stue, Tv-stue, kjøkken, vaskerom og bod. Varme i gulv i alle rom! Uteområdet inkluderer en stor terrasse på 140 m², ideell for avslapning og sosiale sammenkomster. Eiendommen har også en garasje på 46 m², samt en utestue og bod for ekstra lagringsplass.
Velkommen til visning!
Eneboligen er fra 2006 og har et bruksareal på 205 m². Boligen fremstår i god stand ihht. byggeår, men noe oppgradering må påregnes. Boligen er innholdsrik med med fire soverom, to bad, stue, Tv-stue, kjøkken, vaskerom og bod. Varme i gulv i alle rom! Uteområdet inkluderer en stor terrasse på 140 m², ideell for avslapning og sosiale sammenkomster. Eiendommen har også en garasje på 46 m², samt en utestue og bod for ekstra lagringsplass.
Velkommen til visning!
NB: Knappen for å vise hele beskrivelsen har kun en visuell effekt.
NB: Knappen for å vise hele beskrivelsen har kun en visuell effekt.
Salgsoppgaven beskriver vesentlig og lovpålagt informasjon om eiendommen
Se komplett salgsoppgaveNærområdet
Aktiv Ryfylke
Annonseinformasjon
| FINN-kode | 452529220 |
|---|---|
| Sist endret | 02. mars 2026 22:04 |
| Referanse | 1401260017 |
Annonsene kan være mangelfulle i forhold til lovpålagt opplysningsplikt. Før bindende avtale inngås oppfordres interessenter til å innhente komplett informasjon fra meglerforetaket, selger eller utleier.














































































