Bildegalleri

Åmotveien 126 til salgs ved Lasse Bastrup - EIE Eiendomsmegling Asker. (Foto: Andreas Wiig - Pholio AS)

Lekker familiebolig fra 2018 | Svært innholdsrik | Høy standard | Carport m lader | Meget gode solforhold | Barnevennlig

Prisantydning7 600 000 kr
Totalpris
7 791 351 kr
Omkostninger
191 351 kr
Felleskost/mnd.
3 299 kr
Fellesformue
42 381 kr
Kommunale avg.
10 723 kr per år
Formuesverdi
2 073 698 kr

Nøkkelinfo

Boligtype
Tomannsbolig
Eieform
Eier (Selveier)
Soverom
4
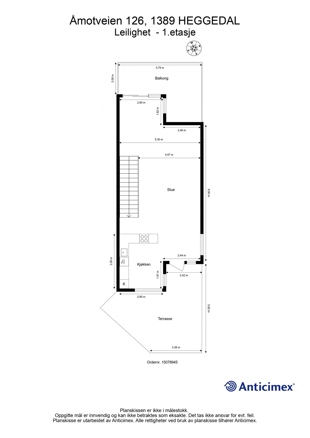
Internt bruksareal
151 m² (BRA-i)
Bruksareal
151 m²
Balkong/Terrasse
16 m² (TBA)
Byggeår
2018
Energimerking
B - Rød
Tomteareal
46 m² (eiet)

Les mer om bruksareal her

Fasiliteter

Barnevennlig
Balkong/Terrasse
Garasje/P-plass
Kabel-TV
Offentlig vann/kloakk
Parkett
Turterreng
Utsikt
Aircondition
Sentralt
Bredbåndstilknytning
Moderne
Rolig
Bademulighet
Lademulighet
Balansert ventilasjon

Visning

onsdag, 04. mars
17:30 – 18:30
Visningspåmelding

Om boligen

Velkommen til Åmotveien 126 - en moderne og familievennlig tomannsbolig fra 2018 med gjennomtenkte løsninger og attraktiv beliggenhet i Heggedal. Boligen går over tre plan og byr på hele 151 kvm med 4 soverom, to bad og romslig stue/kjøkken med utgang til balkong og terrasse. Kjøkkenet har integrerte hvitevarer, god skapplass og ekstra skuffer for optimal oppbevaring. Ny 1-stavs eikeparkett i stue og kjøkken fra 2025 gir et lunt og moderne preg.

Boligen har to varmepumper, utvendige elektriske screens, balansert ventilasjon og EL-billader i carport. Terrasse og uteplass er opparbeidet med benker, plantekasser og belysning, perfekt for hyggelige sommerkvelder. Sameiet har god økonomi, lekeplasser og grønne fellesområder.

Her bor du tett på marka, med kort vei til skole, barnehage, tog og servicetilbud. En innholdsrik og praktisk bolig, ideell for barnefamilien som ønsker nærhet til natur og en enkel hverdag.

Salgsoppgaven beskriver vesentlig og lovpålagt informasjon om eiendommen

Se komplett salgsoppgave

Nærområdet

Annonseinformasjon

FINN-kode452526770
Sist endret26. feb. 2026 11:56
Referanse85260026

Rapporter annonse

Annonsene kan være mangelfulle i forhold til lovpålagt opplysningsplikt. Før bindende avtale inngås oppfordres interessenter til å innhente komplett informasjon fra meglerforetaket, selger eller utleier.