Bildegalleri

Velkommen Båtbyggerveien og en pent rekkehusleilighet over ett plan med store uteplasser og garajse.
Solbergelva
Pen rekkehusleilighet med alt på en flate, stor terrasse og garasje. Kjøkken fra 2023. Peis. Rolig og barnevennlig nabol
Prisantydning3 890 000 kr
Nøkkelinfo
- Boligtype
- Rekkehus
- Eieform
- Eier (Selveier)
- Soverom
- 2
- Internt bruksareal
- 76 m² (BRA-i)
- Bruksareal
- 80 m²
- Eksternt bruksareal
- 4 m² (BRA-e)
- Balkong/Terrasse
- 35 m² (TBA)
- Etasje
- 1
- Byggeår
- 1992
- Energimerking
- E
- Rom
- 3
- Tomteareal
- 10 732 m² (eiet)
Fasiliteter
Aircondition
Alpinanlegg
Balkong/Terrasse
Barnevennlig
Bredbåndstilknytning
Garasje/P-plass
Hage
Ingen gjenboere
Kabel-TV
Offentlig vann/kloakk
Parkett
Peis/Ildsted
Rolig
Bademulighet
Fiskemulighet
Turterreng
Visning
onsdag, 18. mars
16:30 – 17:15
For at vår megler og selger skal kunne gi deg den beste oppfølgingen og kjøpsopplevelsen er det obligatorisk påmelding til alle våre visninger. Dersom ditt reserverte tidspunkt likevel ikke kan benyttes trenger vi beskjed så tidlig som mulig sånn at vi kan finne en alternativ løsning. Vi har alltid tid til deg. Visninger uten påmeldte deltagere avlyses.
VisningspåmeldingOm boligen
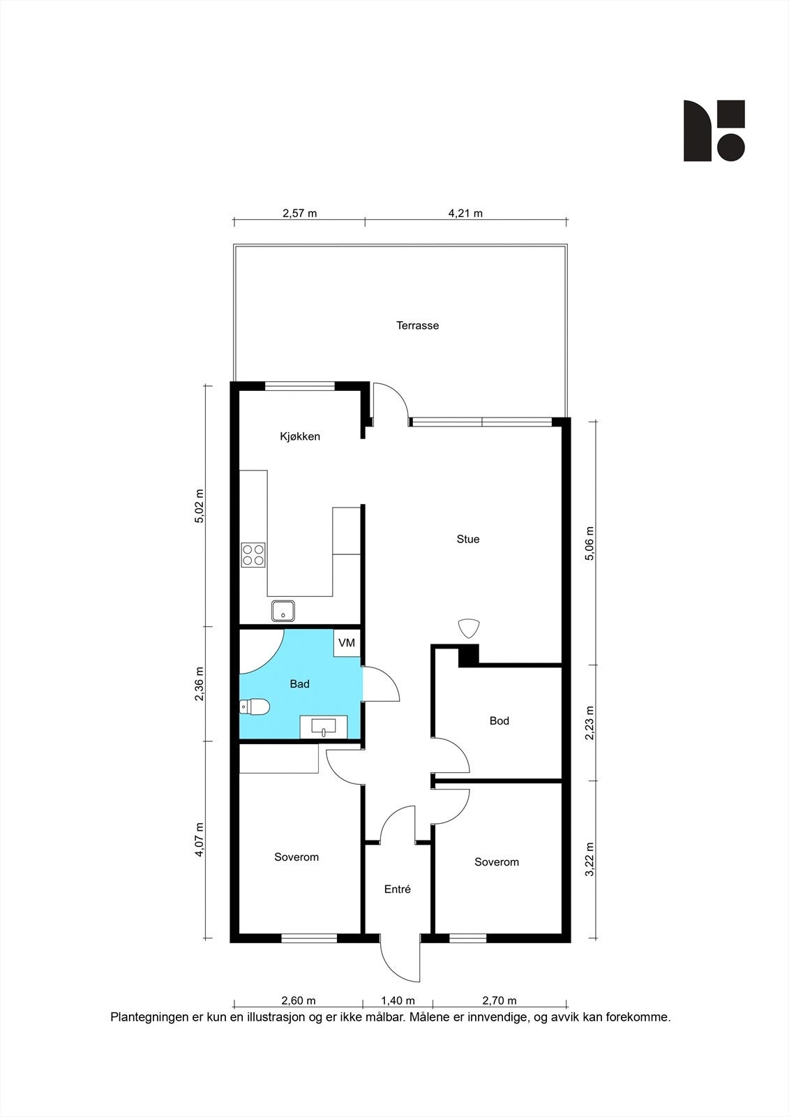
Velkommen til en hyggelig 3-roms rekkehusleilighet i Båtbyggerveien 19 i Solbergelva. Dette området er veletablert, rolig og fint tilpasset familielivet med flere lekeplasser i nabolaget og kort vei til skole og barnehage. Det er også umiddelbar nærhet til butikker og buss, samt kort kjørevei til Drammen sentrum med alle fasiliteter.
Lev enkelt i en bolig fordelt på ett plan, med trinnfri adkomst, store uteplasser og medfølgende utebod og garasje i felles rekke. Innvendig har leiligheten god planløsning bestående av entré, innvendig bod, stue og kjøkken i åpen løsning, baderom og 2 soverom. Leiligheten ble oppgradert i 2023 med nytt kjøkken, samt nye vinduer og balkongdør i regi av sameiet.
En ypperlig bolig for par, en liten familie eller godt voksne. Utleie og dyrehold er tillatt.
Lev enkelt i en bolig fordelt på ett plan, med trinnfri adkomst, store uteplasser og medfølgende utebod og garasje i felles rekke. Innvendig har leiligheten god planløsning bestående av entré, innvendig bod, stue og kjøkken i åpen løsning, baderom og 2 soverom. Leiligheten ble oppgradert i 2023 med nytt kjøkken, samt nye vinduer og balkongdør i regi av sameiet.
En ypperlig bolig for par, en liten familie eller godt voksne. Utleie og dyrehold er tillatt.
NB: Knappen for å vise hele beskrivelsen har kun en visuell effekt.
NB: Knappen for å vise hele beskrivelsen har kun en visuell effekt.
Salgsoppgaven beskriver vesentlig og lovpålagt informasjon om eiendommen
Se komplett salgsoppgaveNyttige lenker
Nærområdet
Proaktiv Eiendomsmegling Drammen, Lier & Holmestrand
Alltid tid til deg
Annonseinformasjon
| FINN-kode | 452503997 |
|---|---|
| Sist endret | 11. mars 2026 10:34 |
| Referanse | 1600260046 |
Annonsene kan være mangelfulle i forhold til lovpålagt opplysningsplikt. Før bindende avtale inngås oppfordres interessenter til å innhente komplett informasjon fra meglerforetaket, selger eller utleier.
























