Bildegalleri

Foto EFKT (Børge Halseth)
Orkanger
3-roms leilighet på Rømmetunet | 4. etasje | Heis i bygget | Balkong | Parkeringskjeller | Byggeår 2023
Prisantydning3 950 000 kr
Nøkkelinfo
- Boligtype
- Leilighet
- Eieform
- Selveier
- Soverom
- 2
- Internt bruksareal
- 60 m² (BRA-i)
- Bruksareal
- 65 m²
- Eksternt bruksareal
- 5 m² (BRA-e)
- Balkong/Terrasse
- 13 m² (TBA)
- Etasje
- 4
- Byggeår
- 2023
- Energimerking
- B - Lysegrønn
- Rom
- 3
- Tomteareal
- 584 m² (eiet)
Om boligen
EiendomsMegler 1 v/ Marius Evjen har gleden av å presentere Kari Gravroks gate 30!
Leilighet med sentral beliggenhet på Rømmetunet i Orkanger sentrum. Gangavstand til blant annet dagligvarebutikker, kjøpesenter, frisør og café. Det er gode bussforbindelser til Trondheim like utenfor leiligheten.
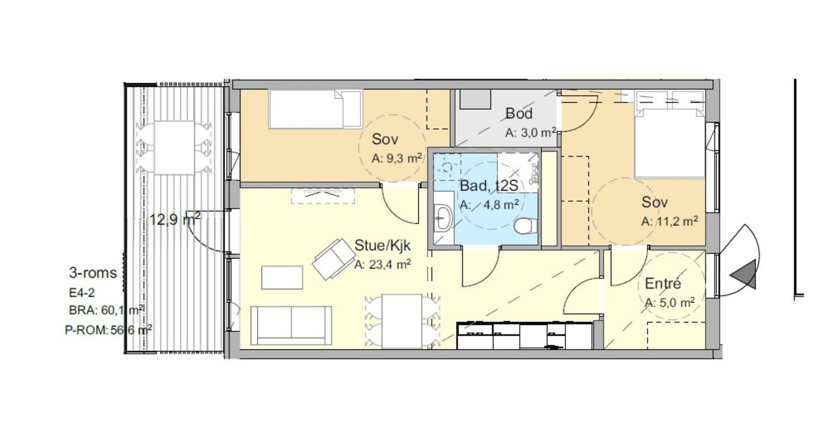
Leiligheten ligger i 4. etasje og er fra 2023. Den inneholder entré, bad, bod, 2 soverom, stue og kjøkken. Fra stua er det utgang til balkongen. Heis i bygget. Parkeringsplass og bod i parkeringskjeller.
Leiligheten er p.t utleid for 15.000,- pr mnd.
Se mer info i salgsoppgaven.
Velkommen på visning!
Leilighet med sentral beliggenhet på Rømmetunet i Orkanger sentrum. Gangavstand til blant annet dagligvarebutikker, kjøpesenter, frisør og café. Det er gode bussforbindelser til Trondheim like utenfor leiligheten.
Leiligheten ligger i 4. etasje og er fra 2023. Den inneholder entré, bad, bod, 2 soverom, stue og kjøkken. Fra stua er det utgang til balkongen. Heis i bygget. Parkeringsplass og bod i parkeringskjeller.
Leiligheten er p.t utleid for 15.000,- pr mnd.
Se mer info i salgsoppgaven.
Velkommen på visning!
NB: Knappen for å vise hele beskrivelsen har kun en visuell effekt.
NB: Knappen for å vise hele beskrivelsen har kun en visuell effekt.
Salgsoppgaven beskriver vesentlig og lovpålagt informasjon om eiendommen
Se komplett salgsoppgaveNærområdet
EiendomsMegler 1 Orkanger
Vi loser deg trygt gjennom hele boligsalget
Annonseinformasjon
| FINN-kode | 452501778 |
|---|---|
| Sist endret | 10. mars 2026 09:03 |
| Referanse | 45260022 |
Annonsene kan være mangelfulle i forhold til lovpålagt opplysningsplikt. Før bindende avtale inngås oppfordres interessenter til å innhente komplett informasjon fra meglerforetaket, selger eller utleier.














