Bildegalleri

Fasade
Rena- Næringsbygg med mange muligheter! 6 arbeidsrom/laboratorierom , adm. kontor, resepsjon mm. Vannbåren varme.
Prisantydning1 890 000 kr
Nøkkelinfo
- Boligtype
- Andre
- Eieform
- Eier (Selveier)
- Soverom
- 0
- Byggeår
- 1942
- Tomteareal
- 776 m² (eiet)
- Bruttoareal
- 186 m²
Fasiliteter
Felles resepsjon
Garasje/P-plass
Offentlig vann/kloakk
Rolig
Sentralt
Om boligen
Velkommen til Kirkegata 9 C!
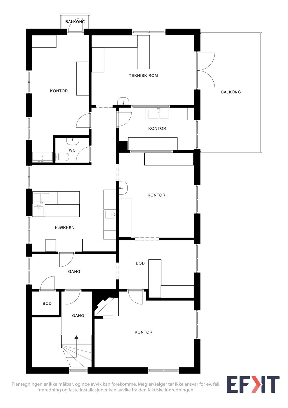
Her har vi gleden av å presentere næringsbygg med kjeller, 1.etg og 2.etg. Kjeller består av fellesarealer med trapperom/gang, fyrrom, garderober dusjrom, toalettrom, diverse boder og en blokkert kjellerutgang. 1.etg med felles trapperom og felles spiserom, og 2.etg med trapperom, venterom/resepsjon, adm. kontor (peisestue), toalettrom, 6 arbeidsrom/laboratorierom og ett kott.
Oppvarming med vannbåren varme via radiatorer. Eiendommen er tilknyttet fjernvarme.
Næringsbygget har en sentral beliggenhet på Rena, langs Kirkegata. Kort vei til alt Rena har å by på.
Velkommen til visning!
Meld deg på via påmeldingsknappen eller ta kontakt med Hans Petter Carlsson, eiendomsmegler MNEF, på tlf. 911 25 518.
Her har vi gleden av å presentere næringsbygg med kjeller, 1.etg og 2.etg. Kjeller består av fellesarealer med trapperom/gang, fyrrom, garderober dusjrom, toalettrom, diverse boder og en blokkert kjellerutgang. 1.etg med felles trapperom og felles spiserom, og 2.etg med trapperom, venterom/resepsjon, adm. kontor (peisestue), toalettrom, 6 arbeidsrom/laboratorierom og ett kott.
Oppvarming med vannbåren varme via radiatorer. Eiendommen er tilknyttet fjernvarme.
Næringsbygget har en sentral beliggenhet på Rena, langs Kirkegata. Kort vei til alt Rena har å by på.
Velkommen til visning!
Meld deg på via påmeldingsknappen eller ta kontakt med Hans Petter Carlsson, eiendomsmegler MNEF, på tlf. 911 25 518.
NB: Knappen for å vise hele beskrivelsen har kun en visuell effekt.
NB: Knappen for å vise hele beskrivelsen har kun en visuell effekt.
Salgsoppgaven beskriver vesentlig og lovpålagt informasjon om eiendommen
Se komplett salgsoppgaveNyttige lenker
Nærområdet
Meglerhuset Østlandet AS
Annonseinformasjon
| FINN-kode | 452390097 |
|---|---|
| Sist endret | 23. feb. 2026 12:51 |
| Referanse | GAR14.263 |
Annonsene kan være mangelfulle i forhold til lovpålagt opplysningsplikt. Før bindende avtale inngås oppfordres interessenter til å innhente komplett informasjon fra meglerforetaket, selger eller utleier.























