Bildegalleri

Velkommen til Nesgata 5!
Enebolig med meget sentral beliggenhet på Åndalsnes.
Prisantydning2 450 000 kr
Nøkkelinfo
- Boligtype
- Enebolig
- Eieform
- Eier (Selveier)
- Soverom
- 3
- Internt bruksareal
- 151 m² (BRA-i)
- Bruksareal
- 165 m²
- Eksternt bruksareal
- 14 m² (BRA-e)
- Balkong/Terrasse
- 20 m² (TBA)
- Byggeår
- 1944
- Energimerking
- G - Oransje
- Rom
- 4
- Tomteareal
- 621 m² (eiet)
Fasiliteter
Barnevennlig
Balkong/Terrasse
Garasje/P-plass
Offentlig vann/kloakk
Peis/Ildsted
Turterreng
Sentralt
Rolig
Visning
tirsdag, 07. april
16:30 – 17:00
Våre visninger har påmelding. Dette gjør vi for å kunne yte bedre service for våre kunder. Verdifullt for boligkjøper og for oss. Vi anbefaler at salgsoppgaven lastes ned digitalt før visning, og ring oss gjerne på forhånd for spørsmål om boligen. Passer ikke angitt tidspunkt, ta kontakt så finner vi en løsning. Skulle det mot formodning ikke være påmeldte til angitt visningstidspunkt vil ikke visning bli gjennomført.
Om boligen
Velkommen til Nesgata 3 A!
Enebolig med sentral beliggenhet på Åndalsnes.
Innhold:
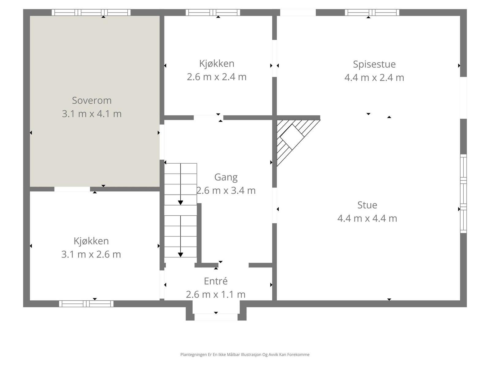
Hovedetasje: Vindfang, gang, stue, 2 kjøkken og soverom.
Loftsetasje: Gang, bad, 2 soverom og kott.
Kjeller: Vaskerom, toalett, gang og 3 kjellerrom.
Parkering i garasje.
Beliggenhet:
Eiendommen ligger i Åndalsnes sentrum, med gangavstand til butikksentrum, post, skoler, jernbanestasjon og barnehager.
Åndalsnes regnes som ''Norges tindehovedstad'' og er et senter for fjellsport i Norge. Byen er omkranset av Trolltindan, Vengetindan og Romsdalshornet. Kort vei til fantastiske og populære turområder og turløyper både på sommer- og vinterstid.
Velkommen til visning!&l
Enebolig med sentral beliggenhet på Åndalsnes.
Innhold:
Hovedetasje: Vindfang, gang, stue, 2 kjøkken og soverom.
Loftsetasje: Gang, bad, 2 soverom og kott.
Kjeller: Vaskerom, toalett, gang og 3 kjellerrom.
Parkering i garasje.
Beliggenhet:
Eiendommen ligger i Åndalsnes sentrum, med gangavstand til butikksentrum, post, skoler, jernbanestasjon og barnehager.
Åndalsnes regnes som ''Norges tindehovedstad'' og er et senter for fjellsport i Norge. Byen er omkranset av Trolltindan, Vengetindan og Romsdalshornet. Kort vei til fantastiske og populære turområder og turløyper både på sommer- og vinterstid.
Velkommen til visning!&l
NB: Knappen for å vise hele beskrivelsen har kun en visuell effekt.
NB: Knappen for å vise hele beskrivelsen har kun en visuell effekt.
Salgsoppgaven beskriver vesentlig og lovpålagt informasjon om eiendommen
Se komplett salgsoppgaveNyttige lenker
Nærområdet
EiendomsMegler 1 Molde
Vi loser deg trygt gjennom hele boligsalget
Annonseinformasjon
| FINN-kode | 452383603 |
|---|---|
| Sist endret | 13. mars 2026 09:33 |
| Referanse | 13250396 |
Annonsene kan være mangelfulle i forhold til lovpålagt opplysningsplikt. Før bindende avtale inngås oppfordres interessenter til å innhente komplett informasjon fra meglerforetaket, selger eller utleier.


































