Bildegalleri

Velkommen til Turbinveien 7 - presentert av Synne Vang v. PrivatMegleren Komplett.
Kværnerbyen
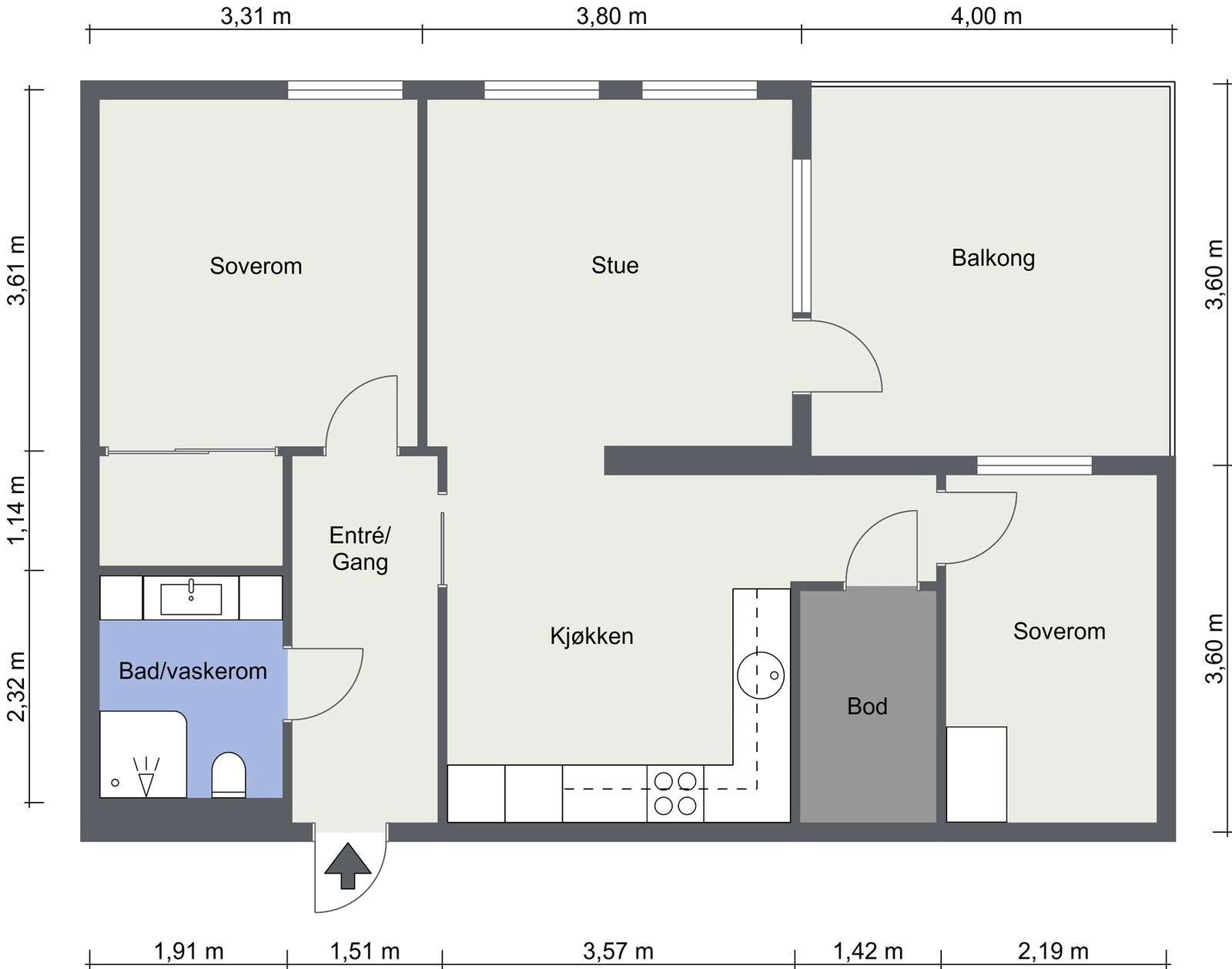
Innbydende 3-roms med balkong på 16 kvm - Heis - Felles takterrasse - "Alt" inkl. i felleskost. - Parkeringsmuligheter*
Prisantydning5 600 000 kr
Nøkkelinfo
- Boligtype
- Leilighet
- Eieform
- Andel
- Soverom
- 2
- Internt bruksareal
- 68 m² (BRA-i)
- Bruksareal
- 73 m²
- Eksternt bruksareal
- 5 m² (BRA-e)
- Balkong/Terrasse
- 16 m² (TBA)
- Etasje
- 2
- Byggeår
- 2008
- Energimerking
- C - Lysegrønn
- Rom
- 3
- Tomteareal
- 1 113 m² (eiet)
Fasiliteter
Barnevennlig
Balkong/Terrasse
Kabel-TV
Heis
Offentlig vann/kloakk
Parkett
Turterreng
Sentralt
Bredbåndstilknytning
Moderne
Rolig
Visning
søndag, 08. mars
13:00 – 13:45
Velkommen til visning!
Alle våre visninger har påmelding. På denne måten sikrer vi at megler har god oversikt og tid til å imøtekomme alle interessenter på beste måte. Dette er veldig verdifullt for boligkjøpere og for oss. Det er enkelt å melde seg på, og du kan like enkelt melde deg av. Kontakt også gjerne megler i forkant av visning dersom du har spørsmål.
tirsdag, 10. mars
17:00 – 17:45
Velkommen til visning!
Alle våre visninger har påmelding. På denne måten sikrer vi at megler har god oversikt og tid til å imøtekomme alle interessenter på beste måte. Dette er veldig verdifullt for boligkjøpere og for oss. Det er enkelt å melde seg på, og du kan like enkelt melde deg av. Kontakt også gjerne megler i forkant av visning dersom du har spørsmål.
Om boligen
Velkommen til Turbinveien 7 - en innbydende 3-roms med stor, takoverbygget balkong og svært gunstig planløsning.
Leiligheten ligger i Kværnerbyen med alt du trenger innen rekkevidde. Her finner du både matbutikk, apotek, treningssenter og svært gode bussforbindelser rett utenfor døren.
Borettslaget kan glede med en lekker takterrasse, parkeringsplass til kjøp/leie og oppvarming, varmtvann, TV og internett inkludert i felleskostnadene.
Høydepunkter verdt å merke seg:
- Heis
- IN-ordning
- Stor balkong
- Dyrehold er tillatt
- Praktisk planløsning
- Fantastiske turområder
- Gode kollektivforbindelser
- "Alt" inkludert i felleskostnadene
Leiligheten ligger i Kværnerbyen med alt du trenger innen rekkevidde. Her finner du både matbutikk, apotek, treningssenter og svært gode bussforbindelser rett utenfor døren.
Borettslaget kan glede med en lekker takterrasse, parkeringsplass til kjøp/leie og oppvarming, varmtvann, TV og internett inkludert i felleskostnadene.
Høydepunkter verdt å merke seg:
- Heis
- IN-ordning
- Stor balkong
- Dyrehold er tillatt
- Praktisk planløsning
- Fantastiske turområder
- Gode kollektivforbindelser
- "Alt" inkludert i felleskostnadene
NB: Knappen for å vise hele beskrivelsen har kun en visuell effekt.
NB: Knappen for å vise hele beskrivelsen har kun en visuell effekt.
Salgsoppgaven beskriver vesentlig og lovpålagt informasjon om eiendommen
Se komplett salgsoppgaveNyttige lenker
Nærområdet

Privatmegleren Komplett
Kun det beste på dine vegne
Annonseinformasjon
| FINN-kode | 452383288 |
|---|---|
| Sist endret | 01. mars 2026 13:32 |
| Referanse | 306260044 |
Annonsene kan være mangelfulle i forhold til lovpålagt opplysningsplikt. Før bindende avtale inngås oppfordres interessenter til å innhente komplett informasjon fra meglerforetaket, selger eller utleier.






























