Bildegalleri

Stue med "skipsgulv" og downlights. Velkommen på visning i Ammerudhellinga 78!
GRORUD
Lys gjennomgående 3-roms. Romslig balkong ca 12 kvm i vestlig retning. Fyring og varmt vann inkl. Ingen dok.avgift!
Prisantydning3 740 000 kr
Nøkkelinfo
- Boligtype
- Leilighet
- Eieform
- Andel
- Soverom
- 2
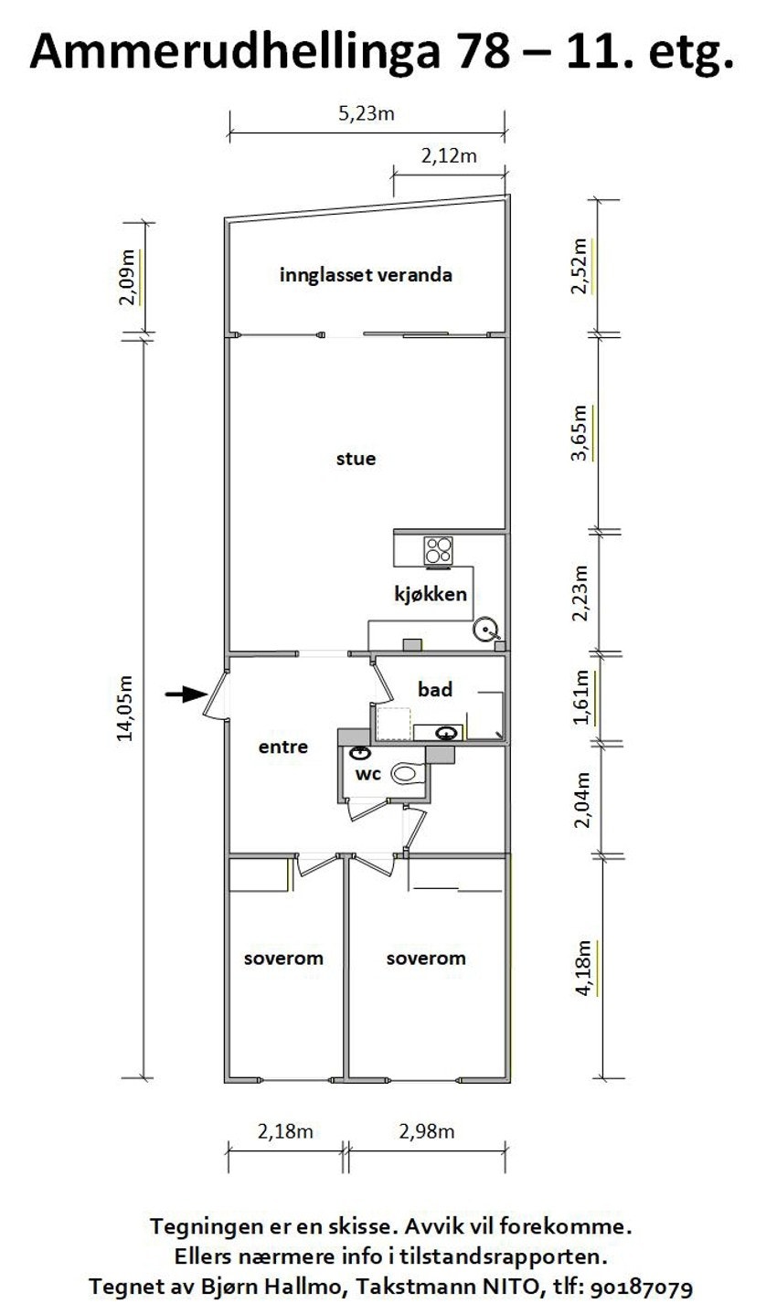
- Internt bruksareal
- 74 m² (BRA-i)
- Bruksareal
- 88 m²
- Eksternt bruksareal
- 2 m² (BRA-e)
- Innglasset balkong
- 12 m² (BRA-b)
- Etasje
- 11
- Byggeår
- 1966
- Energimerking
- E - Mørkegrønn
- Rom
- 3
- Tomteareal
- 13 706 m² (eiet)
Fasiliteter
Balkong/Terrasse
Heis
Barnevennlig
Sentralt
Turterreng
Utsikt
Vaktmester-/vektertjeneste
Fellesvaskeri
Bredbåndstilknytning
Om boligen
Leilighet med fin beliggenhet i 11. etasje med fint åpent utsyn. Nærhet til dagligvarebutikk, T-bane og buss. Det er flere alternative kjøpesenter, nærmest er Grorud. Større senter finnes på Stovner. Lillomarka og skogen finner du få minutter munna med flotte turmuligheter sommer som vinter.
- Gjennomgående god planløsning med gode lysforhold
- Trappefri adkomst og heisadkomst direkte til etasjen
- Varmt vann, fyring er inkludert i felleskostnadene. Lave strømutgifter.
- Flislagt bad med varmekabler, pusset opp i regi av borettslaget i perioden 2008-2011. Opplegg for vaskemaskin
- Separat flislagt toalettrom med servant
- Balkong ca 12 m2 i vestlig retning
- Balkongen har innglassing så man kan velge om man vil ha åpen eller lukket balkong.
- Kjellerbod
- Fellesvaskeri i blokken
- Lave kjøpsomkostninger
NB: Knappen for å vise hele beskrivelsen har kun en visuell effekt.
NB: Knappen for å vise hele beskrivelsen har kun en visuell effekt.
Salgsoppgaven beskriver vesentlig og lovpålagt informasjon om eiendommen
Se komplett salgsoppgaveNyttige lenker
Nærområdet
OBOS eiendomsmeglere - Oslo Sentrum
Annonseinformasjon
| FINN-kode | 452370228 |
|---|---|
| Sist endret | 24. feb. 2026 03:10 |
| Referanse | 701260012 |
Annonsene kan være mangelfulle i forhold til lovpålagt opplysningsplikt. Før bindende avtale inngås oppfordres interessenter til å innhente komplett informasjon fra meglerforetaket, selger eller utleier.

























