Bildegalleri

Velkommen til Langes gate 1A og toppleiligheten i gårdens 5. etasje.

St. Hanshaugen / Meyerløkka

Delikat 3-roms toppleilighet. Terrasse mot rolig gårdsrom. 2 sov og kontorrom. Alt utenfor døren. Ingen dokumentavgift!

Prisantydning6 490 000 kr
Totalpris
6 491 090 kr
Omkostninger
1 090 kr
Felleskost/mnd.
4 306 kr

Nøkkelinfo

Boligtype
Leilighet
Eieform
Andel
Soverom
2
Internt bruksareal
50 m² (BRA-i)
Bruksareal
50 m²
Balkong/Terrasse
8 m² (TBA)
Etasje
5
Byggeår
1874
Energimerking
C - Lysegrønn
Rom
3
Tomteareal
366 m² (eiet)

Les mer om bruksareal her

Fasiliteter

Barnevennlig
Balkong/Terrasse
Kabel-TV
Offentlig vann/kloakk
Parkett
Turterreng
Sentralt
Bredbåndstilknytning
Moderne
Rolig

Visning

mandag, 02. mars
17:00 – 17:45
Velkommen til visning! Alle våre visninger har påmelding. På denne måten sikrer vi at megler har god oversikt og tid til å imøtekomme alle interessenter på beste måte. Dette er veldig verdifullt for boligkjøpere og for oss. Det er enkelt å melde seg på, og du kan like enkelt melde deg av. Kontakt også gjerne megler i forkant av visning dersom du har spørsmål.
Visningspåmelding

Om boligen

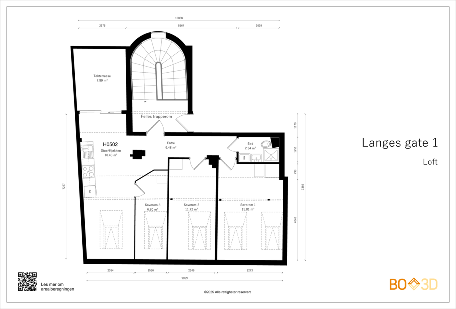
Velkommen til Langes gate 1A og toppleiligheten i gårdens 5. etasje.

Loftet ble omgjort til leiligheter i 2016 og dette er en av totalt to leiligheter i denne etasjen. Leiligheten har en svært god planløsning som gjør at den egner seg for de som ønsker å forbli, eller etablere seg, sentrumsnært uten å gi avkall på komfort og privatliv.

. Herlig terrasse på 8 m²
. Totalt gulvareal på 65 m²
. Gjennomgående gulv i trestavs eikeparkett
. 2 soverom og kontor
. Disponerer kjellerbod
. Nyetablert borettslag og lave fellesutgifter
. Ingen dokumentavgift

Urbant og sosialt; et perfekt utgangspunkt, enten man ønsker en rask kaffe på vei til jobb, en uformell lunsj eller stemningsfulle middager i nabolagets mange restauranter og vinbarer. Ypperlig kollektivtilbud, det kreves ingen planlegging.

Salgsoppgaven beskriver vesentlig og lovpålagt informasjon om eiendommen

Se komplett salgsoppgave

Nærområdet

Annonseinformasjon

FINN-kode452304053
Sist endret24. feb. 2026 09:13
Referanse159260088

Rapporter annonse

Annonsene kan være mangelfulle i forhold til lovpålagt opplysningsplikt. Før bindende avtale inngås oppfordres interessenter til å innhente komplett informasjon fra meglerforetaket, selger eller utleier.