Bildegalleri

- Velkommen til Vøyensvingen 18 D - presentert av Eiendomsmegler MNEF / Partner Bjørnar Mikkelsen (tlf. 938 98 132) hos Schala &Partners -
Lys & tiltalende 2-roms | 4. etg m/ heis | Pent bad/kjk | Varmtvann & bredbånd inkl | Nye vinduer 2025 | Nydelig utsikt
Nøkkelinfo
- Boligtype
- Leilighet
- Eieform
- Andel
- Soverom
- 1
- Internt bruksareal
- 29 m² (BRA-i)
- Bruksareal
- 38 m²
- Eksternt bruksareal
- 9 m² (BRA-e)
- Etasje
- 4
- Byggeår
- 1949
- Energimerking
- F - Rød
- Rom
- 2
- Tomteareal
- 1 526 m² (eiet)
Fasiliteter
Visning
Beskrivelse
Velkommen til Vøyensvingen 18 D - presentert av Eiendomsmegler MNEF / Partner Bjørnar Mikkelsen (tlf. 938 98 132) hos Schala & Partners:
Svært lys og tiltalende 2-roms med god og arealeffektiv planløsning, god standard og nydelig beliggenhet rett ved idylliske Iladalen park.
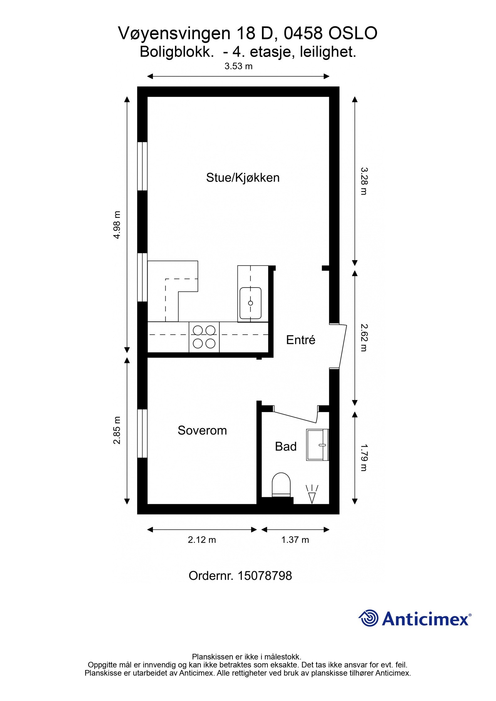
Leiligheten ligger i 4. etasje med heisadkomst og inneholder:
Entré med plass til klær, sko og skoskap. Romslig stue med to store vinduer og 2,60 meter takhøyde som gir gode lysforhold, flott utsikt og en åpen, luftig atmosfære. Plass til sittegruppe, tv-krok, spisebord og bokhylle. Kjøkken i halvåpen løsning med innredning fra 2006 med glatte fronter og god skap- og benkeplass. Alt av integrerte hvitevarer medfølger. Pent, flislagt bad rehabilitert i regi brl 2006 og ytterligere modernisert med ny innredning 2016. Varmekabler ble reparert 2026. Luftig soverom mot Iladalen park med stor garderobeløsning og plass til dobbeltseng.
Nye vinduer 2025 - Varmtvann og bredbånd er inkl i fellesutgifter - Nytt sikringsskap 2020 - To romslige boder - IN-ordning - Ingen forkjøpsrett.
Velkommen på visning!
Innhold
Leiligheten ligger i 4. etasje med heisadkomst og inneholder:
Entré, bad, soverom, stue og kjøkken.
Leiligheten disponerer to boder:
- Bod i kjeller på 5 m².
- Bod på loft på 4 m² (gulvareal på 7 m²).
Entré
Entré med plass til klær, sko og skoskap. Dørtelefon med åpner. Dør mot fellesareal er brann- og lydklassifisert. Parkett på gulv, malte vegger og malt himling.
Stue
Lys, luftig stue med to store vinduer (nye vinduer 2025) og 2,60 meter takhøyde som gir gode lysforhold, flott utsikt og en åpen og luftig atmosfære. Plass til sittegruppe, tv-krok, spisebord og bokhylle. Parkett på gulv, malte vegger og malt himling.
Kjøkken
Halvåpen løsning mot stue. Innredning fra 2006 med glatte fronter og god skap- og benkeplass. Integrert stekeovn, induksjonstopp og oppvaskmaskin. Kjøl-/ fryseskap medfølger også. Ventilator over induksjonstopp og fliser over benkeplate. Ventilator er av eldre standard, har noe slitasje og bør skiftes ut på sikt. Praktisk barløsning som gir et naturlig skille mot stue. Parkett på gulv, malte vegger og malt himling.
Bad
Pent, tidsriktig bad rehabilitert i regi av borettslaget 2006. Dusjnisje med innfellbare dusjvegger, toalett, servant med skap og speil med lys. Innredningen ble skiftet 2016 og varmekabler ble reparert av fagfolk 2026. Fliser med varme i gulv, fliser på vegger og malt himling med downlights.
Takstmann har gjennomført et overflatesøk med fuktindikator, uten at det ble påvist indikasjoner som tyder på fuktskader.
Det er felles vaskerom med vaskemaskin og tørketrommel i hver etasje i gården.
Soverom
Vender mot Iladalen park. Luftig soverom med stor, medfølgende garderobeløsning med skuffer, hyller og oppheng. Plass til dobbeltseng. Parkett på gulv, malte vegger og malt himling.
Diverse om leiligheten og gården
- Lys og luftig 2-roms med svært god og arealeffektiv planløsning.
- Leiligheten ligger høyt og fritt i 4. etasje med heisadkomst.
- Luftig stue med to store vinduer (nye vinduer 2025) og 2,60 meter takhøyde som gir gode lysforhold, flott utsikt og en åpen, luftig atmosfære.
- Plass til sittegruppe, tv-krok, spisebord og bokhylle.
- Kjøkken i halvåpen løsning med innredning fra 2006 med glatte fronter og god skap- og benkeplass.
- Integrert stekeovn, induksjonstopp og oppvaskmaskin. Kjøl-/ fryseskap medfølger også.
- Pent, tidsriktig bad rehabilitert i regi av borettslaget 2006.
- Dusjnisje med innfellbare dusjvegger, toalett, servant med skap, og speil med lys.
- Innredningen ble skiftet 2016 og varmekabler ble reparert av fagfolk 2026.
- Takstmann har gjort fuktsøk i badet uten at det ble påvist indikasjoner som tyder på fuktskader.
- Luftig soverom vendt mot Iladalen park.
- Medfølgende garderobeløsning med skuffer, hyller og oppheng.
- Plass til dobbeltseng.
- Entré med plass til klær, sko og skoskap.
- Dørtelefon med åpner.
- Dør mot fellesareal er brann- og lydklassifisert.
- Parketten i leiligheten ble slipt 2022.
- Det er felles vaskerom med vaskemaskin og tørketrommel i hver etasje.
- Nytt sikringsskap og AMS-måler fra 2020.
- Boligen er tilknyttet strømordningen Norgespris.
- Eier brukte 3651 kwh i 2025.
- El-tilsyn gjennomført i mai 2025, avvik utbedret i august 2025.
- Bod i kjeller på 5 m².
- Bod på loft på 4 m² (gulvareal på 7 m²).
- Eget sykkelskur for beboerne.
- Varmtvann og bredbånd er inkludert i fellesutgifter.
- Nytt felles brannvarslingsanlegg i borettslaget, 2025.
- Mulighet for individuell nedbetaling av deler av andel fellesgjeld (IN-ordning).
- Vøyensvingen borettslag består av 142 leiligheter.
- Borettslagets disponible midler pr 31.12.24 var kr 826.352,- og viser selskapets likviditet.
- Ingen forkjøpsrett.
- Dyrehold er tillatt etter søknad til styret.
- Sentral og rolig beliggenhet med gangavstand til alt Oslo sentrum har å tilby.
- Leiligheten ligger perfekt til mellom Iladalen og Akerselva.
Felleskostnader
5 017 pr. mnd. Varmtvann, bredbånd, trappevask, vaktmestertjeneste, renter og avdrag på andel fellesgjeld, kommunale avgifter, felles forsikring, forretningsførsel, drift, normalt vedlikehold m.m.
Herav:
Felleskostnader drift: 2 069,-
Bredbånd: 199,-
Husleietillegg fellesstrøm nr. 16 og 18: 375,-
Felleslån varmepumpe - Avdrag: 46,-
Felleslån varmepumpe - Renter: 45,-
Felleslån brannvarsling - Avdrag: 41,-
Felleslån brannvarsling - Renter: 41,-
IN-lån - Avdrag: 318,-
IN-lån - Renter: 209,-
Felleslån 1 - Renter: 566,-
Felleslån 1 - Avdrag: 861,-
Avdrag vinduslån: 51,-
Renter vinduslån: 196,-
Fellesutgifter fastsettes av styret, normalt for ett år av gangen. Ved behov kan styret øke fellesutgiftene. Det gjøres oppmerksom på at en eventuell renteøkning, vedlikeholdsarbeid eller andre tiltak som iverksettes av boligselskapet kan medføre økning i felleskostnadene.
Løpende kostnader
Utover det som er nevnt under punktet "Felleskostnader", påløper kostnader til for eksempel strøm, innboforsikring, innvendig vedlikehold og abonnement til tv og internett (eventuelt oppgradering av kanalpakker og linjehastighet der hvor grunnpakke er inkludert).
Det er i Oslo kommune vedtatt eiendomsskatt. Det gjøres spesielt oppmerksom på at beregningsgrunnlaget vil være høyere for boliger som benyttes som sekundærbolig. For å finne beregningsgrunnlaget vennligst se Oslo kommunes hjemmeside: http://www.oslo.kommune.no/skatt-og-naring/skatt-og-avgift/eiendomsskatt/eiendomsskatt/
Andel fellesgjeld
252 132
Andel formue
8 424
Fellesgjeld / lånevilkår
Spesifikasjon av lån:
Lånenummer: 15160111760, DNB Boligkreditt AS v/DNB Bank ASA
Annuitetslån, 4 terminer per år.
Rentesats per 27.01.2026: 5.04% pa.
Antall terminer til innfrielse: 41
Saldo per 27.01.2026: 8 193 624
Andel av saldo: 50 599
Første termin/første avdrag: 30.09.2014 ( siste termin 31.03.2036 )
Lån med IN-ordning
Lånenummer: 15160111051, DNB Bank ASA
Annuitetslån, 4 terminer per år.
Rentesats per 27.01.2026: 5.04% pa.
Antall terminer til innfrielse: 41
Saldo per 27.01.2026: 19 761 808
Andel av saldo: 137 194
Første termin/første avdrag: 30.12.2022 ( siste termin 30.03.2036 )
Lånenummer: 16369097842, DNB Bank ASA
Annuitetslån, 4 terminer per år.
Rentesats per 27.01.2026: 4.95% pa.
Antall terminer til innfrielse: 56
Saldo per 27.01.2026: 1 098 746
Andel av saldo: 10 949
Første termin/første avdrag: 30.03.2025 ( siste termin 30.12.2039 )
Lånet er kun fordelt på andeler i nr. 16 og 18
Lånenummer: 16369097826, DNB Bank ASA
Annuitetslån, 4 terminer per år.
Rentesats per 27.01.2026: 5.05% pa.
Antall terminer til innfrielse: 56
Saldo per 27.01.2026: 1 476 629
Andel av saldo: 9 911
Første termin/første avdrag: 30.03.2025 ( siste termin 30.12.2039 )
Lånenummer: 16369097834, DNB Bank ASA
Annuitetslån, 4 terminer per år.
Rentesats per 27.01.2026: 5.45% pa.
Antall terminer til innfrielse: 118
Saldo per 27.01.2026: 6 478 014
Andel av saldo: 43 479
Første termin/første avdrag: 30.12.2025 ( siste termin 30.06.2055 )
Sikringsordning fellesgjeld / IN-ordning
Boligselskapet er tilknyttet sikringsordning.
Det er etablert IN-ordning på lån med lånenummer 15160111760. Andel av saldo på dette lånet er kr 50 599,-
Formuesverdi
Formuesverdi som primærbolig kr. 890 427 pr. 31.12.24| Formuesverdi som sekundærbolig kr. 3 561 708 pr. 31.12.24
Oppgitt formuesverdi er basert på siste tilgjengelige fastsatte formuesverdi fra Skatteetaten. Årstall angir hvilket ligningsår verdien er knyttet til, og endelig formuesverdi kan avvike. Det er vedtatt endringer i beregningsmodellen for formuesverdi fra skatteåret 2026, og endelig formuesverdi kan bli høyere enn oppgitt.
Tilstandsgrader (TG2/TG3) fra tilstandsrapport:
I tilstandsrapport er følgende elementer gitt tilstandsgrad 2:
Våtrom
Overflater vegger: Misfarging/svertesopp påvist på flisfuger. Fuger bør rengjøres/fornyes.
Membran, tettesjikt og overgang til sluk.: Tettesjiktet har en alder som tilsier at restlevetiden er usikker. Rommets
lekkasjesikkerhet kan derfor ikke verifiseres, eventuelt bør nytt tettesjikt etableres.
Ventilasjon: Våtrommet har kun naturlig ventilasjon. Naturlig ventilasjon gir som regel mindre effektiv luftutskifting enn mekanisk ventilasjon, noe som kan medføre økt fuktpåkjenning i våtrommet. Tiltak bør iverksettes ved behov.
Sanitærutstyr / innredning: Servant har sprekk/riss i porselen. Servant må skiftes ut.
Kjøkken
Vannrør: Vannrørene er ikke plugget mot varerør. Av denne grunn kan eventuelt lekkasjevann fra rør-i-rør system forårsake følgeskader.
Selgers egenerklæringsskjema
Selger har kommentert på følgende spørsmål i egenerklæringsskjema som er en del av salgsoppgaven:
2 Er det utført arbeid på bad, vaskerom eller toalettrom? Ja
2.1.1 Navn på arbeid: Nytt arbeid
2.1.2 Årstall: 2016
2.1.3 Hvordan ble arbeidet utført? Faglært
2.1.4 Fortell kort hva som ble gjort av faglærte: Badet er bygget 2006 av brl. Det ble lagt nye fliser og varmekabler i 2016 av Bademiljø Ringside/E-verket Elektroinnstalasjon As (som fremkommer av forrige salgsoppgave da jeg kjøpte boligen i 2021). Det ble også i 2016 montert nye dusjvegger i herdet glass.
2.1.5 Hvilket firma utførte jobben? Bademiljø Ringside /E-verket Elektroinnstalasjon A
2.1.6 Har du dokumentasjon på arbeidet? Nei
I din leilighet, er det utført arbeid på tak, yttervegg, vindu eller annen fasade? Ja
4.1.1 Navn på arbeid: Nytt arbeid
4.1.2 Årstall: 2025
4.1.3 Hvordan ble arbeidet utført? Faglært
4.1.4 Fortell kort hva som ble gjort av faglærte: Alle vinduene (soverom, kjøkken og stue) ble byttet i regi av borettslaget november 2025.
4.1.5 Hvilket firma utførte jobben? Takst og Vindu Spesialisten (TVS)
4.1.6 Har du dokumentasjon på arbeidet? Nei
9 Har det vært feil på det elektriske anlegget? Ja
Beskriv feilen og omfanget: Det ble utført vanlig el-tilsyn mitt elektriske anlegg den 30.05.2025 (sammen med andre boliger i borettslaget). Med bakgrunn i kontrollen ble det utarbeidet en tilsynsrapport med oversikt over avvik som ble avdekket. Alle avvikene ble utbedret juli 2025 og er i orden nå.
10 Er det utført arbeid på det elektriske anlegget? Ja
10.1.1 Navn på arbeid: Nytt arbeid
10.1.2 Årstall: 2025
10.1.3 Hvordan ble arbeidet utført? Faglært
10.1.4 Fortell kort hva som ble gjort av faglærte: Det ble utført vanlig el-tilsyn mitt elektriske anlegg den 30.05.2025. Med bakgrunn i kontrollen ble det utarbeidet en tilsynsrapport med oversikt over avvik som ble avdekket. Alle avvikene ble utbedret juli 2025 og er i orden nå.
10.1.5 Hvilket firma utførte jobben? Boligelektrikeren AS
10.1.6 Har du dokumentasjon på arbeidet? Ja
29 Foreligger det planer eller bestemmelser som kan medføre endringer av felleskostnader eller fellesgjeld? Ja
Hvilke planer? Hvor stor endring vil kostnadene og/eller gjelden medføre? I forbindelse med vindusbytte er det tatt opp økt fellesgjeld. Styret har varslet at felleskostnadene økes med 9,8 % fra 2026. Økningen skyldes lån
som er tatt opp i forbindelse med vindusbytte + økning i kommunale avgifter.
Totalt bruksareal
Boligens totale areal er 38 kvm.
Fjerde etasje:
BRA-i: 29m²
Leiligheten disponerer en ekstern bod i kjeller oppmålt til 5m² (BRA-e) og en ekstern bod på loft oppmålt til 4m² (BRA-e).
Loftsboden har et totalt gulvareal (GUA) på 7m² , men grunnet skråtak/lav takhøyde er kun 4m² av arealet måleverdig som bruksareal. De delene av arealene som har lav himlingshøyde (ALH) utgjør 3m²
BRA-i: Internt bruksareal. BRA-e: Eksternt bruksareal. Dersom dette arealet befinner seg i sameie, borettslag, aksjesalg e.l. vil normalt sett disse arealene ikke være eid av boligen, de er kun disponert på salgstidspunktet. Arealet kan f. eks. omrokeres av styret i ettertid. BRA-b: Innglasset balkong. GUA: Gulvareal. ALH: Areal med lav himlingshøyde.
Se vedlagte tilstandsrapport for nærmere beskrivelse av arealene. Arealene er oppmålt av bygningssakkyndig og ikke kontrollert/oppmålt av eiendomsmegler. Arealene er oppgitt iht NS 3940 Areal- og volumberegninger av bygninger.
Adkomst
Det vil bli skiltet med Schala & Partners Eiendomsmegling visningsskilt i forbindelse med fellesvisninger.
Tomt
Areal: 1 526 kvm, Eierform: Eiet tomt
Garasje / Parkering
Gateparkering etter gjeldende bestemmelser.
Området er en del av ordningen "beboerparkering". Dvs. at man med beboerkort kan parkere hele uken, også utover det som er maksimal parkeringstid, mot et gebyr. Gebyrets størrelse beror på type kjøretøy, se priser og mer info på www.bymiljoetaten.oslo.kommune.no/trafikk_og_samferdsel/parkering/beboerparkering/
Arealbekreftelse
Arealbekreftelse fra Oslo kommune følger vedlagt.
Byggemåte
Boligblokk over 5. etasjer, samt kjeller og loft. Grunnmur, bærende konstruksjoner og etasjeskiller hovedsakelig av betong. Takkonstruksjon utvendig tekket med takplater/takstein (ikke besiktiget). Utvendige fasader forblendet i pusset mur. Leiligheten har entrédør med brannklasse B30 og lydklasse db35. Vinduer med 3-lags glass fra 2025. Oppvarming via elektrisitet.
Ferdigattest / brukstillatelse
Det foreligger "ekspedisjonsdokument" fra byggeåret. Et ekspedisjonsdokument er forgjengeren til ferdigattest. Dette dokumentet er førstesiden på byggesaken, hvor alle godkjennelser blir stemplet på (oppmålingssjefen, brannsjefen, helseråd, etc). Dette dokumentet kan være (ferdig) attestert, men i noen tilfeller er det bare registrert dato for byggeanmeldelse. Ved eldre bygårder er det som oftest dette dokumentet som vedlegges (attestert eller uattestert) for bekreftelse på at bygningen ble lovlig satt opp. Ekspedisjonsdokument kommer hovedsakelig i bygg som ble bygget på 1800-tallet og frem til rundt 1940-50.
Vøyensvingen 18 - Ombygging av våtrom samt fasadeendring - Ferdigattest - 2008.
Vøyensvingen 14, 16 og 18 - Montering av brannalarmanlegg - Ferdigattest - 2025.
Ferdigattest utstedes av bygningsmyndighetene på grunnlag av mottatt dokumentasjon fra kontrollansvarlige når et søknadspliktig tiltak er utført i samsvar med tillatelsen og øvrige krav etter plan- og bygningslovgivningen. At ferdigattest eksisterer, gir ingen garanti for bygget er oppført i henhold til tillatelsen og gjeldende regelverk eller at det senere er utført arbeid på bygget som ikke er byggemeldt eller godkjent.
Adgang til utleie
I henhold til Lov om borettslag § 5-5 kan man med godkjenning fra styret i borettslaget leie ut leiligheten til andre for opp til tre år dersom man har bodd i leiligheten i minst ett av de to siste årene. Se for øvrig vedtektene for utfyllende bestemmelser.
For utleie av leilighet skal det fylles ut utleieskjema som sendes styret. Du finner skjemaet under fanen Dokumenter. Styret informerer Usbl. Se også borettslagets vedtekter under Informasjon - Vedtekter. Vedtektene henger også på oppslagstavlen i postrommet.
Styret og borettslaget godkjenner Airbnb-utleie. For Airbnb-utleie lenger enn 14 dager må styret informeres. Andelseier står selv juridisk og økonomisk ansvarlig for eventuelle skader eller ulemper.
Oppvarming
Oppvarming via elektrisitet.
Energiforbruk
Totalt strømforbruk i 2025: ca. 3 651 kWh
Energiforbruket vil variere fra husstand til husstand.
Strømstøtteordning
Ja, tilknyttet Norgespris.
Bindingstid: 4. november 2025 - 31. desember 2026.
Energimerking
Oppvarmingskarakter Rød - Energikarakter F
Megler har intet ansvar for informasjon som følger av energiattesten. For fullstendig energiattest fra selger, kontakt megler.
Regulering
Eiendommen er regulert til boliger. For ytterligere opplysninger om regulering, vennligst ta kontakt med megler.
Eiendommen er regulert til spesialområde - bevaring (boliger) etter bestemmelsene i S-4179 av 26.10.2005.
Reguleringskart ligger vedlagt i salgsoppgaven, ta kontakt med megler for å få oversendt reguleringsbestemmelsene.
Konsesjon / Odel
Det er ingen konsesjon eller odel knyttet til salget av denne eiendommen.
Offentlige planer
Pågående byggesaker:
Vøyensvingen 20-22 - tilbygg og ny utebod, nedfallssikring og inntakstårn for ventilasjon - Vøyensvingen barnehage. Se saksnummer: 202516933.
Vøyensvingen 15 - utskifting av utvendig vann og avløp. Se saksnummer: 202507414.
Maridalsveien 71 C - innlemming av garasje i bolig, tilbygg, bruksendring av kjeller og loft til bolig og fasadeendringer. Se saksnummer: 202510420.
Claus Riis' gate 2 - bruksendring av tannlegekontor til bolig. Se saksnummer: 202509217.
Claus Riis' gate 7 A - oppføring av tre balkonger. Se saksnummer: 202507332.
Det rives, bygges og rehabiliteres i området. For informasjon om eventuelle arbeider i nærliggende områder anbefaler vi et søk på plan og bygg sin sakinnsyn portal: https://www.oslo.kommune.no/plan-bygg-og-eiendom/
Servitutter / tinglyste rettigheter og forpliktelser
1948/301436-1/105 Erklæring/avtale
05.05.1948
vedr. begrensninger i utleiemulighetene m.v.
Gjelder denne registerenheten med flere
1948/301617-1/105 Erklæring/avtale
15.05.1948
Bestemmelse om trafostasjon/kiosk
1993/3369-1/105 Rettighet
22.01.1993
Rettighetshaver:Brunsvik Geir
Fnr: 26024831565
Rettighetshaver:Rekkedal Mette Brunsvik
Fnr: 24074427614
LEIE AV LEILIGHET
AREAL 90 M2
LEIE KR. l.039,80 PR. MND. SOM REG.
LEIETID: UOPPSIGELIG FRA UTLEIERS SIDE
RETT TIL OVERDRAGELSE.
1994/7348-2/105 ** Transport av rettighet
07.02.1994
gjelder: RETTIGHET 1993/3369-1/105
Fra:Brunsvik Bjarne
Fnr: 27051835773
Til:Brunsvik Geir
Fnr: 26024831565
Til:Rekkedal Mette Brunsvik
Fnr: 24074427614
1993/7902-1/105 Rettighet
19.02.1993
Rettighetshaver:Stixrud Olaug
Fnr: 17011135897
LEIEAVTALE
LEIETID: F.O.M. 01.10.91.
AREAL: 115 M2
LEIE: KR. 1.328,63 PR. MND.
UOPPSIGELIG FOR UTLEIEREN.
RETT TIL OVERDRAGELSE OG FREMLEIE.
Med flere bestemmelser
1993/12899-1/105 Rettighet
24.03.1993
Rettighetshaver:Roald Ingeborg
Fnr: 28036032083
LEIEAVTALE
Leietid fra 01.10.91, Leiesum kr. 993,59 pr. mnd. Rett til
fremleie, m/fl. best.
1994/34701-2/105 ** Transport av rettighet
29.06.1994
gjelder: RETTIGHET 1993/12899-1/105
Fra:Roald Per
Lnr: 1176209
Til:Roald Ingeborg
Fnr: 28036032083
2005/17497-1/105 Fellesobl. for bor.innsk.
16.03.2005
BELØP: NOK 18.000.037
Panthaver:Boligbyggelaget Usbl
Lnr: 6909261
Gjelder denne registerenheten med flere
2005/81182-1/105 ** Prioritetsbestemmelse
25.11.2005
veket for: PANTEDOKUMENT 2005/75910-1/105
2005/75910-1/105 Pantedokument
09.11.2005
BELØP: NOK 85.100.000
Panthaver:DNB BANK ASA
Org.nr: 984851006
Gjelder denne registerenheten med flere
2025/21297-1/200 Pantedokument
07.01.2025 16:51
BELØP: NOK 2.000.000
Panthaver:DNB BANK ASA
Org.nr: 984851006
Panthaver:DNB BOLIGKREDITT AS
Org.nr: 985621551
Gjelder denne registerenheten med flere
Elektronisk innsendt
2025/24634-1/200 Pantedokument
08.01.2025 13:31
BELØP: NOK 1.900.000
Panthaver:DNB BANK ASA
Org.nr: 984851006
Panthaver:DNB BOLIGKREDITT AS
Org.nr: 985621551
Gjelder denne registerenheten med flere
Elektronisk innsendt
2025/24638-1/200 Pantedokument
08.01.2025 13:31
BELØP: NOK 21.600.000
Panthaver:DNB BANK ASA
Org.nr: 984851006
Panthaver:DNB BOLIGKREDITT AS
Org.nr: 985621551
Gjelder denne registerenheten med flere
Elektronisk innsendt
Grunndata
1947/302368-3/105 Registrering av grunn
21.07.1947
Denne matrikkelenhet opprettet fra:Knr:0301 Gnr:219 Bnr:186
OG MARIDALSVEIEN 80B - UTGÅTT
Vei/vann/avløp
Offentlig vei, vann og avløp i henhold til informasjon fra Oslo kommune. Det er private stikkledninger fra eiendommen og ut i det offentlige ledningsnettet.
Borettslag
Vøyensvingen Borettslag består av 142 boliger og ingen næringslokaler.
Forkjøpsrett
Ingen.
Forsikring
Gjensidige
Polisenummer: 89112257
Regnskap
Årsregnskapet for forrige periode (2024) viser:
Driftsinntekter kr. 8 258 354,-
Driftskostnader kr. 7 334 125,-
Årsresultat kr. -587 630,-
Budsjett for 2025 viser et overskudd på kr. 2 274 685,-
Vedtekter / husordensregler
Vedtektene og husordensreglene følger som vedlegg.
I følge vedtektene er det krav om styregodkjennelse av ny eier.
Hva skjer i gården / vedlikehold etc.
Felles brannvarslingssystem for hele borettslaget, oppgradert i 2025.
Vinduer
Vindusutskifting ble vedtatt på ekstraordinær generalforsamling i desember 2023. Alle vinduene i leiligheten som nå selges, ble skiftet i regi av borettslaget i november 2025.
I forbindelse med vindusprosjektet er det tatt opp et felleslån i borettslaget, noe som medfører økt andel fellesgjeld og felleskostnader. Endelig fordeling av fellesgjelden er foreløpig estimert, men ikke endelig fastsatt. Styret arbeider for å holde kostnadene lavere enn budsjettert, men endelig nivå for fellesgjeld og felleskostnader vil først være klart når prosjektet er fullt avsluttet.
Styret har opplyst at første delfaktura for vinduene er betalt, og at første del av lånet er utbetalt til borettslaget. Lånebeløpet vil øke gradvis i takt med videre utbetalinger.
Nedbetaling av lånet er allerede påbegynt. Per 27.01.2026 utgjør saldo for denne andelen kr 43 479. Basert på tilgjengelig dokumentasjon anslås det at den samlede økningen i fellesgjeld for denne andelen vil være om lag kr 120 000. Felleskostnadene er allerede økt med kr 247 per måned som følge av den fellesgjelden som hittil er tatt opp. Det estimeres at felleskostnadene samlet vil øke til om lag kr 403 per måned når hele lånet er fullt utbetalt og endelig fordelt.
Husdyrhold
Husdyr kan først anskaffes eller medbringes etter at søknad om det er innvilget fra styret. Det gjelder også eventuell gjenanskaffelse.
Tilbehør
Følgende tilbehør medfølger:
- Hvitevarer i kjøkken medfølger.
- Garderobeskap i soverom medfølger.
- Skap som i dag er lagret i bod medfølger.
I salgsoppgaven finner du NEF sin standardliste Oversikt over løsøre og tilbehør . Listen gjelder med mindre annet er særskilt oppgitt i salgsoppgaven. Dersom noe som står på listen ikke finnes på eiendommen, følger det heller ikke med. Med mindre annet er opplyst, medfølger integrerte hvitevarer på kjøkken. Alt løsøre og utstyr som medfølger overdras uten garantier, utover eventuell gjenværende leverandørgaranti. Kjøper må påregne at det kan være hull og merker etter innredning eller utstyr som ikke følger med.
Boligselgerforsikring
Selger har i forbindelse med salget tegnet boligselgerforsikring.
Boligkjøperpakke / Boligkjøperforsikring
Grünerløkka Eiendomsmegling AS tilbyr sammen med Gjensidige et gunstig forsikringskonsept for deg som kjøper bolig gjennom Grünerløkka Eiendomsmegling AS.
Kjøpere (ikke juridiske personer) har anledning til å tegne Boligkjøperpakken.
Pakken inkluderer bl.a. husforsikring, innboforsikring Pluss, dobbel rentedekning, flytteforsikring og boligkjøperforsikring som gir deg juridisk bistand dersom du ønsker å reklamere på boligkjøpet.
Kjøpere (ikke juridiske personer) kan også velge å kun tegne Boligkjøperforsikring.
Boligkjøperpakken/Boligkjøperforsikring må tegnes senest i forbindelse med kontraktsmøtet.
Budgivning
Vi oppfordrer alle til å lese Forbrukerinformasjon om budgivning før bud inngis. Alle bud og budforhøyelser skal inngis skriftlig til megler. I tillegg er megler pålagt å innhente gyldig legitimasjon og signatur fra budgiver før bud kan formidles til selger.
Kravet til legitimasjon og signatur er oppfylt for budgivere som benytter Bank-ID og vi oppfordrer derfor alle til å gi bud elektronisk ved å benytte GI BUD knappen på eiendommens hjemmeside på Partners.no. Eventuelle forhøyelser kan sendes ved å svare direkte på mottatt sms fra meglers system, til megler per e-post eller SMS: 93 89 81 32 . Alle budforhøyelser skal bekreftes av megler.
For at budene skal kunne bli behandlet og videreformidlet skriftlig til alle involverte parter, må alle bud ha en tilstrekkelig lang akseptfrist, jf. eiendomsmeglingsforskriften § 6-3. Selger må også skriftlig akseptere budet før aksept kan formidles til budgiver. Akseptfrist på alle bud skal være minimum 30 minutter, og budforhøyelser må skje i god tid før fristens utløp. Bud som ikke er skriftlig, eller som har kortere akseptfrist enn til kl. 12.00 dagen etter siste annonserte visning, vil ikke bli formidlet til selger. Selger står fritt til å akseptere eller forkaste et hvert bud og er således ikke forpliktet til å akseptere det høyeste budet på eiendommen. Etter at eiendommen er solgt vil kjøper og selger få tilsendt budjournal. Øvrige budgivere kan få utlevert kopi av budjournalen i anonymisert form.
Det gjøres oppmerksom på at budgiver også vil være den som vil stå som kjøper av eiendommen. Dersom man etter at bud er akseptert ønsker å endre hvem som skal stå som eier, forutsetter dette at selger godkjenner en slik endring. Alle involverte parter skal signere kjøpekontrakt og er solidarisk ansvarlig for kjøpet frem til oppgjør er gjennomført.
Overtagelse
Etter avtale.
Diverse
Alle innvendige og utvendige arealangivelser, samt beskrivelser av bygningen er hentet fra vedlagte tilstandsrapport. Salgsoppgaven er basert på selgers opplysninger gitt til takstmann, megler og opplysninger innhentet fra kommunen, eventuelt forretningsfører og andre tilgjengelige kilder. Interessenter oppfordres til å undersøke eiendommen godt, gjerne sammen med sakkyndig, før bud inngis. Det er ikke kontrollert om tomtegrensene stemmer med de grenser/gjerde som fysisk er satt. Det kan være avvik fra dagens rombruk/rombenevnelse i forhold til det opprinnelige byggemeldte/godkjente.
Meglerforetaket oppfordrer evt. budgivere til å lese gjennom fullstendig prospekt/salgsoppgave med vedlegg.
Lov om hvitvasking
Eiendomsmeglingsforetak plikter etter lov om hvitvasking å gjennomføre kontrollhandlinger knyttet til kjøper og selgers identitet og forhold knyttet til gjennomføringen av handelen. Dette omfatter også opplysninger om kundeforholdets formål og tilsikrede art. For kjøper må kontroll av legitimasjon skje senest ved inngåelse av kontrakt. Signering med bankID er regnet som gyldig legitimasjonskontroll. Ved oppdrag hvor juridiske personer (selskap) er part må eiendomsmegler også gjennomføre kontroll av hvilke fysiske personer som kontrollerer selskapet (reelle rettighetshavere). Dersom megler ikke klarer å gjennomføre pålagte kundetiltak må megler avvise kunden og oppdraget. Megler har også plikt å melde forhold som ikke er avklart og fremstår som mistenkelige til Økokrim. Megler kan også i enkelte tilfeller har plikt til å stanse gjennomføringen av handelen.
Eiendomsmegler plikter å gjennomføre undersøkelser av kjøpers egenkapital og eventuelt andre forhold knyttet til kjøper. Den delen av kjøpesummen som er egenkapital skal innbetales fra kjøpers konto i norsk finansinstitusjon.
Salgsbetingelser
Eiendommen skal overleveres kjøper i tråd med det som er avtalt. Det er viktig at kjøper setter seg grundig inn i alle salgsdokumentene, herunder salgsoppgave, tilstandsrapport og selgers egenerklæring. Kjøper anses kjent med forhold som er tydelig beskrevet i salgsdokumentene. Forhold som er beskrevet i salgsdokumentene kan ikke påberopes som mangler. Dette gjelder uavhengig av om kjøper har lest dokumentene. Alle interessenter oppfordres til å undersøke eiendommen nøye, gjerne sammen med fagkyndig før bud inngis. Kjøper som velger å kjøpe usett kan ikke gjøre gjeldende som mangel noe han burde blitt kjent med ved undersøkelsen.
Dersom det er behov for avklaringer, anbefaler vi at kjøper rådfører seg med eiendomsmegler eller en bygningssakyndig før det legges inn bud.
Hvis eiendommen ikke er i samsvar med det kjøperen må kunne forvente ut ifra alder, type og synlig tilstand, kan det være en mangel. Det samme gjelder hvis det er holdt tilbake eller gitt uriktige opplysninger om eiendommen og dette har virket inn på avtalen. En bolig som har blitt brukt i en viss tid, har vanligvis blitt utsatt for slitasje og skader kan ha oppstått. Slik bruksslitasje må kjøper regne med, og det kan avdekkes enkelte forhold etter overtakelse som nødvendiggjør utbedringer. Normal slitasje og skader som nødvendiggjør utbedring, er innenfor hva kjøper må forvente og vil ikke utgjøre en mangel.
Boligen kan ha en mangel dersom det er avvik mellom opplyst og faktisk areal, forutsatt at avviket er på 2% eller mer og minimum 1 kvm.
Ved beregning av et eventuelt prisavslag eller erstatning må kjøper selv dekke tap/kostnader opptil et beløp på kr 10 000 (egenandel).
Dersom kjøper ikke er forbruker selges eiendommen som den er , og selgers ansvar er da begrenset jf. avhl. § 3-9, 2. pktm. Informasjon om kjøpers undersøkelsesplikt, herunder oppfordringen om å undersøke eiendommen nøye, gjelder også for kjøpere som ikke anses som forbrukere.
Eiendomsmegler standardkontrakt inneholder bl.a. bestemmelser om at hvis det foreligger vesentlig mislighold som bl.a. gir selger rett til å heve når det er gått 30 dager fra avtalt betalingstid, kjøper aksepterer dette som bindende for seg.
Det forutsettes at hjemmel til eiendommen overføres til kjøper. Dersom dette ikke er ønskelig må det tas forbehold i budet.
Avhendingsloven
Frivillig salg av fast eiendom reguleres av Lov om avhending av fast eiendom av 3. juli 1992 nr. 93.
Finansiering
Vi har løpende kontakt med finansinstitusjoner som kan tilby lån med konkurransedyktige betingelser. Hvis ønskelig formidler vi gjerne kontakt.
Heftelser
Borettslagsmodellen innebærer at borettslaget eier eiendommen, mens andelseierne eier andeler i borettslaget, som gir andelseier borett til en bestemt bolig.
Andelseierne har ikke personlig ansvar for selskapets fellesgjeld, men boligselskapets løpende utgifter må dekkes av andelshaverne. Manglende innbetaling av fellesutgiftene som følge av andre andelshaveres mislighold, eller der boligselskapet sitter på fraflyttede og usolgte andeler, må dekkes av de øvrige andelseierne.
Borettslaget har dog lovbestemt pant for inntil 2 G i andelene.
På eiendommen kan det være tinglyst erklæringer/avtaler som for eksempel rett til kommunen til å anlegge vann- og kloakkledninger inkl. reparasjon av disse, bestemmelser om bebyggelsen, gjerder, vei og adkomstrettigheter. Disse erklæringene/avtalene vil følge eiendommen ved salg, og kan ikke slettes. Vennligst ta kontakt med megler for nærmere spesifikasjon av disse.
Adresse og matrikkel
Vøyensvingen 18 D, 0458, Oslo, Gnr. 219 bnr. 244, andelsnr. 429 i Vøyensvingen Borettslag med orgnr. 986122362 i Oslo kommune
Eier
Vesa Zeka
Oppdragsnummer
16-26-0008
Meglers vederlag
Om meglers vederlag er det avtalt 1,20 % av salgssummen inkludert evt fellesgjeld. I tillegg er det avtalt vederlag for oppgjør kr. 6990,-, tilrettelegging kr 12 990,-, markedspakke kr. 24.950,-. For visninger er det avtalt kr. 3.000,- pr. visning. Alle tall i dette avsnitt er opplyst inklusive mva.
Dersom handel ikke kommer i stand eller oppdraget sies opp, har oppdragstaker krav på rimelig vederlag for medgått tid/utført arbeid og avtalte utgifter (utgifter til påløpte visninger, innhenting av opplysninger, markedspakke og tilrettelegging), samt eventuelle utlegg. Alle priser er inkl. mva.).
Meglerforetaket mottar betaling for tilleggstjenester som tilbys i sammenheng med eiendomshandelen. Dette gjelder blant annet strømleverandører, boligkjøperprodukter, boligalarm o.l.). For ordens skyld gjøres det oppmerksom på at Hjem.no eies av eiendomsmeglingsforetakene og oppdragstaker kan ha en mindre aksjepost i eierselskapet Bomega AS.
Ansvarlig megler:
Bjørnar Mikkelsen
Schala & Partners Grünerløkka
Vedlegg til salgsoppgave og kjøpekontrakt
Vedlagt i salgsoppgaven foreligger det reguleringsbestemmelser med kart, tilstandsrapport, egenerklæringsskjema selger, energiattest mm. Alle interessenter oppfordres til å sette seg inn i fremlagte dokumenter før bud inngis. Ta gjerne kontakt med megler dersom du ønsker utlevert dine egne kopier av dokumentene.
Det gjøres oppmerksom på at Schala & Partners Grünerløkka sine standard kjøpekontrakter blir benyttet i handelen, dersom det ikke avtales noe annet før handel har kommet i stand.
Behandling av personopplysninger
Det gjøres oppmerksom på at foretaket behandler personopplysninger og all behandling skjer iht. personvernregelverket. Meglerforetaket behandler kun personopplysninger som er nødvendig for å gjennomføre oppdraget. Det gjøres oppmerksom på at vi deler dine personopplysninger med offentlige myndigheter i den utstrekning det er nødvendig og med virksomheter som tilbyr tjenester for gjennomføring av oppdraget. For mer informasjon se personvernerklæring på www.partners.no.
Salgsoppgaven beskriver vesentlig og lovpålagt informasjon om eiendommen
Se komplett salgsoppgaveNyttige lenker
Nærområdet
Schala & Partners Grünerløkka
Annonseinformasjon
| FINN-kode | 452076906 |
|---|---|
| Sist endret | 22. feb. 2026 03:18 |
| Referanse | 16260008 |
Annonsene kan være mangelfulle i forhold til lovpålagt opplysningsplikt. Før bindende avtale inngås oppfordres interessenter til å innhente komplett informasjon fra meglerforetaket, selger eller utleier.






































