Bildegalleri

Velkommen til Drolshammarveien 66! Foto v/ Michael Kozdras.
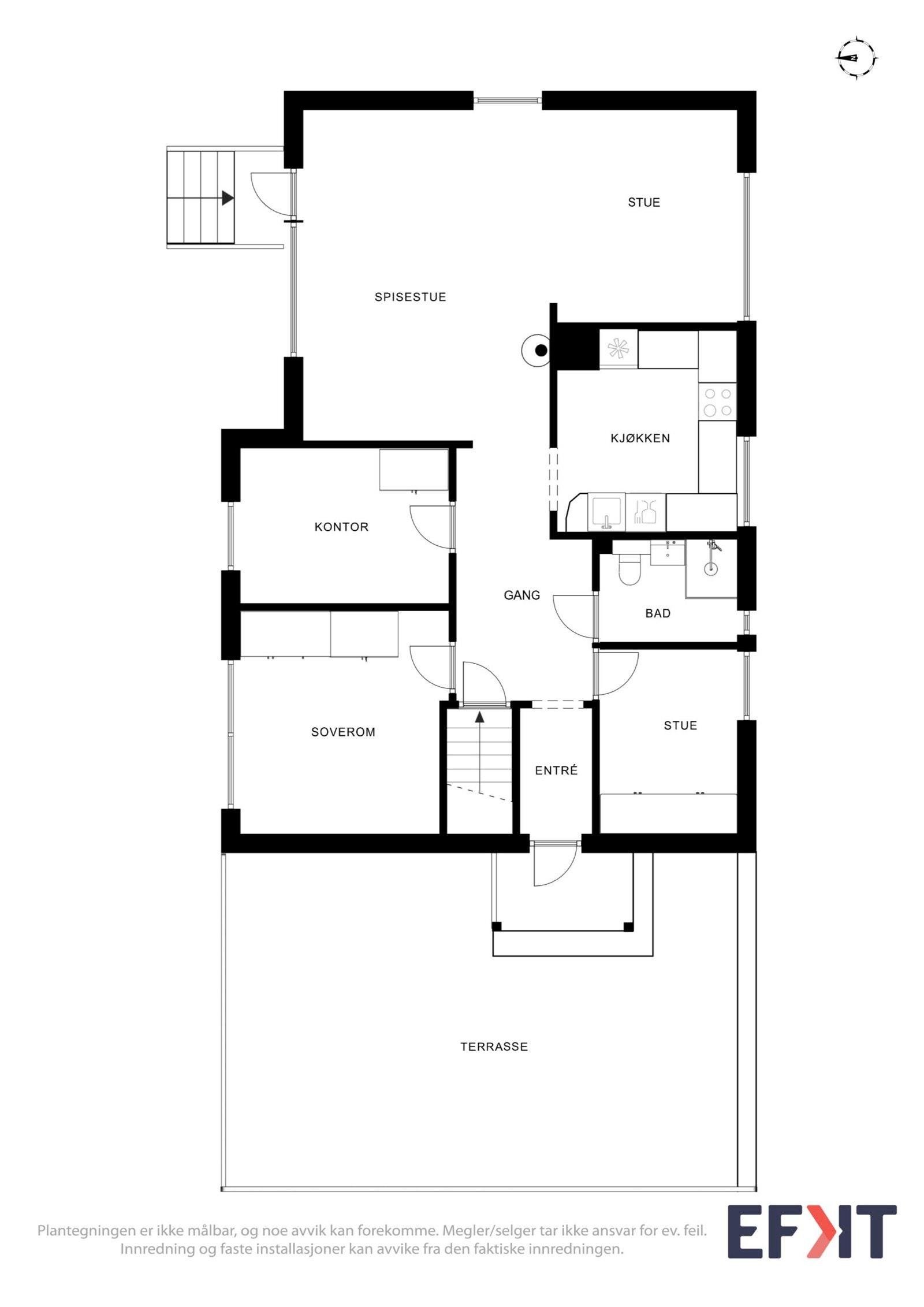
Ringerike - Pen og oppgradert enebolig m/ landlig beliggenhet - god planløsning - Nytt renseanlegg (2026)
Nøkkelinfo
- Boligtype
- Enebolig
- Eieform
- Eier (Selveier)
- Soverom
- 3
- Internt bruksareal
- 140 m² (BRA-i)
- Bruksareal
- 140 m²
- Balkong/Terrasse
- 40 m² (TBA)
- Byggeår
- 1965
- Energimerking
- F - Oransje
- Tomteareal
- 1 460 m² (eiet)
- Boligselgerforsikring
- Ja
Fasiliteter
Om boligen
Landlig og solrikt beliggende enebolig på Veme med nærhet til elven, badeplass og busstopp langs RV7. Boligen er oppført i 1965 og betydelig oppgradert i 2016-2018 med moderne kjøkken og bad, oppdaterte overflater, nytt el-anlegg, delvis nytt røropplegg, varmepumpe (2016) og peisovn som skaper lun atmosfære. De fleste vinduer og ytterdør i 1. etasje er skiftet (unntatt soverom). Nyere drenering, terrasse fra 2018 og nytt tak over inngangsparti. Nytt felles avløpsanlegg etablert 2025/26. Eier har dekket kostnader tilknyttet avløpsanlegget.
Eiendommen byr på rolige omgivelser, gode solforhold og flotte turmuligheter på Holleia rett i nærheten. Eiendommen ligger i et område som gir gode muligheter for et aktivt hverdags- og friluftsliv.
Velkommen til visning!
Salgsoppgaven beskriver vesentlig og lovpålagt informasjon om eiendommen
Se komplett salgsoppgaveNyttige lenker
Nærområdet
Brørby Eiendomsmegling AS
Annonseinformasjon
| FINN-kode | 451998484 |
|---|---|
| Sist endret | 28. feb. 2026 03:18 |
| Referanse | 27260002 |
Annonsene kan være mangelfulle i forhold til lovpålagt opplysningsplikt. Før bindende avtale inngås oppfordres interessenter til å innhente komplett informasjon fra meglerforetaket, selger eller utleier.











































