Bildegalleri

Nydelig lys hjørneleilighet med vinduer på 3 sider.
FORNEBU / KOKSA
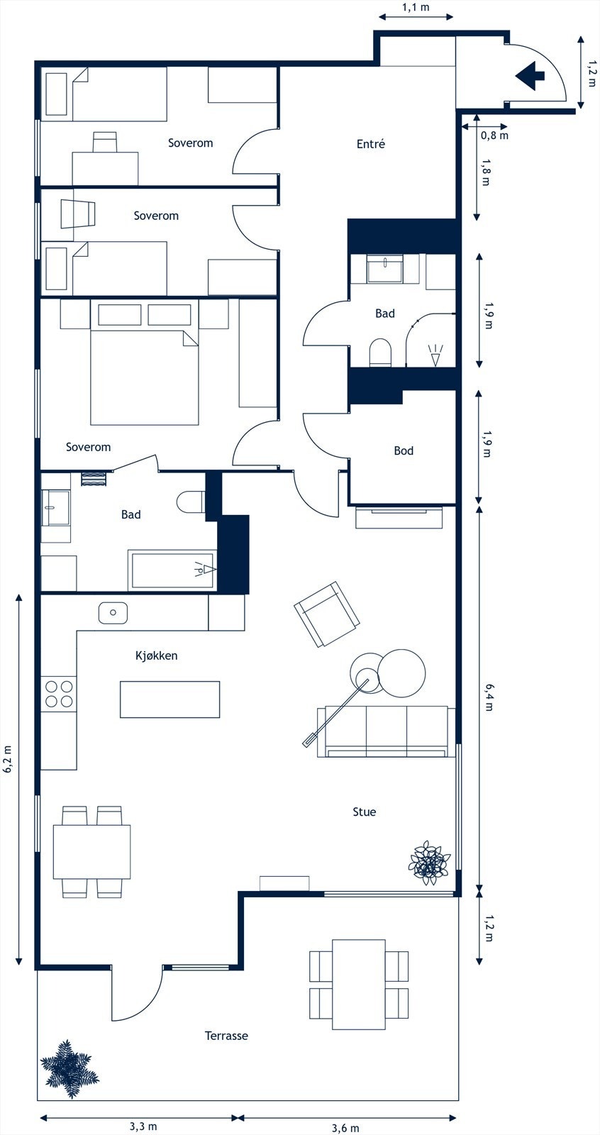
Lys lekker hjørneleilighet. Terrasse med fritt utsyn. 3 sov, 2 bad. Garasje, heis og trappefri adkomst. Vannbåren varme
Prisantydning11 550 000 kr
Nøkkelinfo
- Boligtype
- Leilighet
- Eieform
- Eier (Selveier)
- Soverom
- 3
- Internt bruksareal
- 102 m² (BRA-i)
- Bruksareal
- 107 m²
- Eksternt bruksareal
- 5 m² (BRA-e)
- Balkong/Terrasse
- 20 m² (TBA)
- Etasje
- 1
- Byggeår
- 2013
- Energimerking
- D - Rød
- Rom
- 4
- Tomteareal
- 14 312 m² (eiet)
Fasiliteter
Balkong/Terrasse
Barnevennlig
Garasje/P-plass
Heis
Kjæledyr tillatt
Offentlig vann/kloakk
Rolig
Sentralt
Turterreng
Balansert ventilasjon
Visning
søndag, 01. mars
14:30 – 15:15
mandag, 02. mars
17:30 – 18:15
Visningen har obligatorisk påmelding.
Kravet om påmelding har vi for å kunne gi deg og andre visningsdeltakere en best mulig opplevelse og service knyttet til gjennomføring av visningen. Velkommen!
VisningspåmeldingOm boligen
Moderne og gjennomført bolig på bakkeplan, med stilrene løsninger og høy kvalitet. Leiligheten har en hyggelig uteplass med utsyn mot friareal. Beliggenheten er upåklagelig med kort vei til servicefasiliteter, og Fornebu S kun et par minutters gange unna. Garasjeplass i felles anlegg, det følger med elbil lader. Leil. har 3 soverom og 2 bad. Bad i tilknytning til hovedsoverom m/badekar og opplegg for vaskemaskin, bad med dusj i tilknytning til entré. Enstavs parkett stue, kjøkken, gang og soverom, flislagt gulv i gang og på badene. Malte flater i freshe nyanser, og god takhøyde på ca. 2,49 m i stuen. Kjøkken og stuedelen har en god atmosfære og fin planløsning. Praktisk innvendig bod, samt bod på 5 kvm ved garasjeplassen. Heisadkomst til garasje og bod, trappefri adkomst inn i leiligheten.
NB: Knappen for å vise hele beskrivelsen har kun en visuell effekt.
NB: Knappen for å vise hele beskrivelsen har kun en visuell effekt.
Salgsoppgaven beskriver vesentlig og lovpålagt informasjon om eiendommen
Se komplett salgsoppgaveNærområdet
Sem & Johnsen
Boliger utenom det vanlige
Annonseinformasjon
| FINN-kode | 451996928 |
|---|---|
| Sist endret | 23. feb. 2026 12:30 |
| Referanse | 20-26-0302 |
Annonsene kan være mangelfulle i forhold til lovpålagt opplysningsplikt. Før bindende avtale inngås oppfordres interessenter til å innhente komplett informasjon fra meglerforetaket, selger eller utleier.



































