Bildegalleri

Nordvik v/ Ida Michelle Vatne presenterer Nye Stenkleivvei 31 - En sjarmerende og innholdsrik familiebolig med gjennomgående god standard og fin planløsning. Foto: FokusFoto
Stenkleiv / Moltemyr
Innholdsrik familiebolig- Stor og solrik tomt - Pent opparbeidet plen og uteområde - Sentralt - Dbl. garasje med loft
Prisantydning3 290 000 kr
Nøkkelinfo
- Boligtype
- Enebolig
- Eieform
- Eier (Selveier)
- Soverom
- 3
- Internt bruksareal
- 163 m² (BRA-i)
- Bruksareal
- 223 m²
- Eksternt bruksareal
- 60 m² (BRA-e)
- Balkong/Terrasse
- 14 m² (TBA)
- Etasje
- 2
- Byggeår
- 1964
- Energimerking
- G - Rød
- Rom
- 4
- Tomteareal
- 957 m² (eiet)
Fasiliteter
Balkong/Terrasse
Barnevennlig
Garasje/P-plass
Hage
Kjæledyr tillatt
Offentlig vann/kloakk
Peis/Ildsted
Rolig
Sentralt
Om boligen
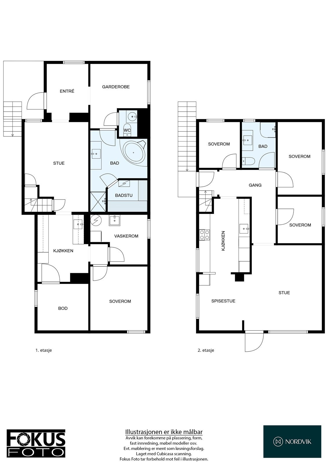
Nordvik v/ Ida M. Vatne har gleden av å presentere Nye Stenkleivvei 31- En meget innholdsrik og attraktiv bolig over to plan med glimrende planløsning.
Boligen ligger i et rolig og trygt nabolag med kort vei til skole, butikk og gode bussforbindelser. Her får du en stor og solrik tomt med pent opparbeidet plen og uteplass, samt en romslig terrasse med direkte utgang fra stuen. Asfaltert gårdsplass med god plass til flere biler og dobbel garasje med innredet loft og veranda- perfekt til lagring eller ungdommen. Kjøkkenet ble oppgradert i 2021 med integrert komfyr, platetopp og vinskap.
Boligen ligger i et rolig og trygt nabolag med kort vei til skole, butikk og gode bussforbindelser. Her får du en stor og solrik tomt med pent opparbeidet plen og uteplass, samt en romslig terrasse med direkte utgang fra stuen. Asfaltert gårdsplass med god plass til flere biler og dobbel garasje med innredet loft og veranda- perfekt til lagring eller ungdommen. Kjøkkenet ble oppgradert i 2021 med integrert komfyr, platetopp og vinskap.
- Dobbel garasje med innredet loft
- Gode kollektivforbindelser
- Pent opparbeidet uteareal
- Varmepumpe x2 og peis
- Solrik hage og uteplass
- Sentral beliggenhet
- Barnevennlig
NB: Knappen for å vise hele beskrivelsen har kun en visuell effekt.
NB: Knappen for å vise hele beskrivelsen har kun en visuell effekt.
Salgsoppgaven beskriver vesentlig og lovpålagt informasjon om eiendommen
Se komplett salgsoppgaveNyttige lenker
Nærområdet
Nordvik Arendal
Vi vet hva det er verdt
Annonseinformasjon
| FINN-kode | 451978720 |
|---|---|
| Sist endret | 20. feb. 2026 19:33 |
| Referanse | 39-0011/26 |
Annonsene kan være mangelfulle i forhold til lovpålagt opplysningsplikt. Før bindende avtale inngås oppfordres interessenter til å innhente komplett informasjon fra meglerforetaket, selger eller utleier.






































