Bildegalleri

Foto: Joakim Bjerk. EiendomsMegler1 v/Torill Kalsaas presenterer Kvernhusberget 5D
BUD FORELIGGER
Påkostet og delikat leilighet med fleksibel planløsning - Flott utsikt og solrike uteplasser -Carport m/elbillader
Prisantydning3 950 000 kr
Nøkkelinfo
- Boligtype
- Leilighet
- Eieform
- Eier (Selveier)
- Soverom
- 2
- Internt bruksareal
- 86 m² (BRA-i)
- Bruksareal
- 91 m²
- Eksternt bruksareal
- 5 m² (BRA-e)
- Balkong/Terrasse
- 6 m² (TBA)
- Etasje
- 2
- Byggeår
- 2011
- Energimerking
- C
- Rom
- 3
- Tomteareal
- 2 167 m² (eiet)
Fasiliteter
Balkong/Terrasse
Barnevennlig
Bredbåndstilknytning
Garasje/P-plass
Kjæledyr tillatt
Offentlig vann/kloakk
Rolig
Sentralt
Utsikt
Turterreng
Lademulighet
Balansert ventilasjon
Visning
Ønsker du å delta på visningen ber vi deg melde deg på slik at vi vet at du kommer. Da kan vi bistå alle best mulig og gi deg tiden du trenger på visningen. Kontakt gjerne megler før visning hvis du har spørsmål. Visningen avholdes bare dersom det er påmeldte. Hvis det ikke er oppsatt visningstidspunkt eller tidspunkt ikke passer, kontakt megler.
VisningspåmeldingOm boligen
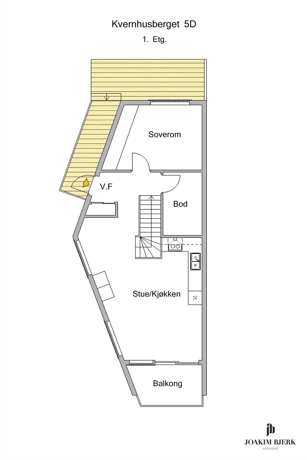
En skikkelig flott leilighet over to plan der man får "rekkehusfølelsen." Leiligheten er oppgradert med flott enstavs tregulv og lekkert fargevalg på veggene. Pent kjøkken med integrerte hvitevarer, kjøkkenøy og nye fronter. Bad med nye baderomsmøbler. Med ekstra takhøyde og store vinduer får man en herlig romfølelse i boligen. Her er det enkelt å trives! Boligen kan passe flere ulike kjøpere i forskjellige livssituasjoner. Mulighet for å lage et ekstra rom i 2.etg. Tilrettelagt for installering av vask og wc på vaskerom i 1.etg.
Innhold:
1. etasje: Stue/kjøkken, vaskerom, soverom.
2. etasje: Gang, bad, soverom og tv-stue.
Carport med bod og elbil lader.
Eiendommen ligger sentralt, med kort vei til skole og barnehager. Flere butikker og treningssenter i gangavstand.
Innhold:
1. etasje: Stue/kjøkken, vaskerom, soverom.
2. etasje: Gang, bad, soverom og tv-stue.
Carport med bod og elbil lader.
Eiendommen ligger sentralt, med kort vei til skole og barnehager. Flere butikker og treningssenter i gangavstand.
NB: Knappen for å vise hele beskrivelsen har kun en visuell effekt.
NB: Knappen for å vise hele beskrivelsen har kun en visuell effekt.
Salgsoppgaven beskriver vesentlig og lovpålagt informasjon om eiendommen
Se komplett salgsoppgaveNyttige lenker
Nærområdet
EiendomsMegler 1 Gjesdal
Vi er der du er - EiendomsMegler 1
Annonseinformasjon
| FINN-kode | 451967697 |
|---|---|
| Sist endret | 03. mars 2026 15:04 |
| Referanse | 2402260029 |
Annonsene kan være mangelfulle i forhold til lovpålagt opplysningsplikt. Før bindende avtale inngås oppfordres interessenter til å innhente komplett informasjon fra meglerforetaket, selger eller utleier.


































