Bildegalleri

Krogsveen v/ Anders Brodshaug Berger presenter Bjørgegutua 4 - Foto: Flytende Film AS (Thor Øyvind Borgersen) (Illustrasjonsbilde)
Mogreina
Tiltalende og pen enebolig over ett plan med 3 soverom | Solrik veranda på 31 kvm | Rolig og tilbaketrukket
Prisantydning4 000 000 kr
Nøkkelinfo
- Boligtype
- Enebolig
- Eieform
- Eier (Selveier)
- Soverom
- 3
- Internt bruksareal
- 92 m² (BRA-i)
- Bruksareal
- 92 m²
- Balkong/Terrasse
- 32 m² (TBA)
- Etasje
- 1
- Byggeår
- 1980
- Energimerking
- D - Gul
- Rom
- 4
- Tomteareal
- 964 m² (eiet)
Fasiliteter
Balkong/Terrasse
Barnevennlig
Hage
Kjæledyr tillatt
Offentlig vann/kloakk
Rolig
Om boligen
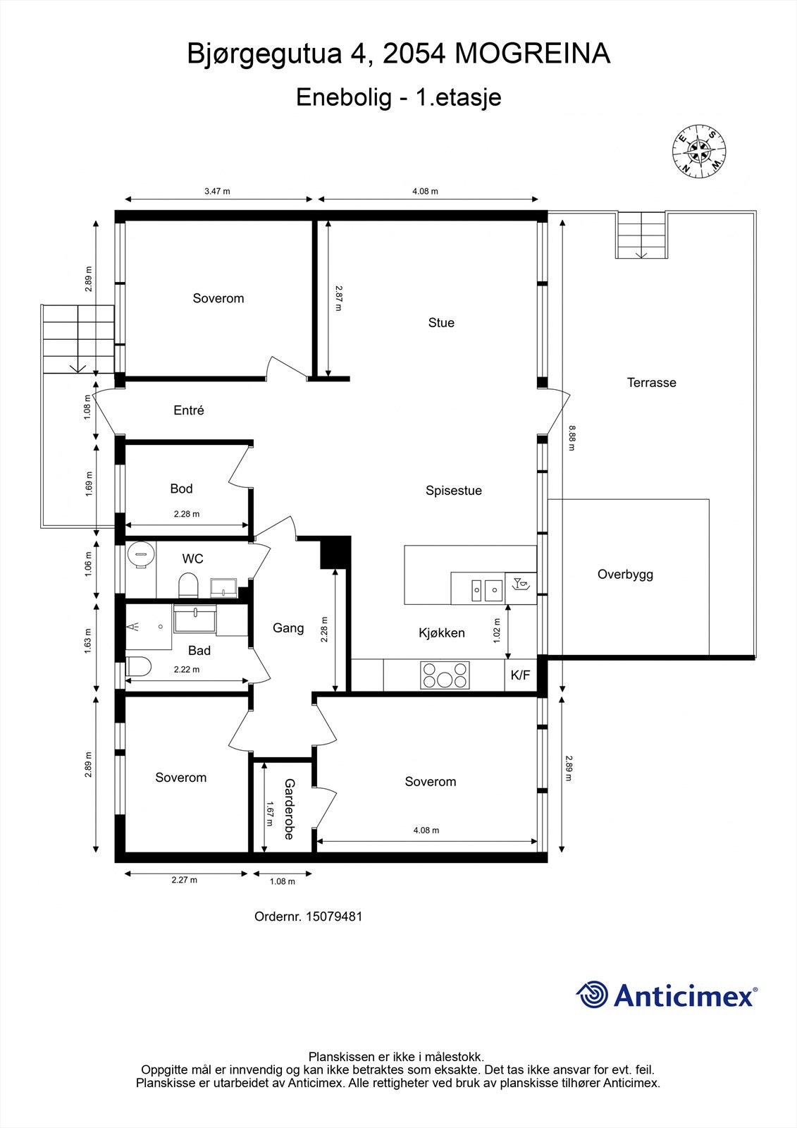
Bjørgegutua 4 er en tiltalende og luftig enebolig beliggende i et barnevennlig, rolig og etablert boområde på Mogreina i Ullensaker kommune. Boligen går over ett plan og har en gjennomgående god planløsning.
Boligen rommer entré, romslig stue og kjøkken i åpen løsning, flislagt bad med varmekabler, praktisk toalett-rom og 3 gode soverom. Bod og garderobe byr på ekstra lagringsplass. Fra stuen er det utgang til fantastisk sydvestvendt veranda på ca 32 kvm med trapp ned til hage. Tomten er pent opparbeidet med flere biloppstillingsplasser, plenarealer og diverse beplantinger.
Boligen ligger kort vei unna skoler og barnehager, matbutikk, Oslo Lufthavn og E6. Skog og mark er rett utenfor døra og mange gode turmuligheter!
Velkommen til visning.
Boligen rommer entré, romslig stue og kjøkken i åpen løsning, flislagt bad med varmekabler, praktisk toalett-rom og 3 gode soverom. Bod og garderobe byr på ekstra lagringsplass. Fra stuen er det utgang til fantastisk sydvestvendt veranda på ca 32 kvm med trapp ned til hage. Tomten er pent opparbeidet med flere biloppstillingsplasser, plenarealer og diverse beplantinger.
Boligen ligger kort vei unna skoler og barnehager, matbutikk, Oslo Lufthavn og E6. Skog og mark er rett utenfor døra og mange gode turmuligheter!
Velkommen til visning.
NB: Knappen for å vise hele beskrivelsen har kun en visuell effekt.
NB: Knappen for å vise hele beskrivelsen har kun en visuell effekt.
Salgsoppgaven beskriver vesentlig og lovpålagt informasjon om eiendommen
Se komplett salgsoppgaveNyttige lenker
Nærområdet
Krogsveen Jessheim
Verdien av en god megler.
Annonseinformasjon
| FINN-kode | 451950829 |
|---|---|
| Sist endret | 02. mars 2026 10:12 |
| Referanse | KR63.2626 |
Annonsene kan være mangelfulle i forhold til lovpålagt opplysningsplikt. Før bindende avtale inngås oppfordres interessenter til å innhente komplett informasjon fra meglerforetaket, selger eller utleier.


































