Bildegalleri

Fra stuen har du utgang til en overbygget terrasse.
Gjekstad
Innholdsrik nyoppført tomannsbolig - Attraktiv beliggenhet - Byliv og sjø - 3 sov - 2 bad - Perfekt for barnefamilier!
Prisantydning2 230 000 kr
Nøkkelinfo
- Boligtype
- Tomannsbolig
- Eieform
- Andel
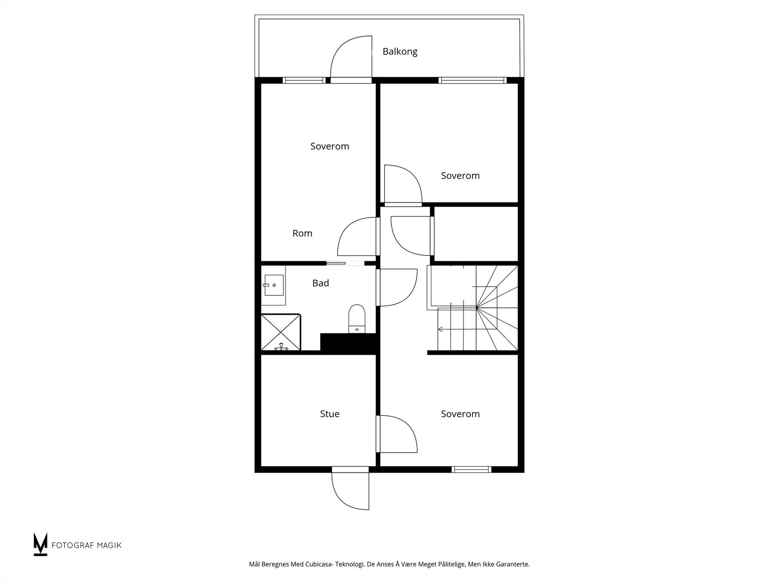
- Soverom
- 3
- Internt bruksareal
- 107 m² (BRA-i)
- Bruksareal
- 113 m²
- Eksternt bruksareal
- 6 m² (BRA-e)
- Balkong/Terrasse
- 26 m² (TBA)
- Etasje
- 2
- Byggeår
- 2023
- Energimerking
- B - Rød
- Rom
- 4
- Tomteareal
- 5 586 m² (eiet)
Fasiliteter
Balkong/Terrasse
Bredbåndstilknytning
Hage
Rolig
Utsikt
Turterreng
Balansert ventilasjon
Visning
mandag, 02. mars
16:30 – 17:30
For å delta på visning, ber vi om at du melder deg på. Da sikrer vi at du får nødvendig informasjon og at det er satt av tilstrekkelig med tid. Kontakt megler dersom annet tidspunkt ønskes. Husk å lese salgsoppgaven før visningen, så du stiller forberedt. NB. Visning utgår dersom det ikke er noen påmeldte.
Ønsker du kun å bli holdt orientert, kan du fra eiendommens hjemmeside få varsel om solgtpris, eller kontakte megler.
VisningspåmeldingOm boligen
Velkommen til en moderne, nyoppført og lys bolig med en praktisk planløsning perfekt for barnefamilier.
Boligen er bygget etter TEK-17 og har naturlige soner med luftige rom som skaper en behagelig flyt. Stuen gir flotte møbleringsmuligheter, med åpen løsning mot et stilrent kjøkken og god plass til større spisebord perfekt for både hverdagsliv og selskap.
Fra stuen er det utgang til en terrasse med usjenert uteplass og en koselig hageflekk, ideell for lek, avslapning og sosiale stunder. Boligen har også to elegante bad og eget vaskerom, som gjør hverdagen enkel og praktisk.
Beliggenheten er svært barnevennlig, med trygge gang- og sykkelveier til sjø, strender, turstier, skole og fritidsaktiviteter. Området har gode kollektiv muligheter som gjør pendling svært enkelt.
Boligen er bygget etter TEK-17 og har naturlige soner med luftige rom som skaper en behagelig flyt. Stuen gir flotte møbleringsmuligheter, med åpen løsning mot et stilrent kjøkken og god plass til større spisebord perfekt for både hverdagsliv og selskap.
Fra stuen er det utgang til en terrasse med usjenert uteplass og en koselig hageflekk, ideell for lek, avslapning og sosiale stunder. Boligen har også to elegante bad og eget vaskerom, som gjør hverdagen enkel og praktisk.
Beliggenheten er svært barnevennlig, med trygge gang- og sykkelveier til sjø, strender, turstier, skole og fritidsaktiviteter. Området har gode kollektiv muligheter som gjør pendling svært enkelt.
NB: Knappen for å vise hele beskrivelsen har kun en visuell effekt.
NB: Knappen for å vise hele beskrivelsen har kun en visuell effekt.
Salgsoppgaven beskriver vesentlig og lovpålagt informasjon om eiendommen
Se komplett salgsoppgaveNyttige lenker
Nærområdet
Krogsveen Sandefjord
Verdien av en god megler.
Annonseinformasjon
| FINN-kode | 451950100 |
|---|---|
| Sist endret | 24. feb. 2026 07:37 |
| Referanse | KR22.25475 |
Annonsene kan være mangelfulle i forhold til lovpålagt opplysningsplikt. Før bindende avtale inngås oppfordres interessenter til å innhente komplett informasjon fra meglerforetaket, selger eller utleier.






























