Bildegalleri

Velkommen til Lindbäckveien 49B - Pent og innholdsrikt rekkehus | Solrikt | Terrasser og hage | Parkering | Barnevennlig
Nordstrand
Pent og innholdsrikt rekkehus | Solrikt | Terrasser og hage | Parkering | Barnevennlig
Prisantydning10 200 000 kr
Nøkkelinfo
- Boligtype
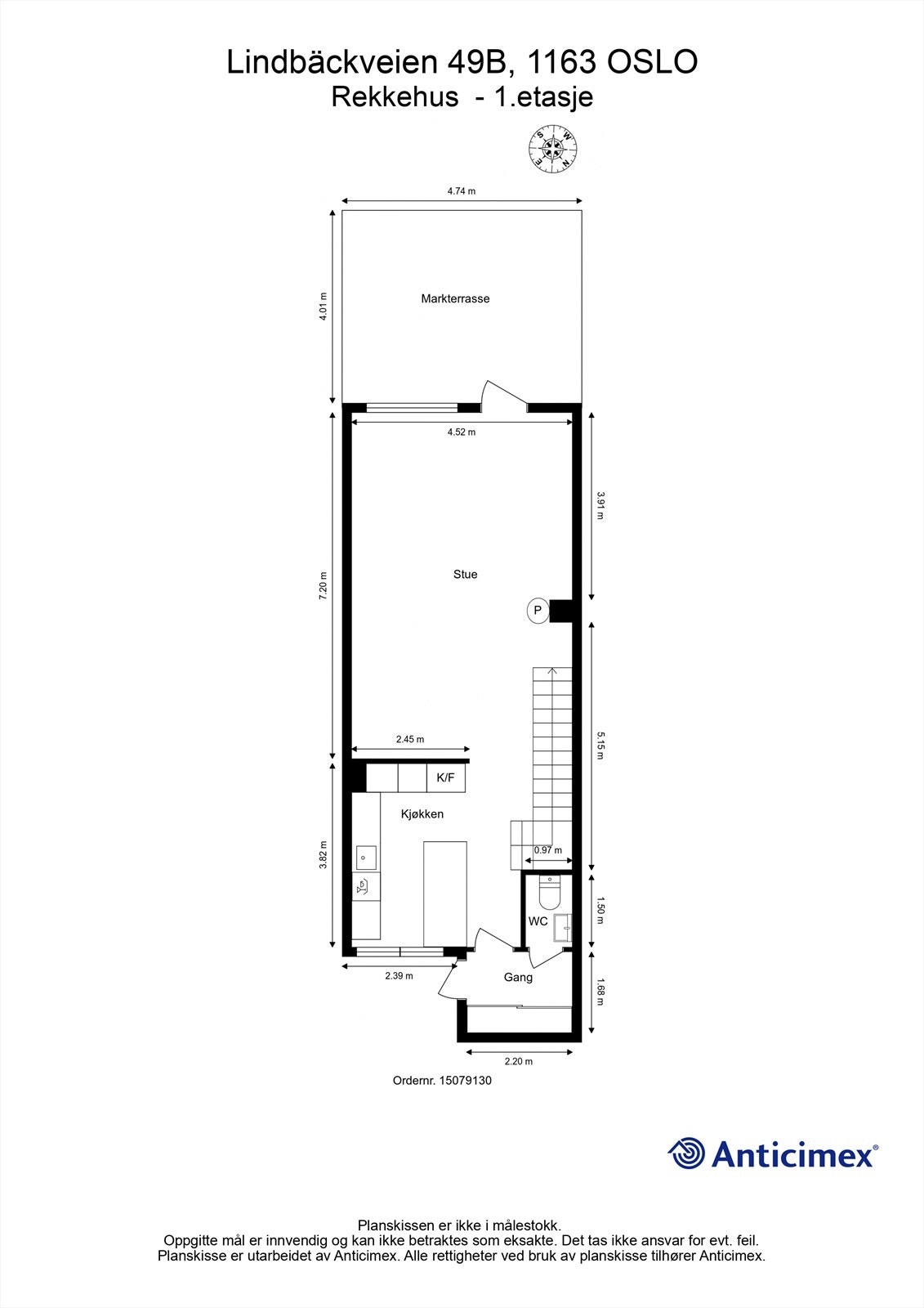
- Rekkehus
- Eieform
- Eier (Selveier)
- Soverom
- 3
- Internt bruksareal
- 120 m² (BRA-i)
- Bruksareal
- 125 m²
- Eksternt bruksareal
- 5 m² (BRA-e)
- Balkong/Terrasse
- 41 m² (TBA)
- Byggeår
- 1983
- Tomteareal
- 141 m² (eiet)
Fasiliteter
Balkong/Terrasse
Barnevennlig
Bredbåndstilknytning
Garasje/P-plass
Hage
Kjæledyr tillatt
Kabel-TV
Offentlig vann/kloakk
Parkett
Peis/Ildsted
Rolig
Lademulighet
Visning
torsdag, 26. februar
17:00 – 18:00
For å delta på visning, ber vi om at du melder deg på. Da sikrer vi at du får nødvendig informasjon og at det er satt av tilstrekkelig med tid. Kontakt megler dersom annet tidspunkt ønskes. Husk å lese salgsoppgaven før visningen, så du stiller forberedt.
Ønsker du kun å bli holdt orientert, kan du fra eiendommens hjemmeside få varsel om solgtpris, eller kontakte megler.
VisningspåmeldingOm boligen
Velkommen til Lindbäckveien 49B, et solrikt og pent rekkehus
- Lys og pen bolig
- Innholdsrik og god planløsning
- Nytt flott kjøkken fra Sigdal i 2025
- Gulvvarme i hele 1. etasje
- Peisovn
- Sydvestvendt terrasse og hage
- Terrasse også ved inngangspartiet
- Praktisk frittstående sportsbod
- Parkeringsplass med elbillader
- God intern beliggenhet
- Barnevennlig i bilfritt bomiljø
- Bilfri skolevei til Nordseter skole
- Få minutter til kollektivtransport
- Kort vei til servicetilbud på Sæter
NB: Knappen for å vise hele beskrivelsen har kun en visuell effekt.
NB: Knappen for å vise hele beskrivelsen har kun en visuell effekt.
Salgsoppgaven beskriver vesentlig og lovpålagt informasjon om eiendommen
Se komplett salgsoppgaveNyttige lenker
Nærområdet
Krogsveen Nordstrand
Verdien av en god megler.
Annonseinformasjon
| FINN-kode | 451940014 |
|---|---|
| Sist endret | 21. feb. 2026 12:47 |
| Referanse | KR44.2623 |
Annonsene kan være mangelfulle i forhold til lovpålagt opplysningsplikt. Før bindende avtale inngås oppfordres interessenter til å innhente komplett informasjon fra meglerforetaket, selger eller utleier.






















































