Bildegalleri

DNB Eiendom v/ Joachim Vågen tlf. 91712768 ønsker deg Øgardsvegen 37!
Fossen
Innholdsrik enebolig med hybel-leilighet | Peis | Fine uteplasser | Carport | Kort vei til skole, barnehage og sentrum
Prisantydning2 500 000 kr
Nøkkelinfo
- Boligtype
- Enebolig
- Eieform
- Eier (Selveier)
- Soverom
- 4
- Internt bruksareal
- 179 m² (BRA-i)
- Bruksareal
- 179 m²
- Balkong/Terrasse
- 50 m² (TBA)
- Etasje
- 2
- Byggeår
- 1975
- Energimerking
- E - Oransje
- Tomteareal
- 883 m² (eiet)
Fasiliteter
Balkong/Terrasse
Barnevennlig
Garasje/P-plass
Hage
Offentlig vann/kloakk
Parkett
Peis/Ildsted
Rolig
Sentralt
Utsikt
Visning
torsdag, 05. mars
16:30 – 17:30
Våre visninger har påmelding. Dette gjør vi for å kunne yte bedre service for våre kunder. Verdifullt for boligkjøper og for oss. Vi anbefaler at salgsoppgaven leses før visning, og ring oss gjerne på forhånd for spørsmål om boligen. Passer ikke angitt tidspunkt, ta kontakt så finner vi en løsning. Skulle det mot formodning ikke være påmeldte 4 timer før angitt visningstidspunkt vil ikke visning bli gjennomført.
VisningspåmeldingOm boligen
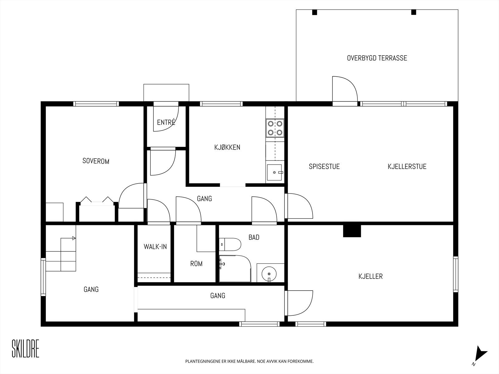
Velkommen til Øgardsvegen 37 - En innholdsrik enebolig med hybel-leilighet i underetasjen, beliggende i et veletablert boligområde på Fossen i Moelv. Eiendommen har en sydvendt beliggenhet med utsikt og gode solforhold. Hoveddelen av boligen inneholder blant annet 3 soverom, bad, kjøkken og stue. Leiligheten i underetasjen har ett soverom, kjøkken, stue, bad og 2 boder.
Eiendommen har en rekke gode kvaliteter og vi ønsker å trekke frem:
Eiendommen har en rekke gode kvaliteter og vi ønsker å trekke frem:
- Stor stue med tilliggende spisestue og kjøkken
- Parkering i carport og gårdsplass
- Rikelig med bod/lagringsplass
- 3 soverom i hoveddel
- Hybel-leilighet i underetasjen
- Gåavstand til barnehage og skole
- Flotte uteplasser med nyere platting og terrasse
- Sydvendt beliggenhet med utsikt og gode solforhold
NB: Knappen for å vise hele beskrivelsen har kun en visuell effekt.
NB: Knappen for å vise hele beskrivelsen har kun en visuell effekt.
Salgsoppgaven beskriver vesentlig og lovpålagt informasjon om eiendommen
Se komplett salgsoppgaveNyttige lenker
Nærområdet
DNB Eiendom AS
Verdifulle salg
Annonseinformasjon
| FINN-kode | 451936692 |
|---|---|
| Sist endret | 24. feb. 2026 09:36 |
| Referanse | 517260006 |
Annonsene kan være mangelfulle i forhold til lovpålagt opplysningsplikt. Før bindende avtale inngås oppfordres interessenter til å innhente komplett informasjon fra meglerforetaket, selger eller utleier.










































