Bildegalleri

Lys og romslig 2-roms seniorleilighet (65+) med flotte servicetilbud. Fotograf: Zovenfra
Bekkestua / Ringhøyden
Lys & romslig 2-roms seniorleilighet (65+) i 4. etasje med flotte servicetilbud|Heis |Garasje|2 boder|Felles terrasse
Prisantydning4 950 000 kr
Nøkkelinfo
- Boligtype
- Leilighet
- Eieform
- Eier (Selveier)
- Soverom
- 1
- Internt bruksareal
- 50 m² (BRA-i)
- Bruksareal
- 59 m²
- Eksternt bruksareal
- 9 m² (BRA-e)
- Etasje
- 4
- Byggeår
- 1936
- Energimerking
- C - Lysegrønn
- Rom
- 2
- Tomteareal
- 3 860 m² (eiet)
Fasiliteter
Bredbåndstilknytning
Garasje/P-plass
Heis
Ingen gjenboere
Offentlig vann/kloakk
Parkett
Rolig
Utsikt
Vaktmester-/vektertjeneste
Turterreng
Balansert ventilasjon
Visning
For å delta på visning, ber vi om at du melder deg på. Da sikrer vi at du får nødvendig informasjon og at det er satt av tilstrekkelig med tid. Kontakt megler dersom annet tidspunkt ønskes. Husk å lese salgsoppgaven før visningen, så du stiller forberedt.
Ønsker du kun å bli holdt orientert, kan du fra eiendommens hjemmeside få varsel om solgtpris, eller kontakte megler.
VisningspåmeldingOm boligen
Eiendomsmegler Fredrik Nordstrøm ved Krogsveen Bærum har gleden av å ønske velkommen til Gamle Ringeriksvei 21C, og en flott 2-roms seniorleilighet (65+) beliggende høyt og sentralt på Bekkestua. Boligen ligger i et unikt og spennende bygg med mye historie og med seniorsenter i samme bygg som tilbyr en rekke aktiviteter, kurs, foredrag og mat fra eget kjøkken gir det gode muligheter for deg som ønsker en trygg og litt enklere hverdag.
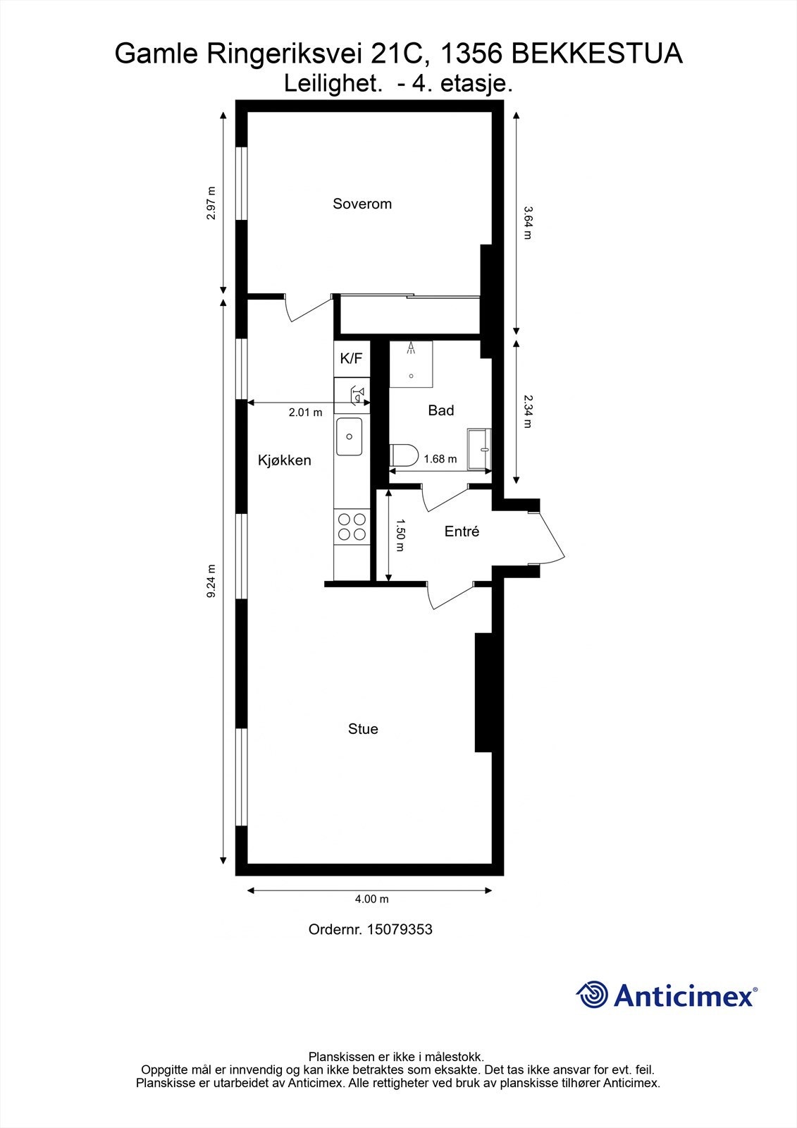
Leiligheten ligger i byggets 4. etasje og har en flott planløsning bestående av entré, bad, soverom, kjøkken og stue . Leiligheten har også to romslige boder (loft og kjeller) med god lagringsplass, samt garasjeplass i felles garasjeanlegg.
Leiligheten ligger i byggets 4. etasje og har en flott planløsning bestående av entré, bad, soverom, kjøkken og stue . Leiligheten har også to romslige boder (loft og kjeller) med god lagringsplass, samt garasjeplass i felles garasjeanlegg.
NB: Knappen for å vise hele beskrivelsen har kun en visuell effekt.
NB: Knappen for å vise hele beskrivelsen har kun en visuell effekt.
Salgsoppgaven beskriver vesentlig og lovpålagt informasjon om eiendommen
Se komplett salgsoppgaveNyttige lenker
Nærområdet
Krogsveen Bærum
Verdien av en god megler.
Annonseinformasjon
| FINN-kode | 451919009 |
|---|---|
| Sist endret | 26. feb. 2026 10:50 |
| Referanse | KR10.2651 |
Annonsene kan være mangelfulle i forhold til lovpålagt opplysningsplikt. Før bindende avtale inngås oppfordres interessenter til å innhente komplett informasjon fra meglerforetaket, selger eller utleier.







































