Bildegalleri

- EiendomsMegler 1 v/Sondre Jakobsen ønsker hjertelig velkommen til denne flotte eneboligen på Åsby!
Åsby
Romslig familiebolig med godkjent utleiedel | Garasje | Gode solforhold | Pent oppgradert | Nytt tak 2025
Prisantydning4 900 000 kr
Nøkkelinfo
- Boligtype
- Enebolig
- Eieform
- Eier (Selveier)
- Soverom
- 4
- Internt bruksareal
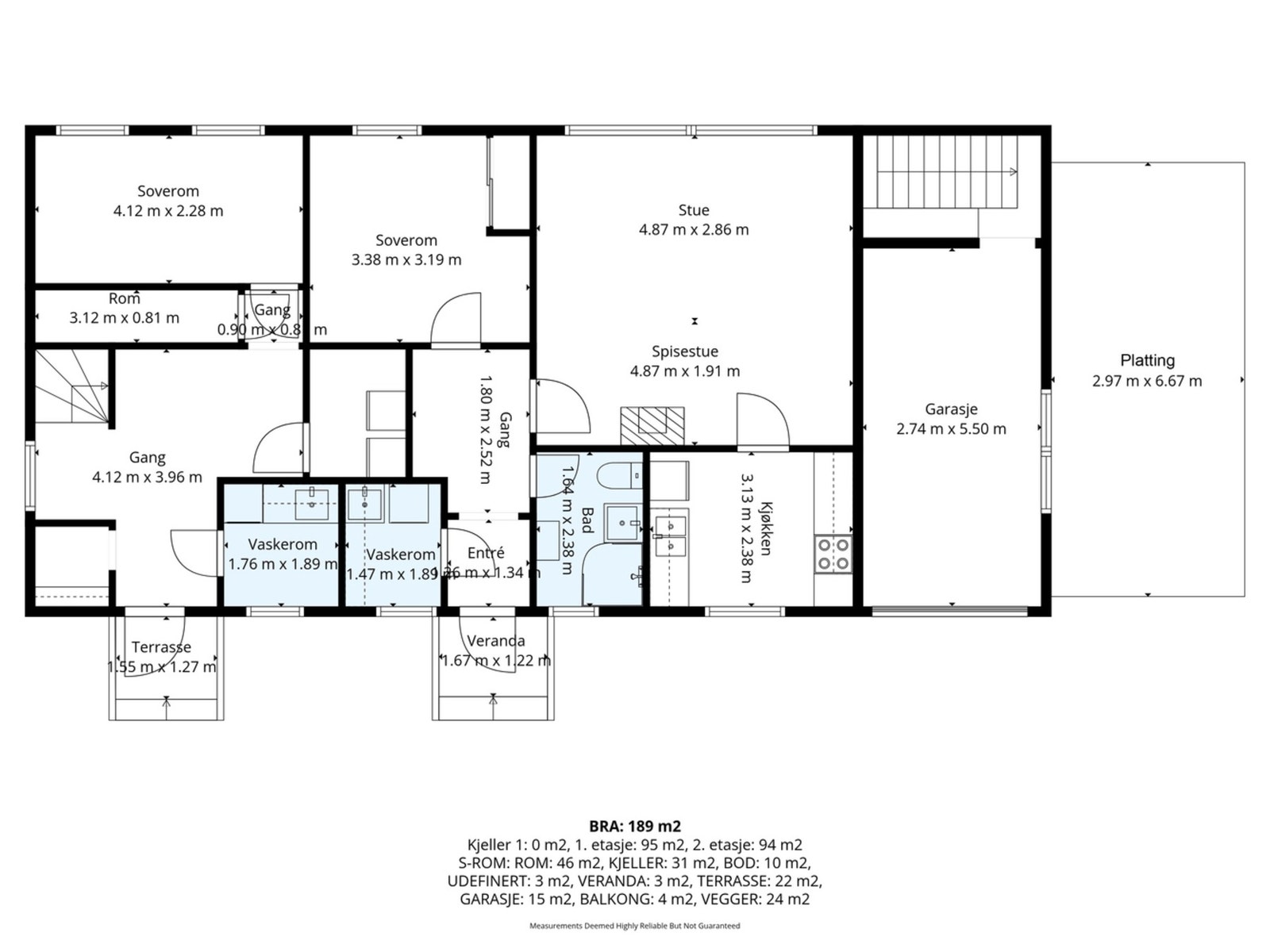
- 187 m² (BRA-i)
- Bruksareal
- 284 m²
- Eksternt bruksareal
- 97 m² (BRA-e)
- Balkong/Terrasse
- 26 m² (TBA)
- Byggeår
- 1972
- Energimerking
- D - Gul
- Tomteareal
- 1 016 m² (eiet)
Fasiliteter
Barnevennlig
Balkong/Terrasse
Garasje/P-plass
Offentlig vann/kloakk
Peis/Ildsted
Turterreng
Utsikt
Visning
mandag, 02. mars
17:00 – 18:00
Alle våre visninger har påmelding. Dette for at vi kan planlegge visningene best mulig, og ha god tid til de som kommer. Det er enkelt å melde seg på, og du kan like enkelt melde deg av. Visninger uten påmeldte deltakere kan bli avlyst.
Om boligen
EiendomsMegler 1 v/Sondre Jakobsen ønsker hjertelig velkommen til en romslig og flott enebolig med godkjent utleiedel på Åsby. Området byr på gangavstand til dagligvarehandel, Kanebogen skole, Byggeklossen barnehage og fine turstier opp til Gangsåstoppen.
Grunner til å møte opp på visning.
Grunner til å møte opp på visning.
- Stor varmepumpe fra Daikin montert i 2023 i hoveddel og zaptec elbillader
- Attraktiv beliggenhet i et stille og rolig område med gode solforhold
- Det er egen inngang i 1. etasje til leilighet innredet med vindfang , gang , stue , kjøkken , bad ,soverom + bod. Utleiedelen er per i dag utleid for kr 8000,- pr mnd
- Hoveddelen i huset er pent oppusset med moderne overflater, nyere kjøkken og et pent bad,
- 3 soverom i hoveddel som gjør at boligen passer til barnefamilier
- Nytt vann og avløp fra kommunal stikkledning 2023
Ønsker dere hertelig velkommen til denne flotte eneboligen med attraktiv beliggenhet på Åsby!
NB: Knappen for å vise hele beskrivelsen har kun en visuell effekt.
NB: Knappen for å vise hele beskrivelsen har kun en visuell effekt.
Salgsoppgaven beskriver vesentlig og lovpålagt informasjon om eiendommen
Se komplett salgsoppgaveNyttige lenker
Nærområdet
EiendomsMegler 1 Harstad
Vi loser deg trygt gjennom hele boligsalget
Annonsene kan være mangelfulle i forhold til lovpålagt opplysningsplikt. Før bindende avtale inngås oppfordres interessenter til å innhente komplett informasjon fra meglerforetaket, selger eller utleier.






























