Bildegalleri

Velkommen til Hesselbergs Gate 8A! Presentert av Halvor L. Heikkilä ved Krogsveen Majorstuen og Oslo Vest (Foto av Cool Pics AS)
Grünerløkka
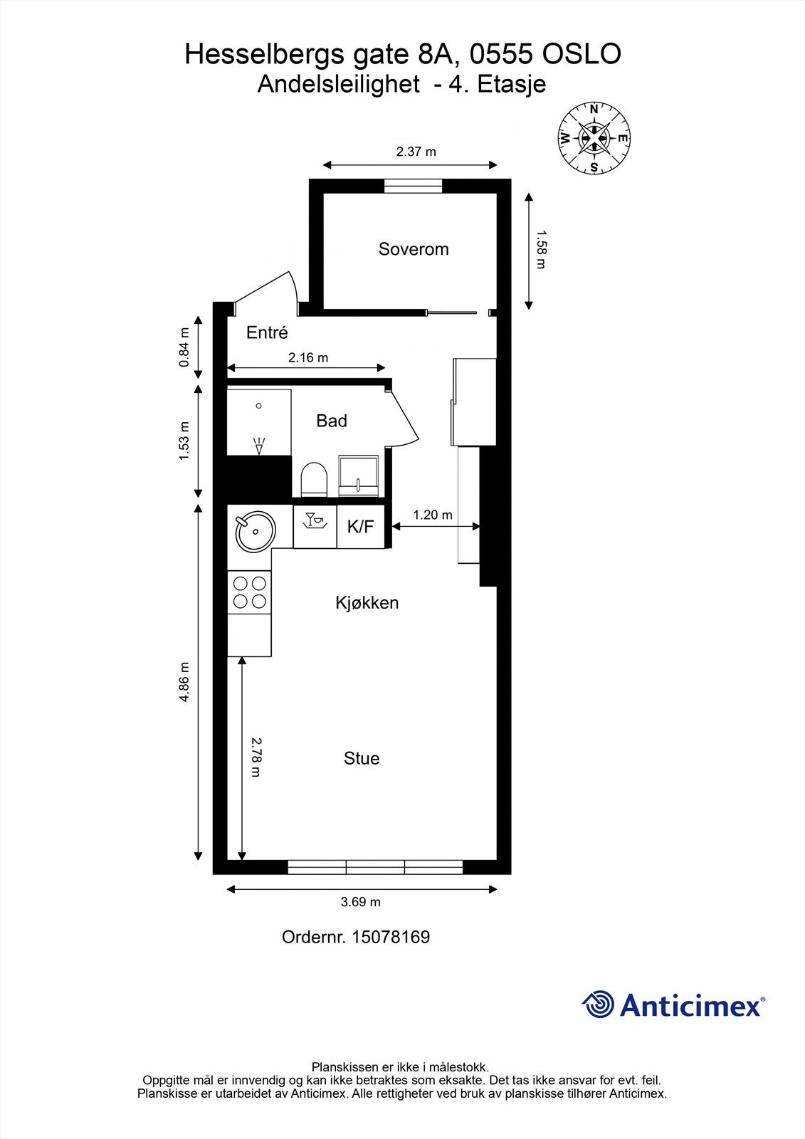
Lys og gjennomgående 2-roms toppleilighet med attraktiv beliggenhet på Grünerløkka. Stille og sentralt. Åpen planløsning
Prisantydning3 800 000 kr
Nøkkelinfo
- Boligtype
- Leilighet
- Eieform
- Andel
- Soverom
- 1
- Internt bruksareal
- 31 m² (BRA-i)
- Bruksareal
- 34 m²
- Eksternt bruksareal
- 3 m² (BRA-e)
- Etasje
- 4
- Byggeår
- 1898
- Energimerking
- G - Rød
- Rom
- 2
- Tomteareal
- 813 m² (eiet)
Fasiliteter
Bredbåndstilknytning
Fellesvaskeri
Kjæledyr tillatt
Offentlig vann/kloakk
Parkett
Rolig
Sentralt
Visning
mandag, 02. mars
17:00 – 17:45
tirsdag, 03. mars
16:00 – 16:45
For å delta på visning, ber vi om at du melder deg på. Da sikrer vi at du får nødvendig informasjon og at det er satt av tilstrekkelig med tid. Kontakt megler dersom annet tidspunkt ønskes. Husk å lese salgsoppgaven før visningen, så du stiller forberedt.
Ønsker du kun å bli holdt orientert, kan du fra eiendommens hjemmeside få varsel om solgtpris, eller kontakte megler.
VisningspåmeldingOm boligen
Velkommen til Hesselbergs gate 8A!
Presentert av Halvor L. Heikkilä ved Krogsveen Majorstuen og Oslo Vest! En lys og innbydende leilighet med attraktiv beliggenhet på Grünerløkka. Leiligheten har en effektiv planløsning med store vindusflater som slipper inn godt med naturlig lys. Her bor du sentralt, men vendt mot stille sidegate med kafeer, butikker og grøntområder like i nærheten.
Høydepunkter:
- In-ordning under etablering. Mulighet for redusering av felleskost
- Innbydende stue med plass til både spise- og sofagruppe
- Sosial planløsning
- Pent kjøkken fra 2015 med integrerte hvitevarer
- Eldre bad, men med nytt dusjkabinett og baderomsinnredning fra 2023
- Vinduer skiftet i 2017
- God og tilbaketrukket beliggenhet i rolig sidegate på Grünerløkka
- 3kvm loftsbod
- Ingen forkjøpsrett
Presentert av Halvor L. Heikkilä ved Krogsveen Majorstuen og Oslo Vest! En lys og innbydende leilighet med attraktiv beliggenhet på Grünerløkka. Leiligheten har en effektiv planløsning med store vindusflater som slipper inn godt med naturlig lys. Her bor du sentralt, men vendt mot stille sidegate med kafeer, butikker og grøntområder like i nærheten.
Høydepunkter:
- In-ordning under etablering. Mulighet for redusering av felleskost
- Innbydende stue med plass til både spise- og sofagruppe
- Sosial planløsning
- Pent kjøkken fra 2015 med integrerte hvitevarer
- Eldre bad, men med nytt dusjkabinett og baderomsinnredning fra 2023
- Vinduer skiftet i 2017
- God og tilbaketrukket beliggenhet i rolig sidegate på Grünerløkka
- 3kvm loftsbod
- Ingen forkjøpsrett
NB: Knappen for å vise hele beskrivelsen har kun en visuell effekt.
NB: Knappen for å vise hele beskrivelsen har kun en visuell effekt.
Salgsoppgaven beskriver vesentlig og lovpålagt informasjon om eiendommen
Se komplett salgsoppgaveNyttige lenker
Nærområdet
Krogsveen Majorstuen og Oslo Vest
Verdien av en god megler.
Annonseinformasjon
| FINN-kode | 451800177 |
|---|---|
| Sist endret | 23. feb. 2026 07:39 |
| Referanse | KR40.261 |
Annonsene kan være mangelfulle i forhold til lovpålagt opplysningsplikt. Før bindende avtale inngås oppfordres interessenter til å innhente komplett informasjon fra meglerforetaket, selger eller utleier.





















