Bildegalleri

EiendomsMegler 1 v/ Thomas Fanebust presenterer Nordlia 18E. Foto: Svein Ove Andersen
Hillevåg
Ny, lekker leilighet m/ utleiedel | 73 kvm m/ 2 sov + 30 kvm utleid (11.000 kr) | Solvendt terrasse | Lukket parkering
Prisantydning6 190 000 kr
Nøkkelinfo
- Boligtype
- Leilighet
- Eieform
- Eier (Selveier)
- Soverom
- 3
- Internt bruksareal
- 104 m² (BRA-i)
- Bruksareal
- 110 m²
- Eksternt bruksareal
- 6 m² (BRA-e)
- Balkong/Terrasse
- 11 m² (TBA)
- Etasje
- 1
- Byggeår
- 2025
- Energimerking
- B - Lysegrønn
- Rom
- 5
- Tomteareal
- 1 126 m² (eiet)
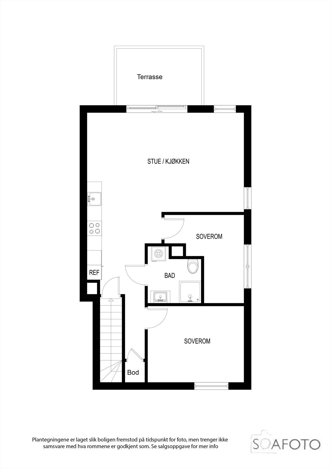
Om boligen
Ny, lekker leilighet oppført i 2025, sentralt plassert i Hillevåg.
Leiligheten går over 2 plan og har en smart planløsning,
Her kan man enten benytte hele leiligheten selv eller bo med leieinntekter i 1. etasje.
Utleiedelen er ca. 30 kvm og er i dag utleid for kr. 11.000,- inkl. strøm.
Solvendt terrasse ut av stuen mot sørvest.
Fast parkeringsplass i lukket garasjeanlegg med mulighet for elbillading.
1. et:
BRA-i: Entré med trapp. Utleiedel: Stue/kjøkken/soverom, og bad/vaskerom *
BRA-e: Sportsbod i felles garasjeanlegg
2. et:
BRA-i: Bad/vaskerom, bod, stue/kjøkken, trapperom, og 2 soverom
* 2 flislagte bad
* 2 moderne kjøkken m/int. hvitevarer
* Energi effektiv leilighet med vannbåren varme
* Lysmalte flater i fargen. Enstavs parkett
Her kan man flytte rette inn!
Leiligheten går over 2 plan og har en smart planløsning,
Her kan man enten benytte hele leiligheten selv eller bo med leieinntekter i 1. etasje.
Utleiedelen er ca. 30 kvm og er i dag utleid for kr. 11.000,- inkl. strøm.
Solvendt terrasse ut av stuen mot sørvest.
Fast parkeringsplass i lukket garasjeanlegg med mulighet for elbillading.
1. et:
BRA-i: Entré med trapp. Utleiedel: Stue/kjøkken/soverom, og bad/vaskerom *
BRA-e: Sportsbod i felles garasjeanlegg
2. et:
BRA-i: Bad/vaskerom, bod, stue/kjøkken, trapperom, og 2 soverom
* 2 flislagte bad
* 2 moderne kjøkken m/int. hvitevarer
* Energi effektiv leilighet med vannbåren varme
* Lysmalte flater i fargen. Enstavs parkett
Her kan man flytte rette inn!
NB: Knappen for å vise hele beskrivelsen har kun en visuell effekt.
NB: Knappen for å vise hele beskrivelsen har kun en visuell effekt.
Salgsoppgaven beskriver vesentlig og lovpålagt informasjon om eiendommen
Se komplett salgsoppgaveNyttige lenker
Nærområdet
EiendomsMegler 1 Madla
En del av Sparebank 1 Sør-Norge
Annonseinformasjon
| FINN-kode | 451793510 |
|---|---|
| Sist endret | 23. feb. 2026 09:34 |
| Referanse | 2205260066 |
Annonsene kan være mangelfulle i forhold til lovpålagt opplysningsplikt. Før bindende avtale inngås oppfordres interessenter til å innhente komplett informasjon fra meglerforetaket, selger eller utleier.


























