Bildegalleri

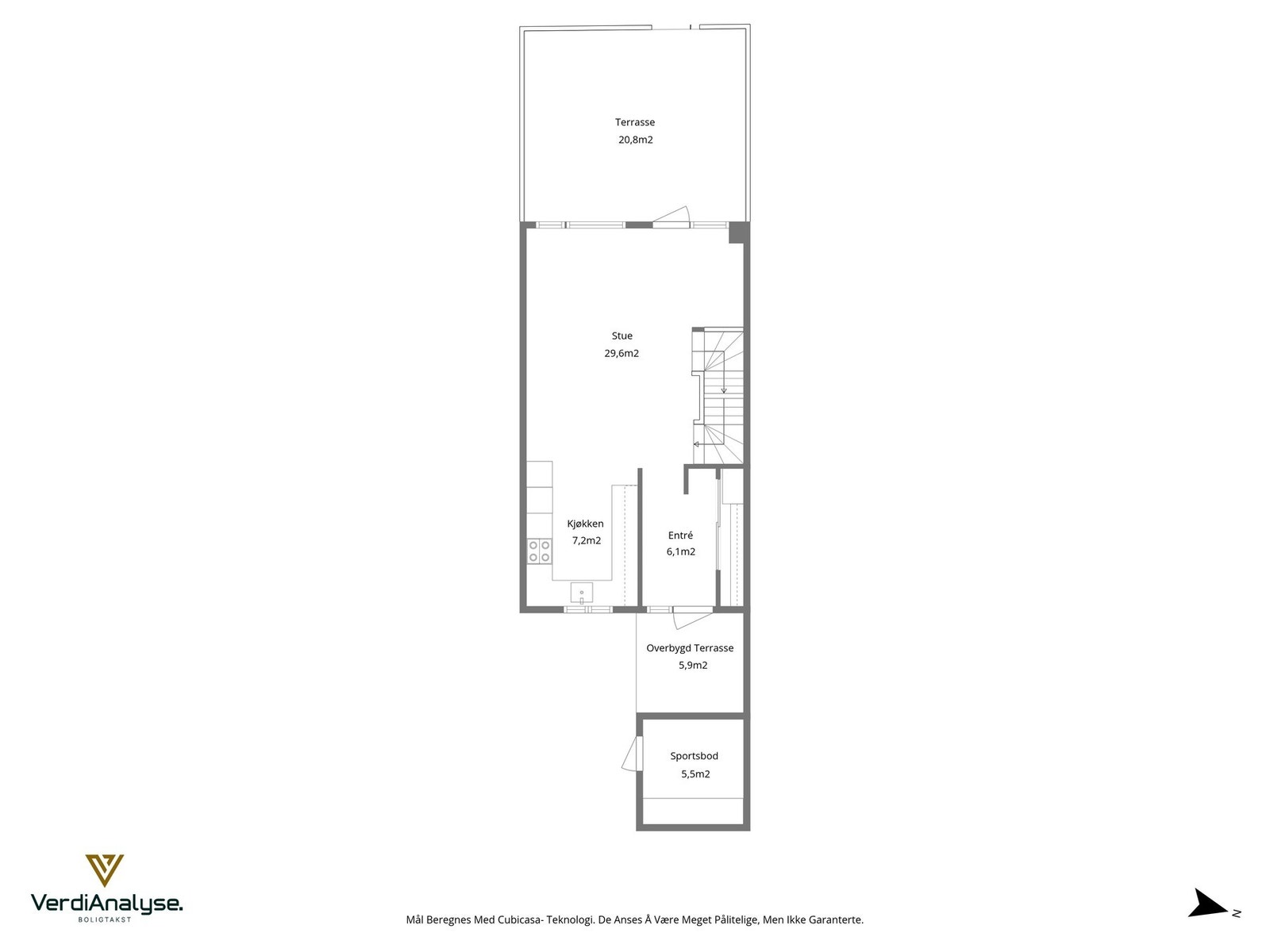
Boligen har en fantastisk stue- og kjøkkenløsning på ca. 45 kvadratmeter.
Miljøbyen Granåsen
FLOTT, INNHOLDSRIK FAMILIEBOLIG. Solrik terrasse og grøntområde. 2 bad. Kjellerstue. 3 soverom. Ekstra innredet rom.
Prisantydning6 790 000 kr
Nøkkelinfo
- Boligtype
- Rekkehus
- Eieform
- Eier (Selveier)
- Soverom
- 3
- Internt bruksareal
- 131 m² (BRA-i)
- Bruksareal
- 137 m²
- Eksternt bruksareal
- 6 m² (BRA-e)
- Balkong/Terrasse
- 27 m² (TBA)
- Byggeår
- 2013
- Energimerking
- B - Mørkegrønn
- Rom
- 6
- Tomteareal
- 104 m² (eiet)
Fasiliteter
Barnevennlig
Balkong/Terrasse
Kabel-TV
Offentlig vann/kloakk
Turterreng
Bredbåndstilknytning
Moderne
Rolig
Visning
tirsdag, 03. mars
16:30 – 17:30
Våre visninger har påmelding. Dette gjør vi for å kunne yte bedre service for våre kunder. Verdifullt for boligkjøper og for oss. Vi anbefaler at salgsoppgaven lastes ned digitalt før visning, og ring oss gjerne på forhånd for spørsmål om boligen. Passer ikke angitt tidspunkt, ta kontakt så finner vi en løsning. Skulle det mot formodning ikke være påmeldte til angitt visningstidspunkt vil ikke visning bli gjennomført.
Om boligen
FLOTT, INNHOLDSRIK FAMILIEBOLIG OVER 3 PLAN.
- Fantastisk stue- og kjøkkenløsning på ca. 37 kvm
- God plass til stor spisestue
- Gjennomlyst og innbydende, med en-stavsgulv og delikate fargevalg
- Fjernvarme og balansert ventilasjon
- Stor solrik terrasse og koselig grøntområde
- En av de bedre beliggenhetene - Ligger åpent og fint til i fremste rekke
- Hvitt, stilrent kjøkken. Integrerte hvitevarer (TG0/1)
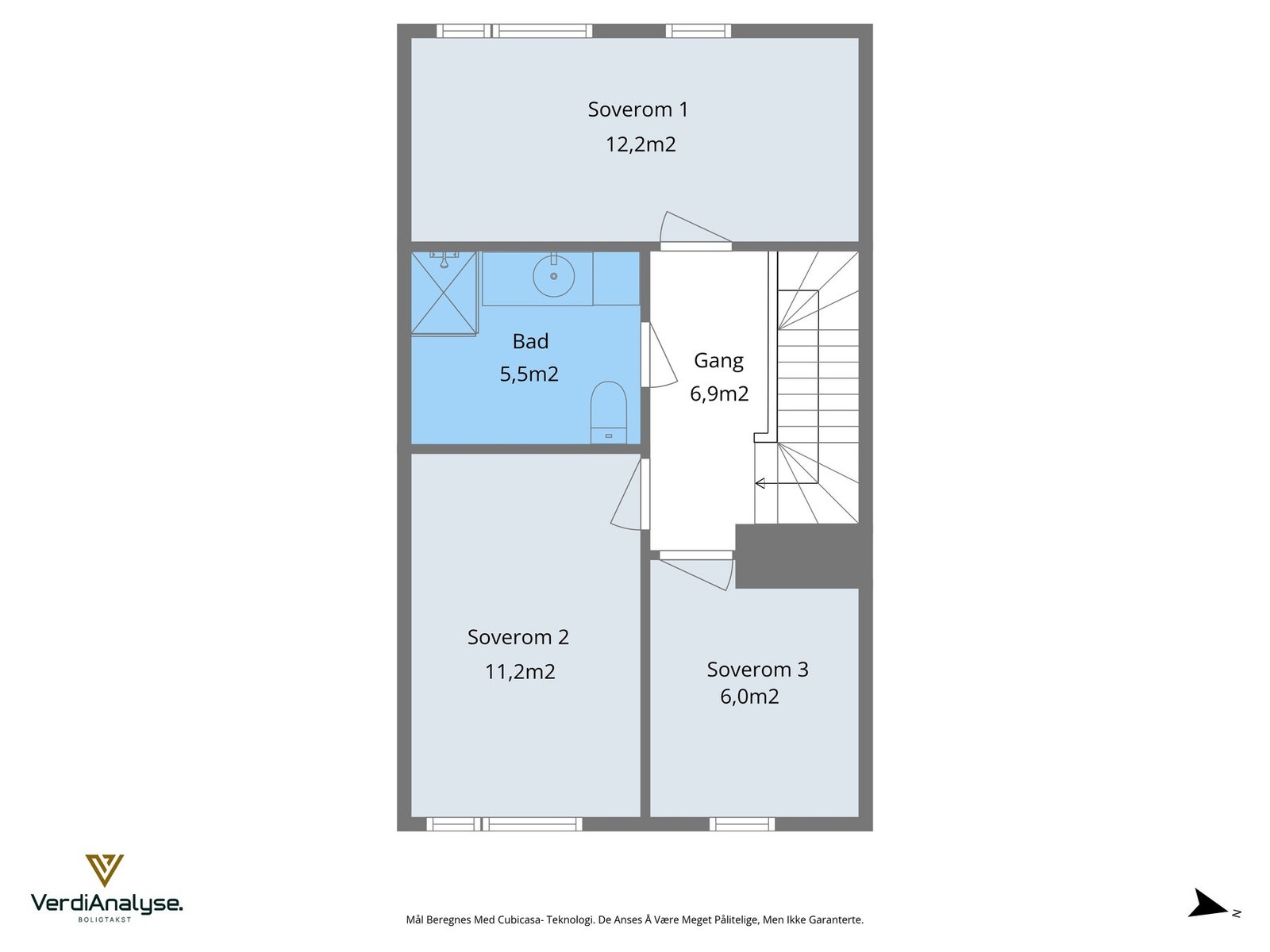
- Delikat, flislagt bad. Behagelig gulvvarme. Downlights (TG0/1)
- Moderne bad i kjeller, i kombinasjon med vaskerom (TG0/1)
- Kjellerstue på 23,9 kvm, innredet som treningsrom
- 3 soverom på 12,2 kvm, 11,2 kvm og 6,0 kvm
- Mulighet for å dele opp det største soverommet
- Ekstra innredet rom på 6,4 kvm i kjeller
- Overbygd terrasse ved inngangsparti. Utvendig sportsbod
- Parkering ved boligen, samt fast garasjeplass
NB: Knappen for å vise hele beskrivelsen har kun en visuell effekt.
NB: Knappen for å vise hele beskrivelsen har kun en visuell effekt.
Salgsoppgaven beskriver vesentlig og lovpålagt informasjon om eiendommen
Se komplett salgsoppgaveNyttige lenker
Nærområdet
EiendomsMegler 1 Valentinlyst
Vi loser deg trygt gjennom hele boligsalget
Annonseinformasjon
| FINN-kode | 451786514 |
|---|---|
| Sist endret | 23. feb. 2026 12:01 |
| Referanse | 34260050 |
Annonsene kan være mangelfulle i forhold til lovpålagt opplysningsplikt. Før bindende avtale inngås oppfordres interessenter til å innhente komplett informasjon fra meglerforetaket, selger eller utleier.




































